Jochen104
Hallo,
ich hatte eine PN von @muttley und hatte diesen Thread nicht gesehen. Falls es weitere Teilnehmer gibt, für die das Thema interessant ist, möchte ich meine Nachricht an @muttley nicht geheim halten und poste Sie daher auch hier
Hallo,
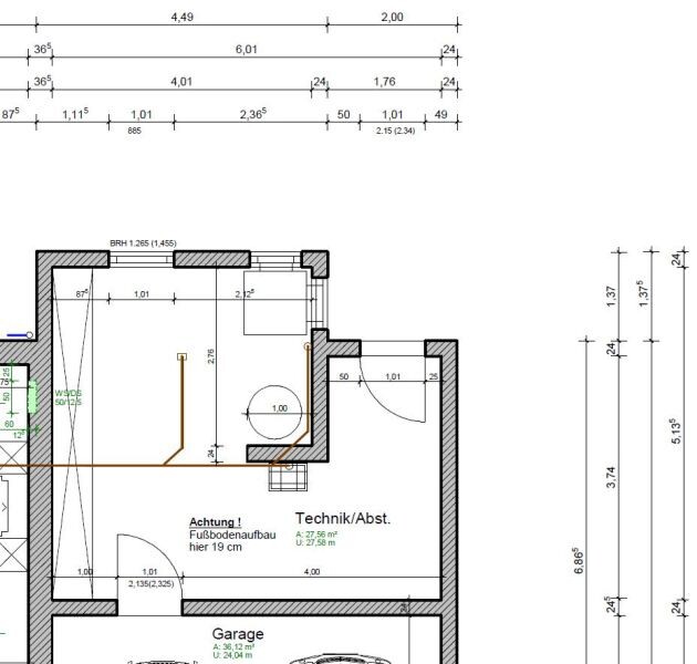
ich habe gerade verwundert festgestellt, dass ich leider kein Bild vom Raum habe. Allerdings hänge ich dir gern mal den Grundriss an:
Auf der linken Seite habe ich wie eingezeichnet eine Reihe Schwerlastregale für Werkzeug und Vorräte. Oben vor das Fenster kommt noch eine Werkbank. In der Nische steht wie abgebildet die Luft-Wasser-Wärmepumpe und der Wasserspeicher. Planunten an der Wand zur Garage habe ich Schränke für Sportsachen und meine Frau einen für Deko und Blumenzubehör. Im rechten Bereich haben wir derzeit noch ein paar Überreste vom Hausbau und Gartensachen stehen. Das soll aber im Sommer alles in ein Gartenhäuschen wandern
Mit den 27 m² ist der Raum echt groß. Es hätten auch durchaus ein paar m² weniger getan. Aber ich bin mit der Lösung absolut zufrieden. Wir brauchen für nichts in den Keller zu laufen und haben alles auf einer Ebene.
Fazit: Ich würde es wieder so machen.
ich hatte eine PN von @muttley und hatte diesen Thread nicht gesehen. Falls es weitere Teilnehmer gibt, für die das Thema interessant ist, möchte ich meine Nachricht an @muttley nicht geheim halten und poste Sie daher auch hier
Hallo,
ich habe gerade verwundert festgestellt, dass ich leider kein Bild vom Raum habe. Allerdings hänge ich dir gern mal den Grundriss an:
Auf der linken Seite habe ich wie eingezeichnet eine Reihe Schwerlastregale für Werkzeug und Vorräte. Oben vor das Fenster kommt noch eine Werkbank. In der Nische steht wie abgebildet die Luft-Wasser-Wärmepumpe und der Wasserspeicher. Planunten an der Wand zur Garage habe ich Schränke für Sportsachen und meine Frau einen für Deko und Blumenzubehör. Im rechten Bereich haben wir derzeit noch ein paar Überreste vom Hausbau und Gartensachen stehen. Das soll aber im Sommer alles in ein Gartenhäuschen wandern
Mit den 27 m² ist der Raum echt groß. Es hätten auch durchaus ein paar m² weniger getan. Aber ich bin mit der Lösung absolut zufrieden. Wir brauchen für nichts in den Keller zu laufen und haben alles auf einer Ebene.
Fazit: Ich würde es wieder so machen.