Offenes Dachgeschoss - Trennwand und Tür Gestaltung

4,50 Stern(e) 4 Votes
Zuletzt aktualisiert 04.12.2025
Sie befinden sich auf der Seite 2 der Diskussion zum Thema: Offenes Dachgeschoss - Trennwand und Tür Gestaltung
>> Zum 1. Beitrag <<

A

Arauki11

An so Akustikelemente oder Vorhang
Je nachdem, welches Ergebnis erwartet bzw. akzeptiert wird wäre tatsäclich auch ein wirklich schwerer Vorhang mein erster Versuch gewesen. Das komplett geschlossen und auch noch schick zu bekommen wir nicht gerade günstig möglich sein.
Ohne Geräusche oben schlafen....das wir nicht ganz einfach sein denke ich.
Man müsste mal den ganzen Raum als Grundriss sehen, vlt. wäre es auch eine Option und zumindest einfacher umsetzbar, etwa 1m nach der Treppe den ganzen Raum abzutrennen
 
wiltshire

wiltshire

An so Akustikelemente oder Vorhang hatte ich auch mal gedacht, das sah aber aller recht teuer aus
und laut Meinungen in Foren eher nur in Verbindung mit richtiger Wand und Abtrennung zu empfehlen.
Die Wirkung guter Akustikelemente für den Dachgeschossraum ist für den Dachraum erheblich, aber geringer als eine geschlossene Tür - wenn man das in Verringerung des Schalldrucks misst. Was Schall unangenehm macht ist ja nicht nur die Lautstärke in DB, sondern auch das Frequenzspektrum. Es ist eine Sache, wie sehr der Schallpegel gemessen in dB sinkt und eine andere, welche Qualität das Geräusch hat. Wie "nackte Wände" dazu führen, dass ein Geräusch sehr unangenehm werden kann, hast Du sicher schon erlebt. Hier lohnt es sich bei der Anforderung "Kinderlärm" zu differenzieren. Beide Parameter - Schalldruck und Geräuschqualität sind wichtig für das Wohlbefinden, welches dazu auch noch sehr unterschiedliche Anforderungen stellen kann.

Manchmal ist die beste Lösung ein sowohl - als auch.

Die Wirkung von Akustikpanelen im tendenziell nacktwandigen Treppenhaus zahlt sich allerdings auch für alle Etagen und alle daran angeschlossenen Räume aus.
Wir haben LignoTrend Akustikpanele an der Decke unseres überdurchschnittlich hohen Raumes. Die Materialkosten je qm würde ich heute bei rund 150€ je qm ansetzen und mindestens die Decke vollflächig versorgen. Du hast recht, billig ist das nicht.

Und ohne Treppenabsatz würde ich die Tür ebenfalls nicht in Richtung Treppenabgang öffnen lassen.
Schiebetüren dichten prinzipiell schlechter ab, oder werden sehr teuer. Eine gute Wirkung haben sie allemal.
Geh mal ein paar Dinge ausprobieren.
 
S

Sonnengarten

Das komplett geschlossen und auch noch schick zu bekommen wir nicht gerade günstig möglich sein.
Ohne Geräusche oben schlafen....das wir nicht ganz einfach sein denke ich.
Man müsste mal den ganzen Raum als Grundriss sehen
Preislich werde ich mir auch mal ein Angebot machen lassen, ich hätte so mit 3k€ etwa gerechnet
aber je nach Ausstattung der Platten und Tür etc. dann jetzt wohl auch teurer.

Und Geräuscheseitig, ich bin mittlerweile einiges gewöhnt und kann auch bei lärm schlafen wenn ich muss,
weil mit Kind hat man nicht immer viel Schlaf, aber wäre schön wenn es etwas ruhiger würde im Dachgeschoss ;)

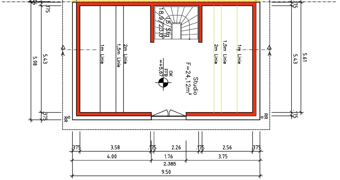
Einen Grundriss habe ich, vielleicht gibt das auch nochmal eine bessere Übersicht! Zwischenablage_12-04-2025_01.jpg
 
wiltshire

wiltshire

Hatten wir ganz ähnlichin unserem Reihenhaus von 2001 bis 2019 und so gelöst:
Bildschirmfoto 2025-12-04 um 21.52.02.jpg
Da wir oben unser Schlafzimmer hatten, war es uns besonders wichtig, dass die damals noch kleinen Kinder einen sicheren Weg zu uns haben.
 
S

Sonnengarten

Wir haben LignoTrend Akustikpanele an der Decke unseres überdurchschnittlich hohen Raumes. Die Materialkosten je qm würde ich heute bei rund 150€ je qm ansetzen und mindestens die Decke vollflächig versorgen.

Und ohne Treppenabsatz würde ich die Tür ebenfalls nicht in Richtung Treppenabgang öffnen lassen.
Schiebetüren dichten prinzipiell schlechter ab, oder werden sehr teuer. Eine gute Wirkung haben sie allemal.
Geh mal ein paar Dinge ausprobieren.
Super, LignoTrend schaue ich mir mal an, hätte da vielleicht an anderer Stell einen Verwendung für.

Und ja da hast du recht vielleicht mal ein paar Türen ansehen und probieren und eine Kompromisslösung finden.
Muss ja nicht komplett dicht sein aber vielleicht eine Mischung auf verschiedenen Komponenten die hilft :)

Preislich werde ich jetzt auch mal überschlagen wo wir landen, dann wird vielleicht auch schnell pragmatischer...

In jedemfall habe ich gerade gesehen, es ginge ja auch nur im Bereich der Tür in den Raum den Vorplatz reinplanen,
nicht die ganze Wand lang. Und dann den Bereich über der Tür bis zur Decke zuzumachen. Ich dachte die ganze
Zeit dann müsste man über der Tür quasi eine Flachdecke basteln und dann wird es frickelig und hätte so einen blöden Absatz darüber...
 
Zuletzt aktualisiert 04.12.2025
Im Forum Holzbau / Schreiner gibt es 487 Themen mit insgesamt 4509 Beiträgen
Oben