Kompetenter, kreativer Architekt im Ruhrgebiet gesucht

4,60 Stern(e) 5 Votes
Zuletzt aktualisiert 10.10.2025
Sie befinden sich auf der Seite 3 der Diskussion zum Thema: Kompetenter, kreativer Architekt im Ruhrgebiet gesucht
>> Zum 1. Beitrag <<

L

Legurit

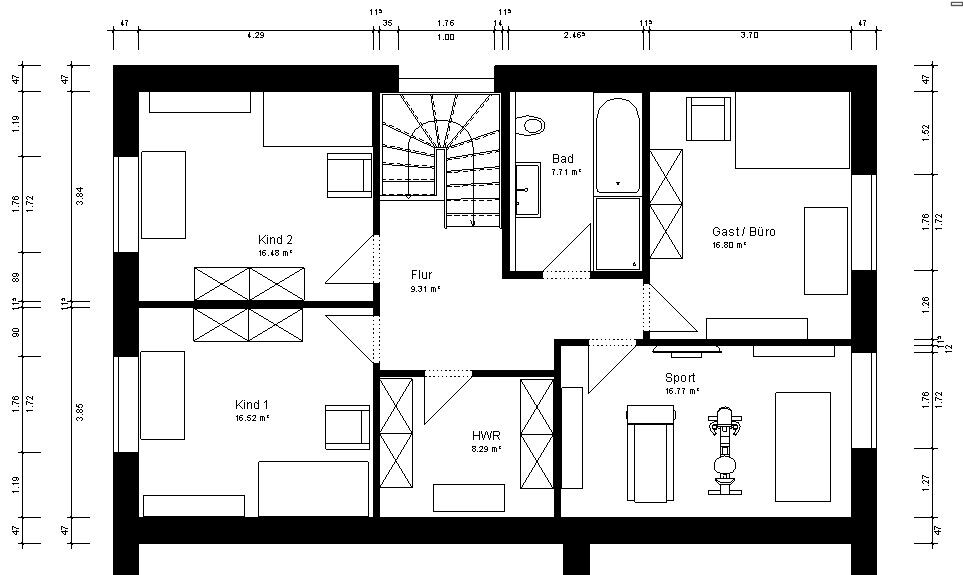
Keine Gauben, eher langes rechteckiges Haus, etwas rausgezogenes Wohnzimmer (runtergezogenes Dach bildet Vordach im schmaleren Teil) - Pläne habe ich hier schon öfter gepostet. Grad unterwegs.
 
kbt09

kbt09

Was sagt denn dein bebauungsplan zur Traufhöhe aus?

Schematische architektonische Zeichnung einer Dachkante mit Traufhöhe und Straßennamen


Die spielt ja für eine mögliche Kniestockhöhe auch eine Rolle.
 
B

Bauen2016

Danke, Behaelja!
Der Bebauungsplan sagt nicht wirklich was, kbt, aber morgen wird das Amt gelöchert, dann wissen wir hoffentlich mehr.

Aber einen Architekten vor Ort kennt keiner???
 
Zuletzt aktualisiert 10.10.2025
Im Forum Bauplanung gibt es 5062 Themen mit insgesamt 100671 Beiträgen
Oben