R
Reini123406.01.21 10:12Hallo zusammen,
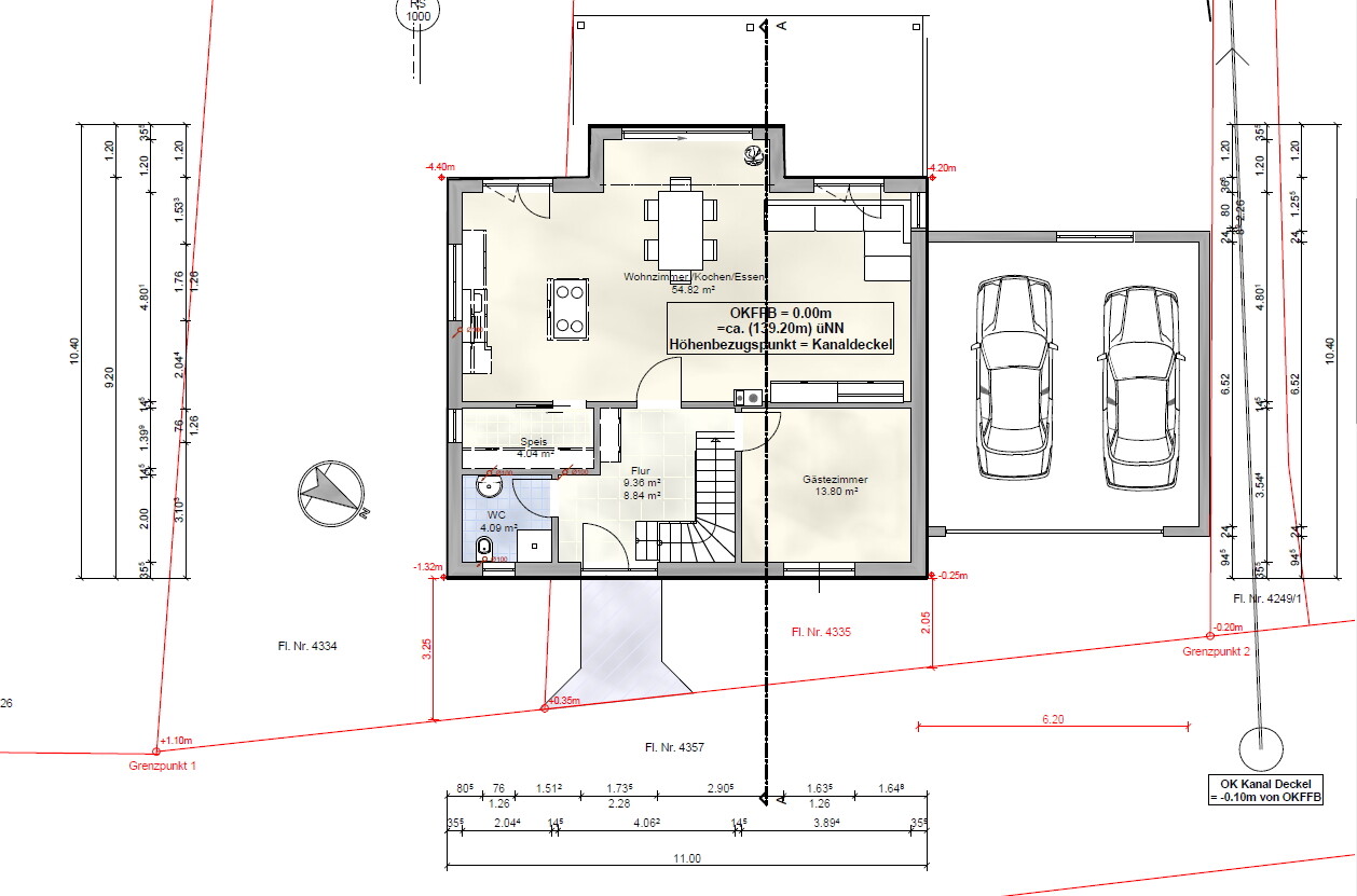
wir möchten dieses Jahr unseren Eingangsbereich angehen. Anbei ein Bild vom Ist-Zustand. Die rote Linie markiert ungefähr die Grenze. Links der Markierung geht eine Schotterstraße vorbei, welche abgefangen werden muss.
Da unser Neubau etwas mehr Geld als geplant verschlungen hat, müssen wir aufs Budget achten. Pflanzringe oder L-Steine gefallen uns leider nicht. Wir dachten hier vielleicht an eine Mauer aus Naturstein oder Gabionen? Der Bereich zur Haustüre sind soll gepflastert werden. Benötigen wir zwingend ein Podest vor der Haustüre (Holzständer)?
Ein weiterer Punkt ist das Thema Entwässerung. Wir sind das letzte Haus der Straße am Ende eines Hanges, bei Regen versickert somit das ganze Wasser der Straße um unser Haus. Es müsste also eine Entwässerungsrinne vor die Mauer Richtung Straße?
Wer wäre grundsätzlich der richtige Ansprechpartner für so ein Vorhaben? Schon der Gartenlandschaftsbauer?

wir möchten dieses Jahr unseren Eingangsbereich angehen. Anbei ein Bild vom Ist-Zustand. Die rote Linie markiert ungefähr die Grenze. Links der Markierung geht eine Schotterstraße vorbei, welche abgefangen werden muss.
Da unser Neubau etwas mehr Geld als geplant verschlungen hat, müssen wir aufs Budget achten. Pflanzringe oder L-Steine gefallen uns leider nicht. Wir dachten hier vielleicht an eine Mauer aus Naturstein oder Gabionen? Der Bereich zur Haustüre sind soll gepflastert werden. Benötigen wir zwingend ein Podest vor der Haustüre (Holzständer)?
Ein weiterer Punkt ist das Thema Entwässerung. Wir sind das letzte Haus der Straße am Ende eines Hanges, bei Regen versickert somit das ganze Wasser der Straße um unser Haus. Es müsste also eine Entwässerungsrinne vor die Mauer Richtung Straße?
Wer wäre grundsätzlich der richtige Ansprechpartner für so ein Vorhaben? Schon der Gartenlandschaftsbauer?
Hallo,
Ich bekomme Bauchweh, wenn ich sehe wie das Wasser den Berg runterlaufen kann und euer Haus das Wasser quasi "einlädt"
Das Problem ist nicht normaler Regen, sondern die Starkregenfälle.
Falls es keine schräge Stützmauer werden soll, sondern eine senkrechte:
aus Beton-Schalungssteinen eine Mauer bauen, Abeckplatten ( Beton oder Naturstein) draufsetzen und die Mauer passend zum Haus verputzen.
Eine schöne Mauer kann man auch aus Mauerbausätzen aus Beton selber herstellen (z.B. Birkenmeier Bi Muro), das ist günstiger als eine Natursteinmauer, die geklebt wird. Dann könnte man zwischen Strasse und euren Grundstück eine Rinne verbauen und die Oberkante Mauer ist die Barriere. Allerdings ist da noch der Gehweg zum Haus.
Wo ist denn euer Parkplatz ? Unterhalb vom Haus ? Falls ja, wäre es denkbar, den Zuweg zur Haustüre von dort entlangzuführen und die Straßenseite komplett zuzumauern ?
Ich bekomme Bauchweh, wenn ich sehe wie das Wasser den Berg runterlaufen kann und euer Haus das Wasser quasi "einlädt"
Reini1234 schrieb:Ja. Ihr braucht eine Planung. speziell wegen dem Wasser. ihr habt auch euren Hauseingang dort und Kellerlichtschächte, die so hoch wie möglich gezogen werden sollten, damit nichts hereinläuft wenn das Wasser kommt.
Wer wäre grundsätzlich der richtige Ansprechpartner für so ein Vorhaben? Schon der Gartenlandschaftsbauer?
Das Problem ist nicht normaler Regen, sondern die Starkregenfälle.
Reini1234 schrieb:Leider teurer als Betonsteine. Gabionen sind wirklich Geschmackssache, ich finde sie furchtbar und teuer (wenn die Stahldicke stimmt).
Mauer aus Naturstein oder Gabionen?
Reini1234 schrieb:Also, die Fundamente und Rinnen bleiben von den Herstellungskosten gleich, bei Rinnen kann man die günstigste Ausführung nehmen, die müssen normalerweise auch am Kanal angeschlossen werden.
müssen wir aufs Budget achten.
Falls es keine schräge Stützmauer werden soll, sondern eine senkrechte:
aus Beton-Schalungssteinen eine Mauer bauen, Abeckplatten ( Beton oder Naturstein) draufsetzen und die Mauer passend zum Haus verputzen.
Eine schöne Mauer kann man auch aus Mauerbausätzen aus Beton selber herstellen (z.B. Birkenmeier Bi Muro), das ist günstiger als eine Natursteinmauer, die geklebt wird. Dann könnte man zwischen Strasse und euren Grundstück eine Rinne verbauen und die Oberkante Mauer ist die Barriere. Allerdings ist da noch der Gehweg zum Haus.
Wo ist denn euer Parkplatz ? Unterhalb vom Haus ? Falls ja, wäre es denkbar, den Zuweg zur Haustüre von dort entlangzuführen und die Straßenseite komplett zuzumauern ?
Ja, ein Garten-Landschaftsbauer. Der soll auch mal vorschlagen, was mit dem Regenwasser gemacht wird.
Und ich dachte, Ihr müsst auf das Budget achten?!
Das gesparte Geld würde ich in ein nettes Podest investieren - oder in nettere Bepflasterung.
Reini1234 schrieb:
Wir dachten hier vielleicht an eine Mauer aus Naturstein oder Gabionen?
Und ich dachte, Ihr müsst auf das Budget achten?!
Reini1234 schrieb:Ich würde die hässlichen Pflansteine nehmen und die mit Immergrün (immergrünen Krabbelpflanzen) bepflanzen. In drei Jahren sieht dann keiner mehr die Dinger. Die gibt es ja auch in anthrazit und rechteckig - was solls.
Der Bereich zur Haustüre sind soll gepflastert werden. Benötigen wir zwingend ein Podest vor der Haustüre (Holzständer)?
Das gesparte Geld würde ich in ein nettes Podest investieren - oder in nettere Bepflasterung.
H
Hausbautraum2010.01.21 16:44Budget achten und Natursteinmauer widerspricht sich. Selbst ne Betonmauer mit Entwässerung kostet auf die Länge schon. Wir brauchen vielleicht in der Hofeinfahrt eine und 8m Länge und 0,8m Höhe wurde uns mit 5k angeboten. Naturstein das Doppelte...
Und dazu kommt ja noch der Weg und das Eingangspodest.
Vielleicht ist's bei euch etwas billiger und "aufs Budget achten" ist ja auch subjektiv, aber für mich sieht es grad nicht nach ner günstigen Lösung aus.
Wie groß ist denn der Höhenunterschied insgesamt?
Auf jeden Fall käme mir bei euch nur ein Garten-Landschaftsbauer für die Entwässerungsproblematik in Frage. Bei Starkregen sieht es aus als würde alles in euren Lichtschacht reinlaufen und am Haus stehen. Und grad bei Holz wäre mir das zu riskant.
Und dazu kommt ja noch der Weg und das Eingangspodest.
Vielleicht ist's bei euch etwas billiger und "aufs Budget achten" ist ja auch subjektiv, aber für mich sieht es grad nicht nach ner günstigen Lösung aus.
Wie groß ist denn der Höhenunterschied insgesamt?
Auf jeden Fall käme mir bei euch nur ein Garten-Landschaftsbauer für die Entwässerungsproblematik in Frage. Bei Starkregen sieht es aus als würde alles in euren Lichtschacht reinlaufen und am Haus stehen. Und grad bei Holz wäre mir das zu riskant.
R
Reini123410.01.21 19:05Unser Haus steht jetzt ca. seit 2 Jahren inkl. Starkregen. Das Hauptwasser wird schon durch den verdichteten Schotterweg am Haus vorbei geleitet aber ist natürlich trotzdem momentan ein Risiko.
Die Garage ist quasi genau dort wo das Foto gemacht wurde.
Der Höhenunterschied dürfte im Mittel ca. 0,50cm sein, es muss ja auch noch aufgefüllt werden.
Die vorgeschlagenen Alternativen schaue ich mir mal an, wobei die Pflanzsteine glaub ich ausscheiden. Allerdings hatte ich auch nicht mit so viel Geld für eine Betonmauer gerechnet.
Im Bekanntenkreis haben wir eigentlich viele handwerkliche Bauhelfer. Was fehlt ist halt die korrekte Planung. Gibt es auch Gartenlandschaftsbauer, weche z.B. nur die Planungsausführung gegen Honorar machen?
Die Garage ist quasi genau dort wo das Foto gemacht wurde.
Der Höhenunterschied dürfte im Mittel ca. 0,50cm sein, es muss ja auch noch aufgefüllt werden.
Die vorgeschlagenen Alternativen schaue ich mir mal an, wobei die Pflanzsteine glaub ich ausscheiden. Allerdings hatte ich auch nicht mit so viel Geld für eine Betonmauer gerechnet.
Im Bekanntenkreis haben wir eigentlich viele handwerkliche Bauhelfer. Was fehlt ist halt die korrekte Planung. Gibt es auch Gartenlandschaftsbauer, weche z.B. nur die Planungsausführung gegen Honorar machen?
Reini1234 schrieb:
. Gibt es auch Gartenlandschaftsbauer, weche z.B. nur die Planungsausführung gegen Honorar machen?Entweder ein Garten-Landschaftsbauer oder Landschaftsarchitekt.Ähnliche Themen