Grundriss, längliches Einfamilienhaus, integrierte Garage kein Keller

5,00 Stern(e) 3 Votes
Zuletzt aktualisiert 22.12.2025
Sie befinden sich auf der Seite 3 der Diskussion zum Thema: Grundriss, längliches Einfamilienhaus, integrierte Garage kein Keller
>> Zum 1. Beitrag <<

O

onyx.dop

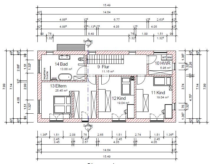
Mahlzeit die Damen und Herren,

die nächste Aktualisierung wurde gemacht. Größte Änderungen:

  • Außenmaße nun 15,5 x 8,0m
  • Entfall Speisekammer
  • Anpassung Fensterpositionierung Nordost-Seite
  • Verschieben Kamin

@11ant: geplant ist, dass der Dachboden wird ueber zwei Raumspartreppen aus den Kinderzimmern erschlossen.

Weiteres Feedback gerne gesehen.

Grüße,
Christoph.
 
kbt09

kbt09

Es wäre hilfreich, den aktualisierten Plan einzustellen oder wenigstens den Plan, auf den sich die textlichen Änderungen beziehen. Sonst müssen hier x Leser diesen möglichen Plan irgendwo in den Vorbeiträgen wieder heraussuchen. .. und ja, Smilies gibt es hier leider nicht mehr zum Anklicken .
 
kbt09

kbt09

In Elternschlafzimmer und Bad würde ich die Fenster analog dem EG setzen. Dann hat man weniger Fenstergespritze in der Bad-Dusche und kann im Elternschlafzimmer das Bett mit dem Kopf planrechts an die Außenwand setzen und hat rechts UND links vom Bett angenehm Platz. Zur Ankleide dann eine Schiebetür, die in der Trennwand läuft.

Im EG muss man mal eine sinnvolle Küchenplanung machen, denn die Fensterpositionen ermöglichen es nicht, Hochschränke gezielt zu stellen.
 
Zuletzt aktualisiert 22.12.2025
Im Forum Grundrissplanung / Grundstücksplanung gibt es 2554 Themen mit insgesamt 88557 Beiträgen


Ähnliche Themen zu Grundriss, längliches Einfamilienhaus, integrierte Garage kein Keller
Nr.ErgebnisBeiträge
1Bett SUNDNES - welche Schrauben? 15
2Idee Schlafzimmer - Bett / Schrank Anordnung 32

Oben