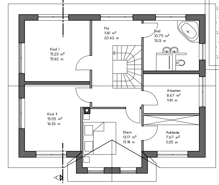
Einfamilienhaus mit Satteldach 160-165 qm

5,00 Stern(e) 4 Votes
Zuletzt aktualisiert 05.10.2025
Sie befinden sich auf der Seite 3 der Diskussion zum Thema: Einfamilienhaus mit Satteldach 160-165 qm
>> Zum 1. Beitrag <<

Zuletzt aktualisiert 05.10.2025
Im Forum Grundrissplanung / Grundstücksplanung gibt es 2510 Themen mit insgesamt 87152 Beiträgen
Oben