Badezimmergestaltung Neubau ca. 10m²

4,60 Stern(e) 7 Votes
Zuletzt aktualisiert 09.10.2025
Sie befinden sich auf der Seite 6 der Diskussion zum Thema: Badezimmergestaltung Neubau ca. 10m²
>> Zum 1. Beitrag <<

Y

ypg

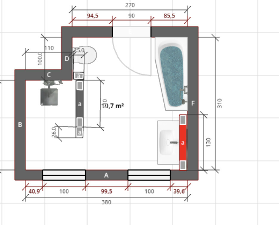
oberstes Gebot: Toilette so nah wie möglich am Schacht. Ansonsten kannst beim großen Malheur das ganze Bad aufstemmen.
Die Wand muss eine Kippfestigkeit bekommen. also an einer festen Wand. Wenn es trotzdem geht mit der Wand, dann würde ich wieder bei meinem Vorschlag aus #20 hinweisen und wie @minimini vorgeschlagen, das verlängerte Stück der Wand als niedrige Ablage hinter der Wanne ausarbeiten. Das würde dann auch der Standfestigkeit dienen können.
 
Zuletzt aktualisiert 09.10.2025
Im Forum Sanitär / Bad / WC gibt es 1365 Themen mit insgesamt 14346 Beiträgen


Ähnliche Themen zu Badezimmergestaltung Neubau ca. 10m²
Nr.ErgebnisBeiträge
1Erfahrungen Spülrandlose Toilette - Seite 4105
2Grundriss Bad so möglich - Abstand Toilette zum Fallrohr 12
38,02m Positionierung Waschbecken / Toilette 69
4Toilette zu nah an Wand, was nun? 31

Oben