Menü
Foren
Neue Beiträge
Foren durchsuchen
Kredit
Werbung
Ratgeber
Über Uns
Tags / Keywords
Anmelden
Registrieren
Aktuelles
Suche
Suche
Nur Titel durchsuchen
Von:
Letzte Aktivität
Registrieren
Menü
Anmelden
Registrieren
JavaScript ist deaktiviert. Für eine bessere Darstellung aktiviere bitte JavaScript in deinem Browser, bevor du fortfährst.
-Malte-'s letzte Aktivität
M
-Malte-
antwortete auf das Thema
Planung Einfamilienhaus, 4-köpfige Familie Westmünsterland, Erstentwurf Architekt
.
Wow, vielen Dank @ypg für die Arbeit und wertvollen Hinweise! Dein aktuellster Entwurf gefällt uns richtig gut. Tatsächlich hatten wir...
Samstag um 22:10
M
-Malte-
reagierte auf den
Beitrag von ypg
im Thema
Planung Einfamilienhaus, 4-köpfige Familie Westmünsterland, Erstentwurf Architekt
mit
Like
.
Mein Favorit wäre für Euch die V 2. Das ist eine runde Sache. Ob Du nun den Flur mit einer Tür abteilst, ist Dir überlassen. Ich finde...
Samstag um 21:25
M
-Malte-
reagierte auf den
Beitrag von ypg
im Thema
Planung Einfamilienhaus, 4-köpfige Familie Westmünsterland, Erstentwurf Architekt
mit
Like
.
@-Malte- Bei mir würden Deine Ideen dann so aussehen. Vielleicht ist ja etwas für Dich dabei. Wenn die Garage nach hinten rutscht (das...
Samstag um 21:10
M
-Malte-
reagierte auf den
Beitrag von Arauki11
im Thema
Planung Einfamilienhaus, 4-köpfige Familie Westmünsterland, Erstentwurf Architekt
mit
Like
.
Ich habe dafür leider keine Lösung, icn wollte Dir nur sagen, dass mir dies so auffällt. Ein geschickter Planer oder vlt. auch hier im...
Samstag um 21:10
M
-Malte-
reagierte auf den
Beitrag von Arauki11
im Thema
Planung Einfamilienhaus, 4-köpfige Familie Westmünsterland, Erstentwurf Architekt
mit
Like
.
Ich sehe starke Verbesserung zu #1, insbes. wohl auch durch das jetzt gewählte Rechteckformat. OG: SZ ist zwar so möglich aber auch im...
Samstag um 21:10
M
-Malte-
reagierte auf den
Beitrag von Papierturm
im Thema
Planung Einfamilienhaus, 4-köpfige Familie Westmünsterland, Erstentwurf Architekt
mit
Like
.
Mein Kopf hat ein großes Problem: Die Ausrichtung des Technikraums. In vielen Baugebieten muss der Technikraum zur Straße ausgerichtet...
Samstag um 21:10
M
-Malte-
antwortete auf das Thema
Planung Einfamilienhaus, 4-köpfige Familie Westmünsterland, Erstentwurf Architekt
.
Danke für eure Rückmeldungen. Ich versuche mal auf die wesentlichsten Punkte einzugehen. Ausrichtung Technikraum zum Garten heraus sehe...
Freitag um 21:12
M
-Malte-
antwortete auf das Thema
Planung Einfamilienhaus, 4-köpfige Familie Westmünsterland, Erstentwurf Architekt
.
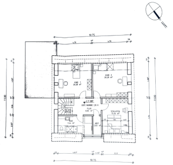
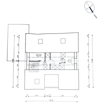
Hallo zusammen, Wir haben die vergangenen zwei Wochen genutzt und Standardgrundrisse gewälzt, um hier eine Idee zu entwickeln, die wir...
Freitag um 18:09
M
-Malte-
antwortete auf das Thema
Planung Einfamilienhaus, 4-köpfige Familie Westmünsterland, Erstentwurf Architekt
.
Genau das sind die Themen, bei denen wir uns vom Architekten entsprechenden Input/Führung erwartet haben, weil wir sie nicht...
21 November 2025
M
-Malte-
antwortete auf das Thema
Planung Einfamilienhaus, 4-köpfige Familie Westmünsterland, Erstentwurf Architekt
.
Wir sind nach dem nun erhaltenen Vorschlag vom Architekten gerade ziemlich enttäuscht. Unsere Einschätzung war ebenfalls, dass der...
21 November 2025
M
-Malte-
antwortete auf das Thema
Planung Einfamilienhaus, 4-köpfige Familie Westmünsterland, Erstentwurf Architekt
.
Wir haben in der Zwischenzeit eine zweite Runde mit unserem Architekten gedreht. Er hat einen neuen Grundriss skizziert, der aus unserer...
19 November 2025
M
-Malte-
reagierte auf den
Beitrag von kbt09
im Thema
Grundriss Einfamilienhaus als Holzhaus auf Bodenplatte mit Carport
mit
Like
.
Ich finde den Grundriss ganz gelungen. Was ich aber auf jeden Fall anders planen würde, Zugang zu Raum unter der Treppe vom Flur aus...
22 Oktober 2025
M
-Malte-
reagierte auf den
Beitrag von ypg
im Thema
Grundriss Einfamilienhaus 1,5 Geschossig
mit
Like
.
Das unterschreibe ich bei beiden Entwürfen. Bei einem fehlt der Flur, wo man sich mit der Familie aus und anplündern kann...
21 Oktober 2025
M
-Malte-
antwortete auf das Thema
Planung Einfamilienhaus, 4-köpfige Familie Westmünsterland, Erstentwurf Architekt
.
Ich habe gerade einmal versucht den Sonnenverlauf grob für unser Grundstück zu simulieren. Gar nicht so einfach als Laie, wenn man...
21 Oktober 2025
M
-Malte-
antwortete auf das Thema
Planung Einfamilienhaus, 4-köpfige Familie Westmünsterland, Erstentwurf Architekt
.
Nein, keine Vorgabe zu Kapitänsgiebeln oder Vorgabe, dass das Raumprogramm auf EG/OG verteilt werden soll. Letztlich haben wir definiert...
21 Oktober 2025
Oben