Menü
Foren
Neue Beiträge
Foren durchsuchen
Kredit
Werbung
Ratgeber
Über Uns
Tags / Keywords
Anmelden
Registrieren
Aktuelles
Suche
Suche
Nur Titel durchsuchen
Von:
Letzte Aktivität
Registrieren
Menü
Anmelden
Registrieren
JavaScript ist deaktiviert. Für eine bessere Darstellung aktiviere bitte JavaScript in deinem Browser, bevor du fortfährst.
-Malte-'s letzte Aktivität
M
-Malte-
antwortete auf das Thema
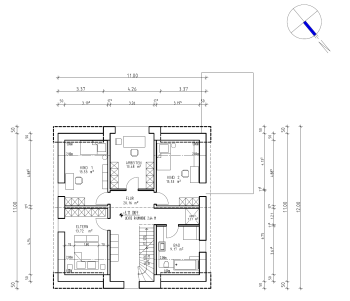
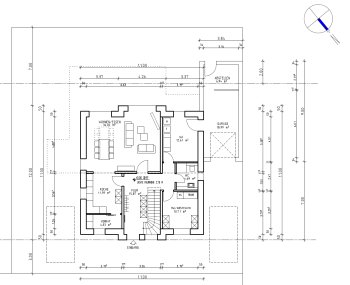
Planung Einfamilienhaus, 4-köpfige Familie Westmünsterland, Erstentwurf Architekt
.
Ein paar Rückfragen, damit ich eure Hinweise auch sicher richtig verstehe. Ausrichtung des Hauses Ist die Empfehlung die Garage und...
21 Oktober 2025
M
-Malte-
antwortete auf das Thema
Planung Einfamilienhaus, 4-köpfige Familie Westmünsterland, Erstentwurf Architekt
.
Grundsätzlich vorweg einmal, dass das eine Grobplanung war, anhand der wir verschiedene Aspekte/Möglichkeiten diskutiert haben. So...
20 Oktober 2025
M
-Malte-
hat das Thema
Planung Einfamilienhaus, 4-köpfige Familie Westmünsterland, Erstentwurf Architekt
in
Grundrissplanung / Grundstücksplanung
erstellt.
Hallo zusammen, nachdem es vor einiger Zeit um die Auswahl unseres Grundstückes im Neubaugebiet ging, sind wir zwischenzeitlich in die...
20 Oktober 2025
M
-Malte-
reagierte auf den
Beitrag von Papierturm
im Thema
Grundriss Planung 135-150qm, Bodenplatte, Baulücke
mit
Like
.
Anmerkungen VOR dem Grundriss: - Die Auswahl der Anbieter sind ganz unterschiedliche "Ligen". Ist in etwa so, als ob man nach Audi und...
23 September 2025
M
-Malte-
reagierte auf den
Beitrag von Papierturm
im Thema
Kosten für Riemchen bei Neubau
mit
Like
.
Wir haben letztes Jahr auch diverse Angebote eingeholt. Zwei Beobachtungen daraus: 1. Vollverklinkerung und "normale" Klinkerriemchen...
16 September 2025
Oben