प्रश्न, निर्माण योजना

  • Erstellt am 20/12/2012 21:29:05

Hedoth

20/12/2012 21:29:05
  • #1
नमस्ते, मुझे अब नहीं पता कि मैं यहाँ सही हूँ या नहीं लेकिन, खैर बस शुरू करता हूँ।

मेरी पत्नी और मैं उसकी बहन और उसके पति के साथ मिलकर एक 2 परिवारों वाला रेहेनहाउस एक एइनलीगरवोhnung के साथ बनाना चाहते हैं, हमारे पास लगभग 1200m² की जमीन है। हमने अब तक सोचा है कि दाईं और बाईं तरफ हमारे और उसकी बहन के लिए समान आकार का रहने का स्थान होगा और बीच में एक छोटी एक मंजिला अपार्टमेंट होगी जो उसकी दादी और चाची के लिए होगी। ये छोटी एइनलीगरवोhnung हमारे विचारों के अनुसार लगभग 80m² की योजना बनी है, बाहरी Wohnungen का अभी कोई निश्चित आकार नहीं है!

अब मेरा आपसे प्रश्न है, क्या आप में से किसी ने कभी ऐसा देखा है और क्या आप हमें तस्वीरों (Grundriss) या कुछ ऐसी मदद दे सकते हैं या खुद कभी ऐसा कुछ बनाया है?

मैं खुश होऊंगा अगर आप मेरी (हमारी) मदद कर सकें!
 

Bauexperte

20/12/2012 22:48:14
  • #2
नमस्ते,


मुझे नहीं लगता कि कोई आपको अपनी योजना देगा; एक तो उसने इसके लिए पैसा दिया है, और दूसरी बात यह कि वे इसके लिए नुकसान भरपाई के लिए जिम्मेदार हो जाएंगे :-)

हमने ऐसा कुछ पहले भी अनुमानित किया है, आप कितना खर्च करना चाहते हैं?

सादर
 

Hedoth

21/12/2012 10:01:19
  • #3
मुझे सीधे तौर पर इस बात की फिक्र नहीं है कि कोई मुझे अपनी योजना सौंपे, मुझे तो तैयार घर की तस्वीरें या ग्राउंड प्लान की फोटो मिल जाएं तो काम चल जाएगा ताकि हमें एक संकेत मिल सके!

खर्च अधिकतम 500 से 600k के बीच होगा, जिसमें तहखाना शामिल है!
 

E.Curb

21/12/2012 10:44:53
  • #4
मोइन,



तुम किसी आर्किटेक्ट को ढूंढो। उससे बात करो कि तुम्हें क्या चाहिए और वह तुम्हारे लिए एक प्लान और दृश्य तैयार करेगा.......

शुभकामनाएं
 

€uro

21/12/2012 10:50:40
  • #5
यह जवाब निश्चित रूप से उम्मीद नहीं की गई थी, यह तो मुफ़्त होना चाहिए था! ;-) v.g.
 

Bauexperte

21/12/2012 14:08:19
  • #6
नमस्ते,



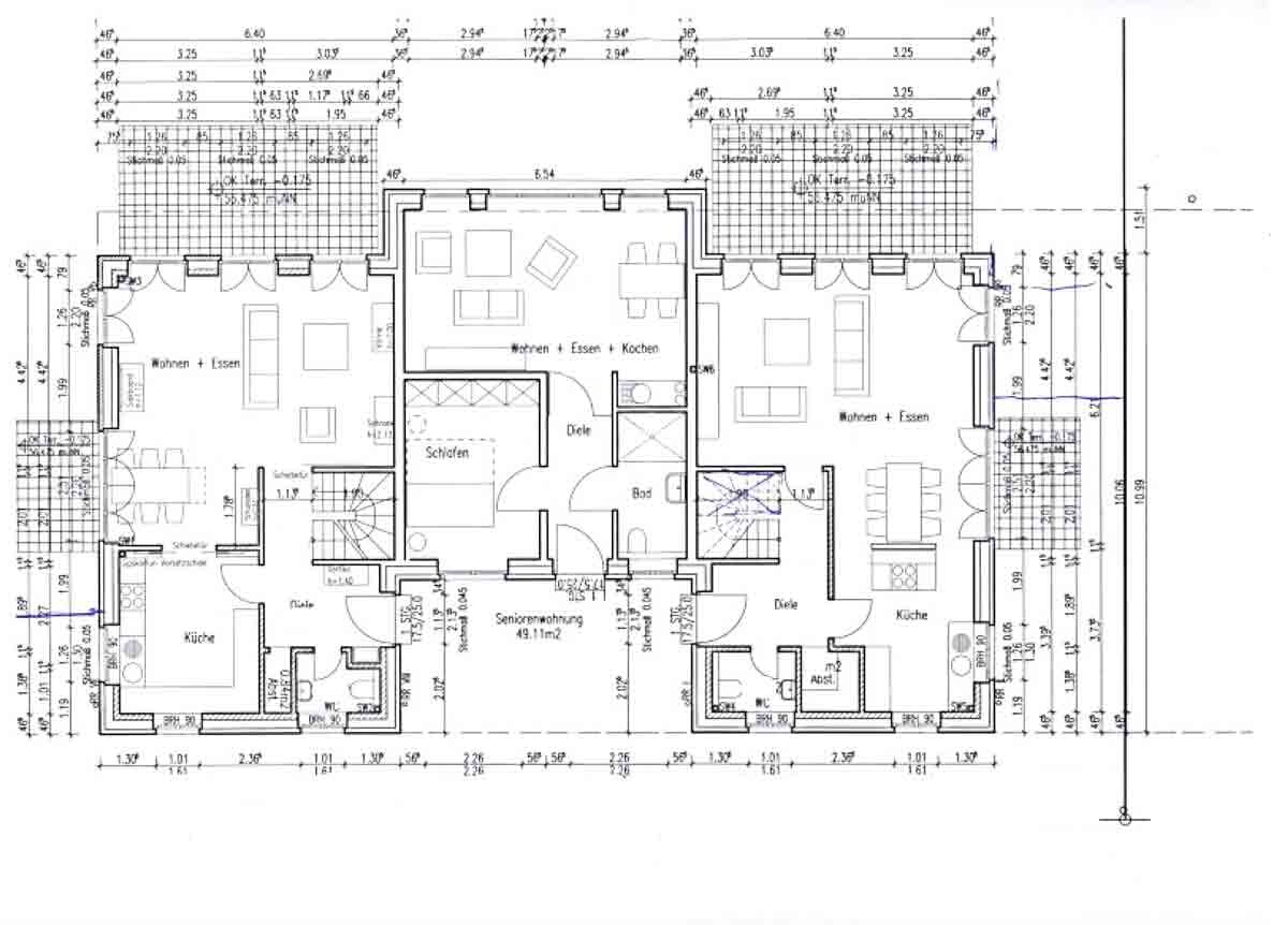
संलग्न उदाहरण में, उप-अपार्टमेंट में भूतल और अटारी शामिल हैं। बाकी के लिए, आप अपने वास्तुकार के साथ मिलकर जमीन की संभावनाओं पर बातचीत कर सकते हैं :-)



सादर शुभकामनाएं

 

समान विषय
17.02.2012मंज़िल योजना - घर में आवासीय अपार्टमेंट के साथ23
16.12.2013आर्किटेक्ट के साथ पूर्व-योजना - क्या अपनी खुद की फ्लोर प्लान होना सही है?18
08.07.2014आपको हमारी योजना कैसी लगी???21
11.05.2016ढलान वाले घर के लिए फ़्लोर प्लान खोज रहे हैं12
12.06.2016फ्लोर प्लान सिटी विला घर17
09.01.2017नई निर्माण शहर विला जिसमें सह-आवास और डबल गैराज है72
13.04.2017घर के फ्लोर प्लान पर सुझाव आवश्यक हैं71
07.04.2018माता-पिता के लिए अपार्टमेंट: 210 वर्ग मीटर एकल परिवार का घर और 80 वर्ग मीटर अपार्टमेंट129
24.05.2017एकल परिवार के घर की योजना जिसमें एक स्वतंत्र फ्लैट हो77
07.09.2021एल-आकार वाला ट्यूब हाउस का फ्लोर प्लान त्रिकोणीय भूखंड के साथ ओक पेड़529
09.12.2018एकल परिवार के घर के साथ सीनियर फ्लैट के फ्लोर प्लान के बारे में राय54
21.08.20204 बच्चों के कमरे और एक अलग आवासीय इकाई के साथ एक एकल परिवार के घर की मंजिल योजना17
12.05.2023विस्तृत योजना फर्श योजना एकल-परिवार गृह तहखाना और साथ में अलग रहने वाला अपार्टमेंट28
01.12.2022फ्लोर प्लान डिज़ाइन सिंगल-फैमिली हाउस ढलान पर, ग्रीन फ्लैट, डबल गैराज71
05.06.2021एकल परिवार का घर शहर विला लगभग 180 वर्ग मीटर + अलग अपार्टमेंट 70 वर्ग मीटर - खुला डिजाइन23
02.10.2021एकल परिवार के घर के लिए फ्लोर प्लान सुझाव जिसमें एक अलग निवास इकाई की इच्छा हो49
26.10.2024इनलाइयर अपार्टमेंट के साथ घर की फर्श योजना - सुधार सुझाव?221
19.11.2024240 वर्ग मीटर के साथ एकल परिवार का घर का फ़्लोर प्लान जिसमें 75 वर्ग मीटर का सहवासीय अपार्टमेंट और गेराज शामिल है39
01.01.2025फ्लोर प्लान, हाउस लेआउट EFW 150m2, बेसमेंट + अलग फ्लैट - प्रतिक्रिया अपेक्षित67
20.06.2025वैकल्पिक सुसज्जित फ्लैट के साथ एकल परिवार के घर की मंज़िल योजना44

Oben