नई अंत-पंक्ति वाले घर के लिए इलेक्ट्रिकल योजना

  • Erstellt am 17/07/2024 03:52:14

Haus Luni

17/07/2024 13:50:29
  • #1


यह एक बहुत अच्छा बिंदु है। आदर्श रूप से आपको सभी स्थानों के माप लेने चाहिए। मैं तब हमारे यहां था जब इलेक्ट्रीशियन छेद ड्रिल करने वाला था। उनके पास ज्यादा सोचने या डिजाइन करने का समय नहीं होता और फिर वह अपनी अनुभूति से ड्रिल करता है।

मेरे यहां मैंने सभी छेद चिह्नित कर दिए थे... तब मैंने सोचा था कि वे किसी तरह से कमरे के बीच को मापते हैं, लेकिन नहीं वे बस बीच में खड़े होते हैं और अनुमान से काम करते हैं।
 

benno098

17/07/2024 22:35:19
  • #2
नमस्ते,
कई प्रतिक्रियाओं के लिए बहुत धन्यवाद।
मैंने अब सब कुछ अपनाने की कोशिश की है और बिना किसी योजना के शुरूआत की है।
ठीक माप हमारे GU की योजना में दर्ज किए जाएंगे।
इस वक्त मेरी रुचि एक मोटे योजना में है ताकि कुछ भी भूल न जाएं।

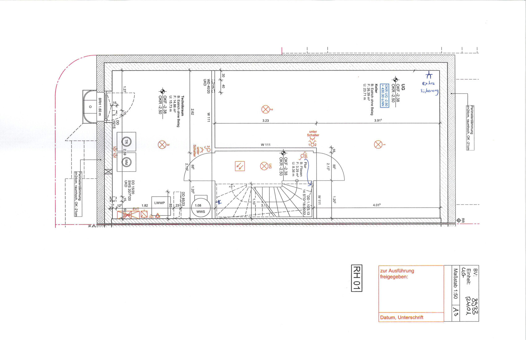
तहखाने में मैंने जानबूझकर ज्यादा योजना नहीं बनाई है। यहाँ केबल्स सतह पर लगाए जाएंगे और बाद में सस्ते में स्वयं स्थापित किए जा सकते हैं।

मैं आपके फीडबैक का इंतजार कर रहा हूँ।

शुभकामनाएँ, बेन्नो



 

hanse987

18/07/2024 00:13:15
  • #3
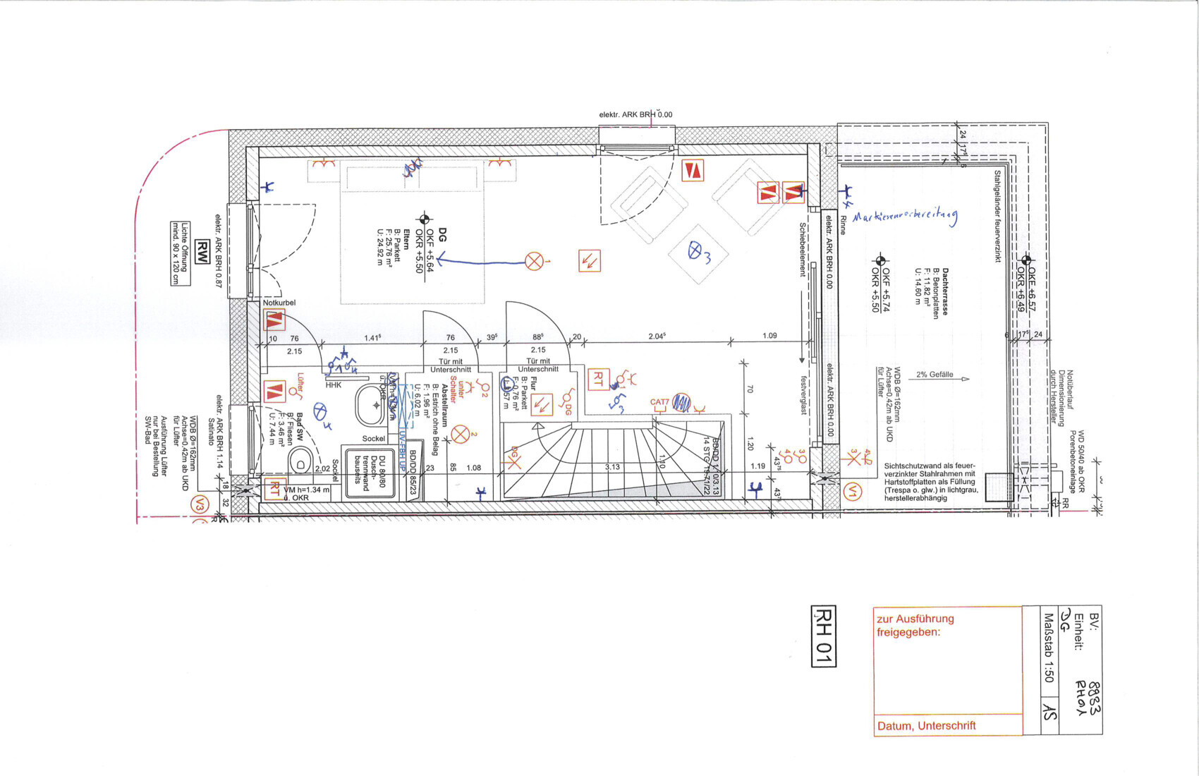
एल्क्ट्रोप्लानिंग से हटकर। तुम्हें पता है कि तुम DG में Schlafzimmer से Dachterrasse तक 10 सेमी ऊंचा स्टेप प्राप्त करोगे? DG में Schiebetür के ब्रुस्तुंगशोहे 0,00 का वास्तव में क्या संदर्भ है? कुल मिलाकर, मुझे Dachterrasse पर Bodenaufbau थोड़ा पतला लगता है या यह माप केवल Dämmung के OK तक ही है?
 

Mucuc22

18/07/2024 16:38:36
  • #4
अगर रोशनी के मामले में कुछ अच्छा चाहिए, तो उसमें निश्चित रूप से कुछ दिमागी मेहनत लगाई जा सकती है। इसके लिए यह मददगार होता है अगर फर्नीचर का कुछ हद तक पता हो। प्रति कमरे एक छत का लाइट होना सामान्य है, लेकिन अक्सर यह सबसे अच्छा विकल्प नहीं होता :)
 

समान विषय
25.07.2019पासाउ में छत की छत वाला घर71
16.10.2016कुल लागत बंगलो (220 वर्ग मीटर) छत की छत के साथ23
12.11.2016गाराज पर छत की छतरी10
22.03.2019निर्माण लागत 200 वर्ग मीटर + 30 वर्ग मीटर छत टैरेस + तहखाना (गाराज सहित)20
13.09.2017गेराज छत के लिए 150 किग्रा/मीटर² उपयोगी भार, छत की छतरी विकल्प के साथ?13
03.10.2018छत की छत के लिए फर्श निर्धारित करना: उद्यान-परिदृश्य निर्माता या छत बनाने वाला?10
18.08.2020सातवीं मंजिल की छत की बालकनी को सजाना47
08.10.20213. फ्लोर प्लान डिज़ाइन नया सिंगल-फैमिली हाउस 220 वर्गमीटर 2 पूर्ण मंजिलें छत का टैरेस61
11.10.2022एक परिवार के घर का फ़्लोर प्लान ढाल वाली ज़मीन पर टैरेस / छत टैरेस के साथ18
27.01.2023छत टेरेस योजना - कौन से खर्च सामने आते हैं?17
23.11.2024आंशिक विस्तार और छत की छत के साथ छत की छत के खर्चे, कोई अनुभव?17

Oben