sindy
2015-07-25 21:30:08
- #1
大家好,
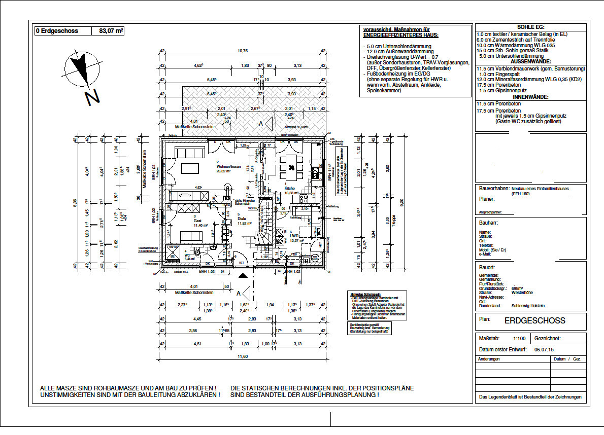
我们目前正处于房屋的规划阶段,非常感谢大家的建议。以下是基本信息:
土地面积:695平方米
角地
停车位/车棚数量:1-2
层数:1层半
屋顶形式:双坡屋顶,44°
建筑类型:1层半单户住宅
地下室:无
人数:目前2人
壁炉:有
我们对平面图总体上比较满意。作为外行,我们的想法当然有限。
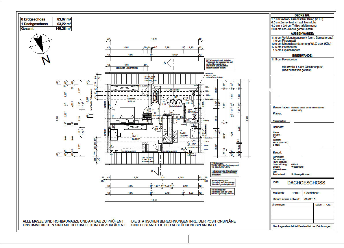
我们觉得一层设计非常好,只是对二楼还有些犹豫。
浴室让我们感到头疼。你们有建议吗?
卧室里我们还打算做一道轻质隔墙,后面将是更衣间。

我们目前正处于房屋的规划阶段,非常感谢大家的建议。以下是基本信息:
土地面积:695平方米
角地
停车位/车棚数量:1-2
层数:1层半
屋顶形式:双坡屋顶,44°
建筑类型:1层半单户住宅
地下室:无
人数:目前2人
壁炉:有
我们对平面图总体上比较满意。作为外行,我们的想法当然有限。
我们觉得一层设计非常好,只是对二楼还有些犹豫。
浴室让我们感到头疼。你们有建议吗?
卧室里我们还打算做一道轻质隔墙,后面将是更衣间。