Renditon
2021-01-06 22:05:13
- #1
大家好,
我们已经收到了第二个设计草案,整体上我们挺满意的。
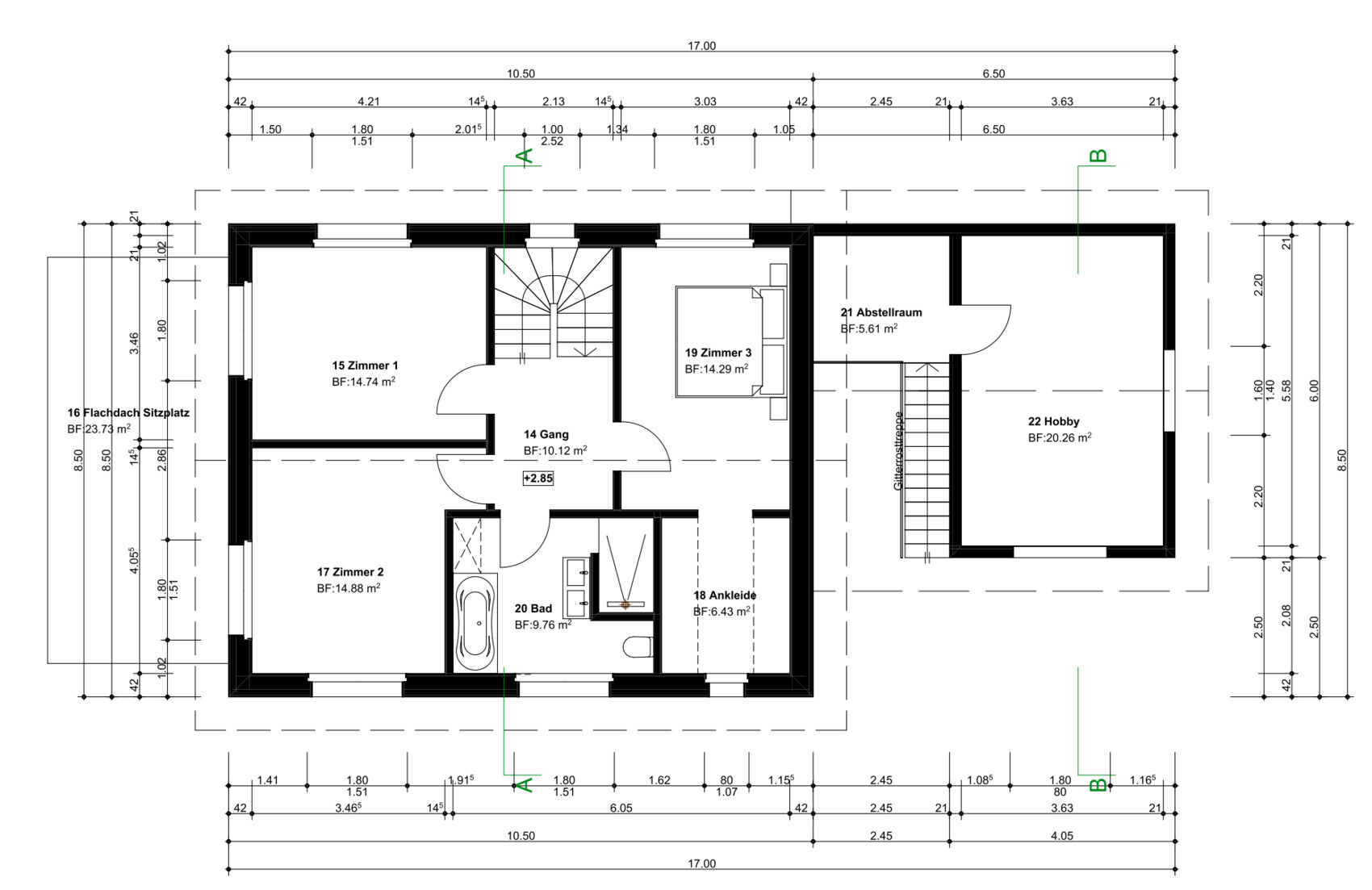
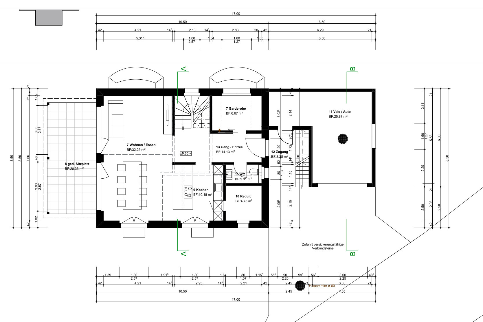
总体说明:
- 我们来自瑞士
- 地块北侧是农业区
- 该区的建筑是一座旧的蜂房
- 地下室1号房间用途多样,视人生阶段而定
- 地下室2号房间是办公室
- 地下室我们考虑过以后做一个桑拿房
规划/限制
国家:瑞士
地块面积:860平方米
地形:无坡度
容积率:-
建筑面积比:-
建筑窗户、建筑线及界限:窗户应为竖直矩形
边界建筑:-
停车位数量:-
层数:-
屋顶形式:非平屋顶
风格方向:-
朝向:-
最大高度/限制:-
其他要求:-
业主要求
风格方向、屋顶形式、建筑类型:按设计草案
地下室、楼层:按规划,放弃了底层/二层以上的方案
人员数量、年龄:2名成年人(30岁),2名儿童(1岁/2岁)+ 可能再1名儿童
底层、上层空间需求:计划中的房间比现有更大,对我们合适
办公室:家庭使用或远程办公? -> 远程办公
每年住宿客人数量:1
开放式还是封闭式结构:如设计草案
传统还是现代建筑风格:偏传统
开放厨房,厨岛:暂未确定,喜欢岛式方案
餐位数量:8个
壁炉:有,位置待定
音乐/立体声音响墙:不需要
阳台、屋顶平台:不需要
车库、车棚:有1个车库,2个户外停车位,可能有车棚
菜园、温室:只有一个高架花坛
房屋设计
设计者:
- 一家建筑公司的设计师
特别喜欢什么?为什么?
- 储藏室(Reduit):做饭时走动少
- 爱好室:有充足空间放我的CNC雕刻机
- 开放式厨房
- 地下采光井(地下室1号和2号房间)
不喜欢什么?为什么?
- 更希望将淋浴间设在底层而非地下室(已有准备)
优选采暖技术:目前计划采用远程供暖
如需放弃,可舍弃哪些细节/附加设施
- 可舍弃:首先是爱好室
- 不能舍弃:其他基本都需要
为何设计成现在这样的?例如:
- 与设计师交流、现场条件、建筑法规
我们希望听到大家的总体批评/改进建议/不同看法,也欢迎针对厨房/客厅规划的意见。时间久了,墙多了,看不清空间了。
谢谢大家!

我们已经收到了第二个设计草案,整体上我们挺满意的。
总体说明:
- 我们来自瑞士
- 地块北侧是农业区
- 该区的建筑是一座旧的蜂房
- 地下室1号房间用途多样,视人生阶段而定
- 地下室2号房间是办公室
- 地下室我们考虑过以后做一个桑拿房
规划/限制
国家:瑞士
地块面积:860平方米
地形:无坡度
容积率:-
建筑面积比:-
建筑窗户、建筑线及界限:窗户应为竖直矩形
边界建筑:-
停车位数量:-
层数:-
屋顶形式:非平屋顶
风格方向:-
朝向:-
最大高度/限制:-
其他要求:-
业主要求
风格方向、屋顶形式、建筑类型:按设计草案
地下室、楼层:按规划,放弃了底层/二层以上的方案
人员数量、年龄:2名成年人(30岁),2名儿童(1岁/2岁)+ 可能再1名儿童
底层、上层空间需求:计划中的房间比现有更大,对我们合适
办公室:家庭使用或远程办公? -> 远程办公
每年住宿客人数量:1
开放式还是封闭式结构:如设计草案
传统还是现代建筑风格:偏传统
开放厨房,厨岛:暂未确定,喜欢岛式方案
餐位数量:8个
壁炉:有,位置待定
音乐/立体声音响墙:不需要
阳台、屋顶平台:不需要
车库、车棚:有1个车库,2个户外停车位,可能有车棚
菜园、温室:只有一个高架花坛
房屋设计
设计者:
- 一家建筑公司的设计师
特别喜欢什么?为什么?
- 储藏室(Reduit):做饭时走动少
- 爱好室:有充足空间放我的CNC雕刻机
- 开放式厨房
- 地下采光井(地下室1号和2号房间)
不喜欢什么?为什么?
- 更希望将淋浴间设在底层而非地下室(已有准备)
优选采暖技术:目前计划采用远程供暖
如需放弃,可舍弃哪些细节/附加设施
- 可舍弃:首先是爱好室
- 不能舍弃:其他基本都需要
为何设计成现在这样的?例如:
- 与设计师交流、现场条件、建筑法规
我们希望听到大家的总体批评/改进建议/不同看法,也欢迎针对厨房/客厅规划的意见。时间久了,墙多了,看不清空间了。
谢谢大家!