K
Kaichunga
Hallo Hausbau-Freunde,
wir befinden uns aktuell in der frühen Planung unseres EFH. Budget& Finanzierung ist geklärt, ein favorisiertes GU hätten wir in Aussicht.
Nun haben wir mit einem befreundeten Architekten einen ersten Entwurf für den Grundriss gemacht, mit dem wir als Laien auf den ersten Blick und nach kleineren Anpassungen recht zufrieden sind.
Dennoch sind wir für weitere Tipps und Ratschläge offen und dankbar.
Bebauungsplan/Einschränkungen
Größe des Grundstücks: ca. 650 - 700m²
Hang: Ja. Hang abschüssig Richtung Süd-Westen - knapp 1,8m im Baufenster. Straße & Erschließung von Nord-Osten.
Grundflächenzahl: unbekannt
Geschossflächenzahl: unbekannt
Baufenster, Baulinie und -grenze: Kein Bebauungsplan. Orientierung an Nachbarbebauung.
Anzahl Stellplatz : 2 Stellplätze (vor / neben dem Haus)
Ausrichtung: Süd-Westen
Anforderungen der Bauherren
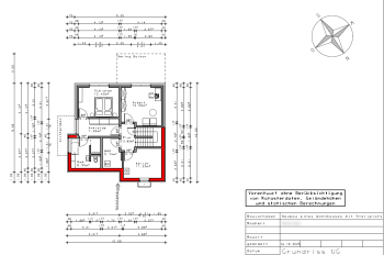
Keller, Geschosse: 2 Vollgeschosse - UG teilunterkellert.
Anzahl der Personen, 2 Erwachsene - mitte / ende 30
Raumbedarf im EG, UG: Gesamtbedarf 130m² (inkl. Kellerraum)
UG: Kellerraum, HAR, Schlafzimmer, Ankleide , Voll-Bad, weiterer Raum
EG: Wohnbereich , Küche, Gästezimmer, Gäste-WC, Abstellraum
Büro: Homeoffice
offene oder geschlossene Architektur: offener Wohn-Essbereich , der Rest eher separat
konservativ oder moderne Bauweise: eher modern
offene Küche, Kochinsel: offene Küche, Insel keine Pflicht
Anzahl Essplätze: 6-8
Balkon, Dachterrasse: Anbaubalkon im EG, kleine Terrasse im UG
Garage, Carport: Carport (nachträglich)
Hausentwurf
Von wem stammt die Planung: befreundeter Architekt, der u.a. auch für GU arbeitet.
Persönliches Preislimit fürs Haus, inkl. Ausstattung: ca. 400.000€ reine Baukosten ( Baunebenkosten, Außenanlagen, Küche & Balkon sind nicht in diesem Budget eingerechnet)
favorisierte Heiztechnik: Wärmepumpe inkl. PV und ggfls Speicher
Warum ist der Entwurf so geworden, wie er jetzt ist?
Der Architekt hat den Entwurf aus Basis folgender Eckpunkte gemacht:
Das Grundstück ist noch nicht 100% vermessen, daher die ca.-Angabe von 650-700m².
Wir möchten mit 2 Vollgeschossen bauen und aufgrund der Hanglage wird das UG zum Hang teilunterkellert sein, auch um einen "Kellerbereich" zu haben. Das UG wird zum Tal hin mit Schlaf-/Büroräumen belegt, um auch die Talseite sinnvoll zu nutzen und die Möglichkeit zu haben, die Terrasse über das Büro zu nutzen. "Hauptterrasse" wird allerdings der Balkon im EG.
Das EG wird auf Straßenniveau betreten und zum Tal mit einem großen Balkon im Wohnbereich abgeschlossen. Ob der Balkon über die volle oder nur die halbe Hausfront geht, steht noch nicht fest.
Seitlich (westlich) vom Grundstück befindet sich noch ein Weg, der allerdings nur zu einer nicht genutzten Wiese hinter dem Grundstück führt.
Das Dach wird vermutlich ein 20 Grad Satteldach mit Dachboden als Abstellfläche. Wir sind uns aktuell unsicher, ob bei dem Grundriss genug Fenster und somit genug Helligkeit im Wohn-/Essbereich vorhanden sind.
Außerdem würden wir uns wünschen, dass man die Ankleide evtl. besser nutzen kann, da im Raum mit 3 Türen und einem Fenster viel Stellfläche verloren geht. Eine Möglichkeit wäre evtl HAR & Keller zusammenzulegen und den Zugang zum Bad durch den jetzigen HAR zu gestalten. Da das Budget auch die Gesamtgröße vorgibt wären wir über Gestaltungstipps dankbar.

wir befinden uns aktuell in der frühen Planung unseres EFH. Budget& Finanzierung ist geklärt, ein favorisiertes GU hätten wir in Aussicht.
Nun haben wir mit einem befreundeten Architekten einen ersten Entwurf für den Grundriss gemacht, mit dem wir als Laien auf den ersten Blick und nach kleineren Anpassungen recht zufrieden sind.
Dennoch sind wir für weitere Tipps und Ratschläge offen und dankbar.
Bebauungsplan/Einschränkungen
Größe des Grundstücks: ca. 650 - 700m²
Hang: Ja. Hang abschüssig Richtung Süd-Westen - knapp 1,8m im Baufenster. Straße & Erschließung von Nord-Osten.
Grundflächenzahl: unbekannt
Geschossflächenzahl: unbekannt
Baufenster, Baulinie und -grenze: Kein Bebauungsplan. Orientierung an Nachbarbebauung.
Anzahl Stellplatz : 2 Stellplätze (vor / neben dem Haus)
Ausrichtung: Süd-Westen
Anforderungen der Bauherren
Keller, Geschosse: 2 Vollgeschosse - UG teilunterkellert.
Anzahl der Personen, 2 Erwachsene - mitte / ende 30
Raumbedarf im EG, UG: Gesamtbedarf 130m² (inkl. Kellerraum)
UG: Kellerraum, HAR, Schlafzimmer, Ankleide , Voll-Bad, weiterer Raum
EG: Wohnbereich , Küche, Gästezimmer, Gäste-WC, Abstellraum
Büro: Homeoffice
offene oder geschlossene Architektur: offener Wohn-Essbereich , der Rest eher separat
konservativ oder moderne Bauweise: eher modern
offene Küche, Kochinsel: offene Küche, Insel keine Pflicht
Anzahl Essplätze: 6-8
Balkon, Dachterrasse: Anbaubalkon im EG, kleine Terrasse im UG
Garage, Carport: Carport (nachträglich)
Hausentwurf
Von wem stammt die Planung: befreundeter Architekt, der u.a. auch für GU arbeitet.
Persönliches Preislimit fürs Haus, inkl. Ausstattung: ca. 400.000€ reine Baukosten ( Baunebenkosten, Außenanlagen, Küche & Balkon sind nicht in diesem Budget eingerechnet)
favorisierte Heiztechnik: Wärmepumpe inkl. PV und ggfls Speicher
Warum ist der Entwurf so geworden, wie er jetzt ist?
Der Architekt hat den Entwurf aus Basis folgender Eckpunkte gemacht:
- Hanglage
- Wunsch, keinen Vollkeller zu bauen
- Budgetrahmen
- gewünschte Räume (siehe oben)
Das Grundstück ist noch nicht 100% vermessen, daher die ca.-Angabe von 650-700m².
Wir möchten mit 2 Vollgeschossen bauen und aufgrund der Hanglage wird das UG zum Hang teilunterkellert sein, auch um einen "Kellerbereich" zu haben. Das UG wird zum Tal hin mit Schlaf-/Büroräumen belegt, um auch die Talseite sinnvoll zu nutzen und die Möglichkeit zu haben, die Terrasse über das Büro zu nutzen. "Hauptterrasse" wird allerdings der Balkon im EG.
Das EG wird auf Straßenniveau betreten und zum Tal mit einem großen Balkon im Wohnbereich abgeschlossen. Ob der Balkon über die volle oder nur die halbe Hausfront geht, steht noch nicht fest.
Seitlich (westlich) vom Grundstück befindet sich noch ein Weg, der allerdings nur zu einer nicht genutzten Wiese hinter dem Grundstück führt.
Das Dach wird vermutlich ein 20 Grad Satteldach mit Dachboden als Abstellfläche. Wir sind uns aktuell unsicher, ob bei dem Grundriss genug Fenster und somit genug Helligkeit im Wohn-/Essbereich vorhanden sind.
Außerdem würden wir uns wünschen, dass man die Ankleide evtl. besser nutzen kann, da im Raum mit 3 Türen und einem Fenster viel Stellfläche verloren geht. Eine Möglichkeit wäre evtl HAR & Keller zusammenzulegen und den Zugang zum Bad durch den jetzigen HAR zu gestalten. Da das Budget auch die Gesamtgröße vorgibt wären wir über Gestaltungstipps dankbar.



