Menü
Foren
Neue Beiträge
Foren durchsuchen
Kredit
Werbung
Ratgeber
Über Uns
Tags / Keywords
Anmelden
Registrieren
Aktuelles
Suche
Suche
Nur Titel durchsuchen
Von:
Letzte Aktivität
Registrieren
Menü
Anmelden
Registrieren
JavaScript ist deaktiviert. Für eine bessere Darstellung aktiviere bitte JavaScript in deinem Browser, bevor du fortfährst.
Lurchi2025's letzte Aktivität
L
Lurchi2025
antwortete auf das Thema
Grundriss und Hauspositionierung Bungalow mit 120qm auf Eckgrundstück
.
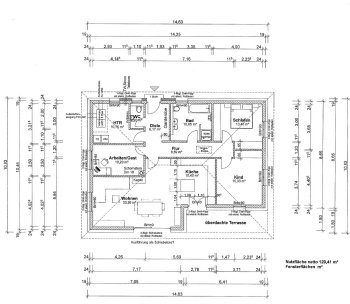
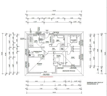
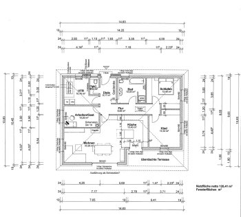
Ich denke, im Südwesten wäre die Terrasse schon optimal. Ich werde hier auch noch mal den Kontakt zum Bauamt suchen, inwieweit wir uns...
Vor 43 Minuten
L
Lurchi2025
antwortete auf das Thema
Grundriss und Hauspositionierung Bungalow mit 120qm auf Eckgrundstück
.
Diese Drehung des Gäste-WC hatte ich auch schon im Kopf, mich hat dieser lange Schlauch am Eingang des HTR gestört. Alternativ habe ich...
Heute um 11:20
L
Lurchi2025
reagierte auf den
Beitrag von Arauki11
im Thema
Grundriss und Hauspositionierung Bungalow mit 120qm auf Eckgrundstück
mit
Like
.
Das mit dem WZ kann ich verstehen und die ein gezeichnete Möblierung erscheint mir auch nicht passend, da hier ja keine 3 Personen...
Heute um 10:02
L
Lurchi2025
reagierte auf den
Beitrag von ypg
im Thema
Grundriss und Hauspositionierung Bungalow mit 120qm auf Eckgrundstück
mit
Like
.
Würde ich auch tauschen Der Junior wird auch mal größer und da könnten Interessenskonflikte am Abend zwischen Junior im Zimmer und...
Heute um 10:02
L
Lurchi2025
reagierte auf den
Beitrag von hanghaus2023
im Thema
Grundriss und Hauspositionierung Bungalow mit 120qm auf Eckgrundstück
mit
Like
.
Eventuell kannst das spiegeln. Ausser Ihr mögt im Osten die Terrasse? Hier mal noch einige Anpassung zum GR. Der Eingang zum WZ...
Heute um 10:02
L
Lurchi2025
antwortete auf das Thema
Grundriss und Hauspositionierung Bungalow mit 120qm auf Eckgrundstück
.
Das war eine schlechte Formulierung von mir, ich meinte damit meinen Mann. Wir haben aktuell genau diese 1,20 in unserer Wohnung, sogar...
Heute um 08:42
L
Lurchi2025
antwortete auf das Thema
Grundriss und Hauspositionierung Bungalow mit 120qm auf Eckgrundstück
.
Das östliche Nachbargrundstück wird ebenfalls neu bebaut, ebenfalls mit einem Bungalow von ca. 110qm. Soweit ich die Planungen kenne...
Gestern um 12:41
L
Lurchi2025
antwortete auf das Thema
Grundriss und Hauspositionierung Bungalow mit 120qm auf Eckgrundstück
.
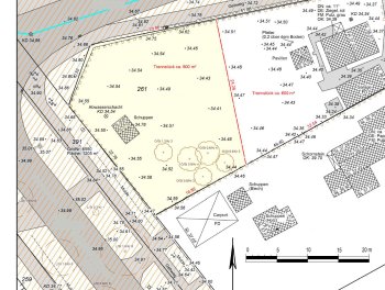
Anbei die beiden möglichen Hauspositionen anhand des aktuellen Entwurfs. Terrasse an Kinderzimmer hatten wir jetzt einfach mal anhand...
Gestern um 11:52
L
Lurchi2025
hat das Thema
Grundriss und Hauspositionierung Bungalow mit 120qm auf Eckgrundstück
in
Grundrissplanung / Grundstücksplanung
erstellt.
Hallo lieber Forengemeinde, ich bin schon länger eine stille Mitleserin im Forum und möchte euch jetzt selbst um Hilfe bitten. Wir...
Gestern um 08:58
Oben