Menü
Foren
Neue Beiträge
Foren durchsuchen
Kredit
Werbung
Ratgeber
Über Uns
Tags / Keywords
Anmelden
Registrieren
Aktuelles
Suche
Suche
Nur Titel durchsuchen
Von:
Letzte Aktivität
Registrieren
Menü
Anmelden
Registrieren
JavaScript ist deaktiviert. Für eine bessere Darstellung aktiviere bitte JavaScript in deinem Browser, bevor du fortfährst.
lawyer_51's letzte Aktivität
L
lawyer_51
reagierte auf den
Beitrag von Siedler34
im Thema
Grundriss Einfamilienhaus Stadtvilla – moderner Architektenentwurf
mit
Like
.
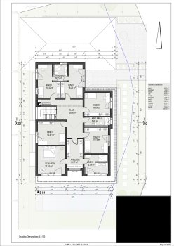
Für 5 Kinder ist ein Bad zu wenig. Zumindest wäre das bei uns so.
14 Oktober 2025
L
lawyer_51
antwortete auf das Thema
Grundriss Einfamilienhaus Stadtvilla – moderner Architektenentwurf
.
Das hatten wir auch schon auf der Liste und werden wir auf jeden Fall umplanen:) Dies wurde mehrfach genannt und ist sicher ein...
14 Oktober 2025
L
lawyer_51
antwortete auf das Thema
Grundriss Einfamilienhaus Stadtvilla – moderner Architektenentwurf
.
Hierzu soll die Garderobe dienen und für die eigne Kleidung und Schuhe sicher auch der Hauswirtschaftsraum als Schleuse von der Garage...
14 Oktober 2025
L
lawyer_51
antwortete auf das Thema
Grundriss Einfamilienhaus Stadtvilla – moderner Architektenentwurf
.
Lieber Onkel 11ant (ich greife das hier an der Stelle mal so auf), ich danke für Deine Mühen der Durchsicht und bin durchaus für Kritik...
14 Oktober 2025
L
lawyer_51
antwortete auf das Thema
Grundriss Einfamilienhaus Stadtvilla – moderner Architektenentwurf
.
Danke für die Kommentare und Anregungen. Wir gehen diese bereits im Detail durch... Zum Bezugspunkt kann ich leider gar nichts sagen...
13 Oktober 2025
L
lawyer_51
reagierte auf den
Beitrag von ypg
im Thema
Grundriss Einfamilienhaus Stadtvilla – moderner Architektenentwurf
mit
Like
.
Du, wenn Ihr die knapp 2 Mio habt, dann ist doch ok. Kinder brauchen in den Gemeinschaftsräumen Platz. Ob sie nun so große Zimmer...
13 Oktober 2025
L
lawyer_51
antwortete auf das Thema
Grundriss Einfamilienhaus Stadtvilla – moderner Architektenentwurf
.
Herzlichen Dank erst einmal für die schnelle Hilfe. Ich habe die Dateien nochmals neu erzeugt und füge diese an.
13 Oktober 2025
L
lawyer_51
hat das Thema
Grundriss Einfamilienhaus Stadtvilla – moderner Architektenentwurf
in
Grundrissplanung / Grundstücksplanung
erstellt.
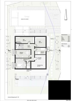
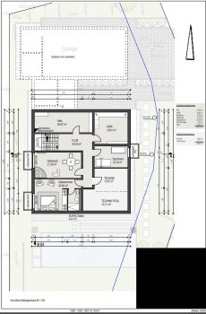
Hallo Zusammen, wir haben einen Entwurf von unserem Architekten bekommen, den wir für den ersten Aufschlag Klasse finden. Da wir nicht...
13 Oktober 2025
Oben