Menü
Foren
Neue Beiträge
Foren durchsuchen
Kredit
Werbung
Ratgeber
Über Uns
Tags / Keywords
Anmelden
Registrieren
Aktuelles
Suche
Suche
Nur Titel durchsuchen
Von:
Letzte Aktivität
Registrieren
Menü
Anmelden
Registrieren
JavaScript ist deaktiviert. Für eine bessere Darstellung aktiviere bitte JavaScript in deinem Browser, bevor du fortfährst.
Ian_Mer's letzte Aktivität
I
Ian_Mer
antwortete auf das Thema
Grundrissplanung Neubau Einfamilienhaus, schmales Grundstück, Erstentwurf Architekt
.
Ja richtig, ich meinte Baugrenze...
Dienstag um 14:03
I
Ian_Mer
antwortete auf das Thema
Grundrissplanung Neubau Einfamilienhaus, schmales Grundstück, Erstentwurf Architekt
.
Es ist auch ein optischer Effekt, damit das Haus nicht wie ein viereckiger Kasten aussieht. Aber klar ob Kosten und Nutzen im Verhältnis...
Dienstag um 14:00
I
Ian_Mer
antwortete auf das Thema
Grundrissplanung Neubau Einfamilienhaus, schmales Grundstück, Erstentwurf Architekt
.
Absolut, als Laie muss man sich in das Thema auch erstmal einarbeiten. Hilft dann immer wenn mehrere drauf schauen. Da das Baugebiet...
Dienstag um 13:59
I
Ian_Mer
antwortete auf das Thema
Grundrissplanung Neubau Einfamilienhaus, schmales Grundstück, Erstentwurf Architekt
.
Das stimmt, die könnte man definitv verkleinern. Wie seht ihr denn die Platzierung des Hauses zwischen den Baulinien? Macht es Sinn das...
Dienstag um 13:37
I
Ian_Mer
antwortete auf das Thema
Grundrissplanung Neubau Einfamilienhaus, schmales Grundstück, Erstentwurf Architekt
.
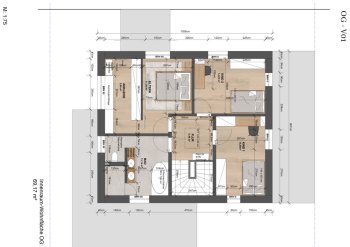
Ich finde auch, dass die ursprünglich geplante Treppe besser zum Grundriss passt als die Podesttreppe. Wir haben der Architektin gesagt...
Dienstag um 12:55
I
Ian_Mer
antwortete auf das Thema
Grundrissplanung Neubau Einfamilienhaus, schmales Grundstück, Erstentwurf Architekt
.
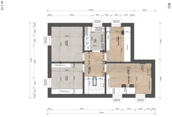
Man darf hier ja keine Links posten soweit ich weiß, sonst könnte ich die Dokumente auch verlinken. Habe gerade mal einen Screenshot...
Dienstag um 12:39
I
Ian_Mer
reagierte auf den
Beitrag von hanghaus2023
im Thema
Grundrissplanung Neubau Einfamilienhaus, schmales Grundstück, Erstentwurf Architekt
mit
Like
.
T geht mMn auch, hast halt dann das WC über der Küche
Dienstag um 11:01
I
Ian_Mer
antwortete auf das Thema
Grundrissplanung Neubau Einfamilienhaus, schmales Grundstück, Erstentwurf Architekt
.
Lt. Bebauungsplan ist ein Flachdach mit Begrünung vorgeschrieben, daher bleibt uns leider keine andere Wahl.
Dienstag um 11:01
I
Ian_Mer
reagierte auf den
Beitrag von hanghaus2023
im Thema
Grundrissplanung Neubau Einfamilienhaus, schmales Grundstück, Erstentwurf Architekt
mit
Like
.
Nix. Das Treppenhaus sollte ein grosszügiges Fenster im OG erhalten. Ist bei einer Podesttreppe sogar recht gut zu planen. Das...
Dienstag um 10:45
I
Ian_Mer
antwortete auf das Thema
Grundrissplanung Neubau Einfamilienhaus, schmales Grundstück, Erstentwurf Architekt
.
Danke für deine Ideen. Da wir ein Flachdach bauen müssen, fehlt uns der Stauraum wenn wir ohne Keller planen. Da Wohnfläche teurer ist...
Dienstag um 10:22
I
Ian_Mer
antwortete auf das Thema
Grundrissplanung Neubau Einfamilienhaus, schmales Grundstück, Erstentwurf Architekt
.
Was hältst du von Teilunterkellerung? Würde es z. B. Sinn machen der Erker nicht zu unterkellern? Oder spart das nichts weil man dafür...
Dienstag um 09:56
I
Ian_Mer
antwortete auf das Thema
Grundrissplanung Neubau Einfamilienhaus, schmales Grundstück, Erstentwurf Architekt
.
Der soll erstmal vor der Garage geplant werden. Zur Einfahrt/Vorgarten haben wir allerdings auch noch keine gute Idee wie wir es...
Dienstag um 08:41
I
Ian_Mer
antwortete auf das Thema
Grundrissplanung Neubau Einfamilienhaus, schmales Grundstück, Erstentwurf Architekt
.
Ja, verstehe deine Bedenken. Die Außenanlagen waren noch nicht im Budget und wir haben auch noch einen Puffer. Dann sollte es passen.
Dienstag um 08:38
I
Ian_Mer
hat das Thema
Grundrissplanung Neubau Einfamilienhaus, schmales Grundstück, Erstentwurf Architekt
in
Grundrissplanung / Grundstücksplanung
erstellt.
Hallo zusammen, wir planen gerade unser Einfamilienhaus. Wir haben nun den ersten Entwurf für unseren Grundriss, er ist aber noch nicht...
Montag um 22:30
Oben