Menü
Foren
Neue Beiträge
Foren durchsuchen
Kredit
Werbung
Ratgeber
Über Uns
Tags / Keywords
Anmelden
Registrieren
Aktuelles
Suche
Suche
Nur Titel durchsuchen
Von:
Letzte Aktivität
Registrieren
Menü
Anmelden
Registrieren
JavaScript ist deaktiviert. Für eine bessere Darstellung aktiviere bitte JavaScript in deinem Browser, bevor du fortfährst.
Drummer's letzte Aktivität
D
Drummer
antwortete auf das Thema
Grundriss-Optimierung: schmales 148 m2 Einfamilienhaus auf 504 m2 Grundstück
.
Die Verträge waren in unserem Fall klar getrennt. Der Bescheid für die Grunderwerbsteuer ist bereits bezahlt und bezog sich nur auf das...
Gestern um 21:41
D
Drummer
antwortete auf das Thema
Grundriss-Optimierung: schmales 148 m2 Einfamilienhaus auf 504 m2 Grundstück
.
Danke fürs Nachfragen. Korrekt sind die Infos zur Ausrichtung in Beitrag #1. Aus Diskretionsgründen scheint die Lage auf der...
Sonntag um 09:10
D
Drummer
antwortete auf das Thema
Grundriss-Optimierung: schmales 148 m2 Einfamilienhaus auf 504 m2 Grundstück
.
Wir haben in den letzten Tagen noch eine Variante durchgespielt, bei der sich der Hauseingang anstatt in Richtung Nord-Nordwest in...
Samstag um 23:50
D
Drummer
antwortete auf das Thema
Grundriss-Optimierung: schmales 148 m2 Einfamilienhaus auf 504 m2 Grundstück
.
Vielen Dank @ypg und @11ant für die ausführlichen Warnungen zum Thema Eingeschossigkeit, auch in Bezug auf die Statik. Wenn meine...
Samstag um 23:16
D
Drummer
antwortete auf das Thema
Grundriss-Optimierung: schmales 148 m2 Einfamilienhaus auf 504 m2 Grundstück
.
Danke für den Hinweis, wenig Raumweitengefühl wünscht man sich natürlich nicht für das zukünftige Eigenheim. Somit eine Motivation für...
15 Dezember 2025
D
Drummer
antwortete auf das Thema
Grundriss-Optimierung: schmales 148 m2 Einfamilienhaus auf 504 m2 Grundstück
.
Um den Charakter dieses Wohngebietes zu erhalten, gibt der Bebauungsplan für u.A. unser Grundstück vor, dass nur Einzelhäuser gebaut...
15 Dezember 2025
D
Drummer
antwortete auf das Thema
Grundriss-Optimierung: schmales 148 m2 Einfamilienhaus auf 504 m2 Grundstück
.
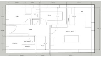
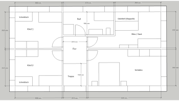
Wie angekündigt hier außerdem der initale Entwurf des Projektentwicklers. Dieser stammt aus der Zeit, als das projektierte Grundstück...
11 Dezember 2025
D
Drummer
antwortete auf das Thema
Grundriss-Optimierung: schmales 148 m2 Einfamilienhaus auf 504 m2 Grundstück
.
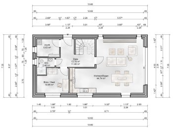
Vielen Dank bis hierhin für die Rückmeldungen! :) Im Folgenden der Versuch, auf alles einzugehen: Thema Aufteilung Büro/Hobby...
11 Dezember 2025
D
Drummer
hat das Thema
Grundriss-Optimierung: schmales 148 m2 Einfamilienhaus auf 504 m2 Grundstück
in
Grundrissplanung / Grundstücksplanung
erstellt.
Liebes Forum, meine Frau und ich haben im Oktober ein Grundstück in Hamburg erworben. Die Finanzierung steht, ein Generalunternehmer...
10 Dezember 2025
Oben