Olum
22/11/2011 09:11:51
- #1
सुप्रभात,
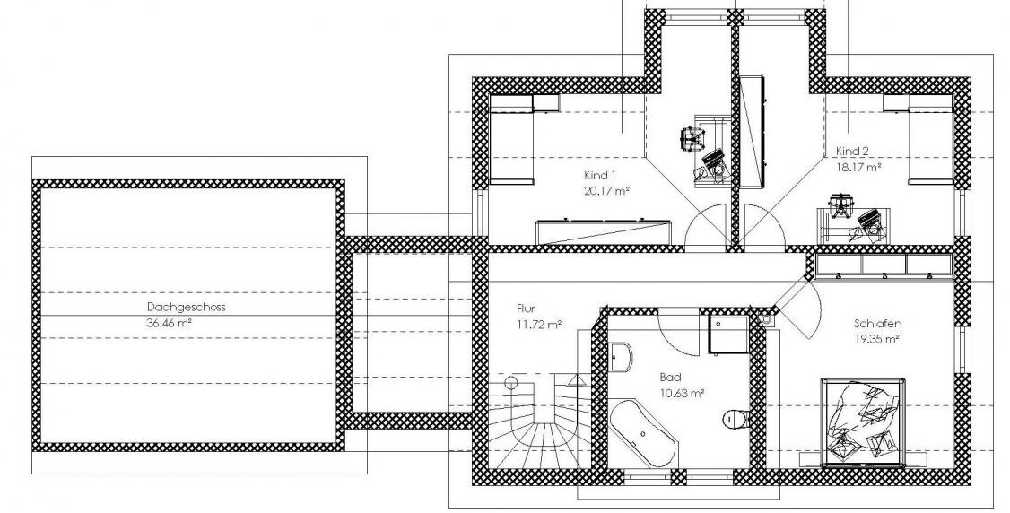
संग्लग्न हमारी घर की रूपरेखा है, छत के तल की योजना को छोड़कर सब कुछ लगभग अंतिम है। शायद किसी को कुछ और दिखे।
सुधार और सुझाव स्वागत हैं :)

संग्लग्न हमारी घर की रूपरेखा है, छत के तल की योजना को छोड़कर सब कुछ लगभग अंतिम है। शायद किसी को कुछ और दिखे।
सुधार और सुझाव स्वागत हैं :)