DanielM85
10.01.2020 23:05:00
- #1
Buenas noches a todos,
soy un novato aquí en el foro y estoy construyendo una casa unifamiliar (180 m² de superficie habitable).
Como hago algunas cosas en la casa por mi cuenta (entre otras, toda la electricidad incluyendo [URL_INTERNA=https://www.hausbau-forum.de/threads/knx-erfahrungen-installation-in-einfamilienhaus.32644/
La terraza y el camino alrededor de la casa muy probablemente serán losas de cerámica 60x60x2 colocadas sobre mortero drenante (o mortero de asiento con grava y adhesivo).
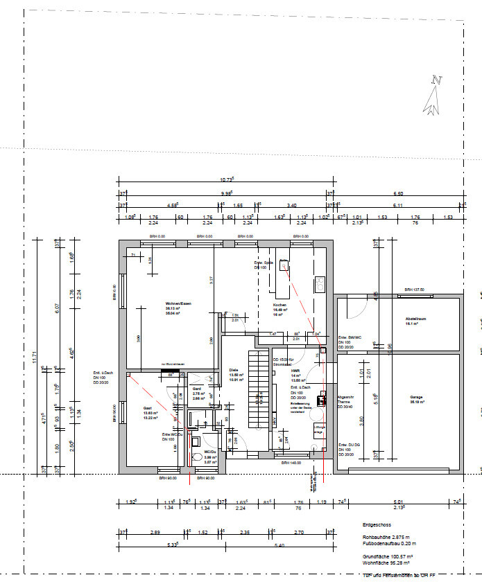
La casa en sí está 20 cm más alta que el garaje - queremos salir casi a nivel del salón hacia la terraza.
Donde aún no tenemos buena idea / solución: ¿cómo diseñar el pavimento detrás del garaje hasta la casa? - Los casi 70 cm a la izquierda de la puerta del garaje hacia la casa deberían tener el nivel de la terraza (casi demasiado justo para colocar allí una barbacoa - que sería precisamente una ubicación ideal para ella - pero aquí un escalón a la terraza sería muy complicado).
Espero haber podido transmitir mis preguntas con mi primer post aquí y espero vuestros comentarios.
Daniel




soy un novato aquí en el foro y estoy construyendo una casa unifamiliar (180 m² de superficie habitable).
Como hago algunas cosas en la casa por mi cuenta (entre otras, toda la electricidad incluyendo [URL_INTERNA=https://www.hausbau-forum.de/threads/knx-erfahrungen-installation-in-einfamilienhaus.32644/
- KNX[/URL_INTERNA]), la planificación del jardín / riego se ha quedado atrás por falta de tiempo, aquí espero vuestro apoyo (pero ya he hecho un trabajo previo ).
Primero que nada, encontraréis en el archivo adjunto las vistas exteriores necesarias y una planta para una mejor comprensión (junto con mis anotaciones)
La casa está a 5 m de la calle (que no se terminará hasta ~finales de 2021 y se elevará unos 30 cm respecto a la calle de construcción - por eso aplazaré la ejecución del jardín delantero hasta entonces - pero ya pavimentaré la entrada en verano).
El enlucido interior llega la próxima semana y la finalización prevista es a finales de mayo - por eso quiero ocuparme pronto de la planificación del jardín y el riego.
Quiero crear esta primavera/verano el jardín, la terraza y el camino alrededor de la casa (incluyendo la cerca hasta el límite de 7 m al oeste) así como toda la superficie del césped.
Por el oeste terminaría en el límite de 5 m y esperaría con la construcción del jardín delantero hasta que la calle final esté hecha - PERO quiero colocar el riego delantero ya ahora bajo el césped.
En la sala de taller detrás del garaje he colocado un tubo KG de 100 entre el garaje y el jardín - mi idea era poner la conexión de agua en el garaje (contador de agua separado) y luego pasar el agua y los cables necesarios entre garaje y jardín por el tubo vacío, de modo que se forme una posición marcada en naranja de la "central de riego".
Qué quiero regar:
Todo - es decir tanto toda la superficie del césped, como la cerca, los parterres en el jardín así como los parterres aún no planificados en el jardín delantero.
En mi investigación he encontrado los sistemas de riego de Hunter (y por ahora me quiero centrar en la planificación con ellos).
Quiero probablemente controlar las electroválvulas del riego por KNX (24V AC y un actuador separado necesario).
Dónde necesito ayuda (he leído los manuales entre otros de Hunter - pero me falta la experiencia práctica y espero vuestra ayuda):
Planificación del riego / experiencia:
[*]¿Cómo haríais concretamente el riego para la planificación del jardín adjunta?
[LIST]
[*]Idealmente con lista de materiales, es decir, cuántos circuitos etc...
[*]Como el miércoles tengo una cita con el instalador sanitario - ¿debería decirle que quiero directamente una conexión exterior de 1 pulgada para el agua exterior (o es suficiente 3/4)?
[*]¿Es posible (pérdida de presión) regar los parterres del jardín delantero desde la central de riego detrás de la casa?
[*]¿Tenéis más comentarios sobre la planificación del jardín?
La terraza y el camino alrededor de la casa muy probablemente serán losas de cerámica 60x60x2 colocadas sobre mortero drenante (o mortero de asiento con grava y adhesivo).
La casa en sí está 20 cm más alta que el garaje - queremos salir casi a nivel del salón hacia la terraza.
Donde aún no tenemos buena idea / solución: ¿cómo diseñar el pavimento detrás del garaje hasta la casa? - Los casi 70 cm a la izquierda de la puerta del garaje hacia la casa deberían tener el nivel de la terraza (casi demasiado justo para colocar allí una barbacoa - que sería precisamente una ubicación ideal para ella - pero aquí un escalón a la terraza sería muy complicado).
Espero haber podido transmitir mis preguntas con mi primer post aquí y espero vuestros comentarios.
Daniel