philipok_de
2019-10-27 14:27:16
- #1
大家好,论坛的朋友们,
我想向大家介绍一下我们与建筑师合作的成果,并希望能得到你们的反馈。
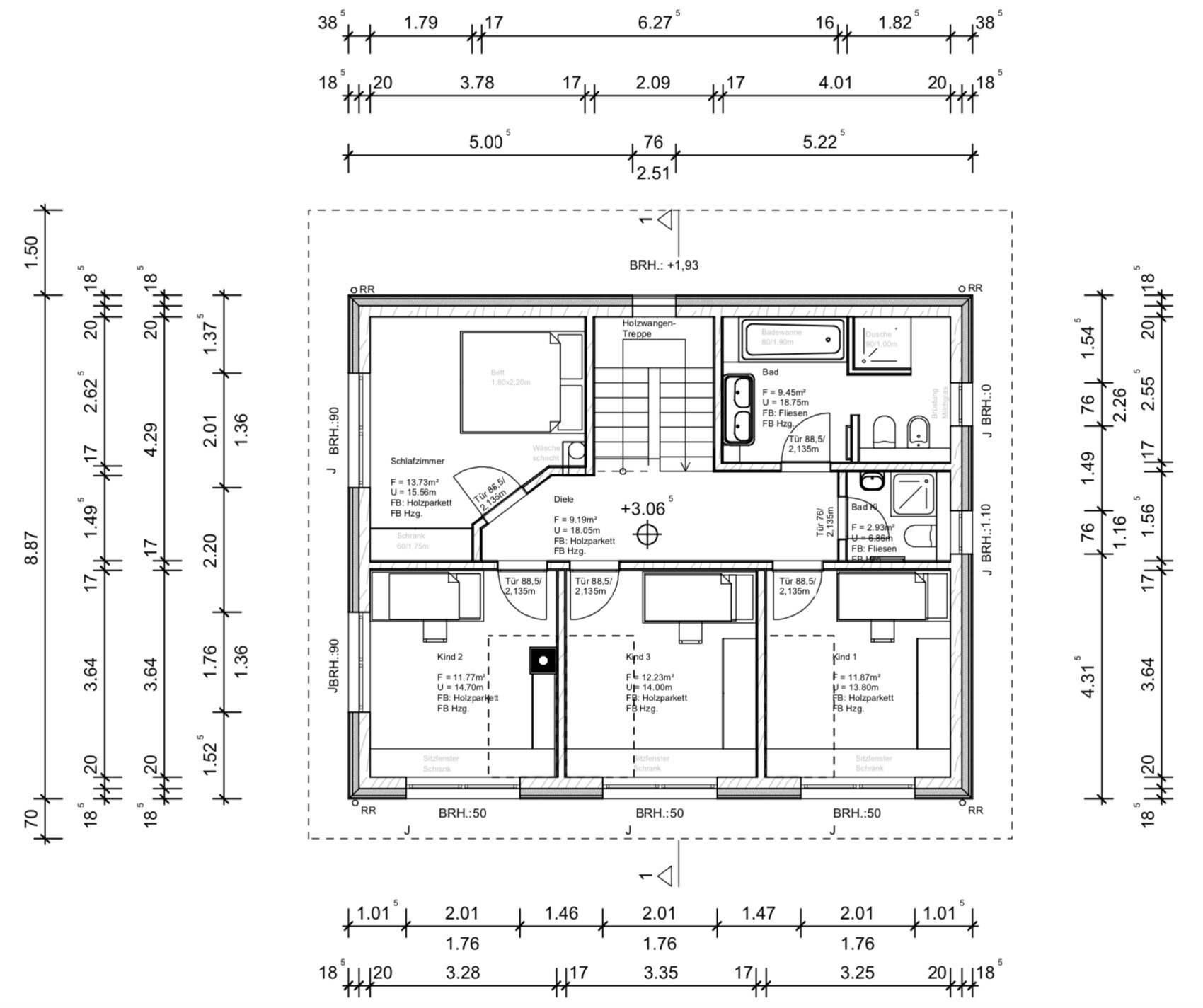
我们家里将有五个人一起生活。由于我们有很大的朋友圈,并且要从城市搬到乡下,我希望我们的朋友们能够经常来访,因此我们设计了一个带浴室(淋浴,卫生间)的客房。以后如果有父母一方单独留下并希望和我们一起生活,这个房间也可以用作护理房。
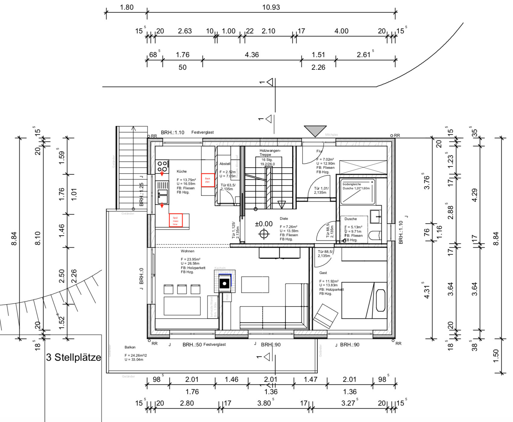
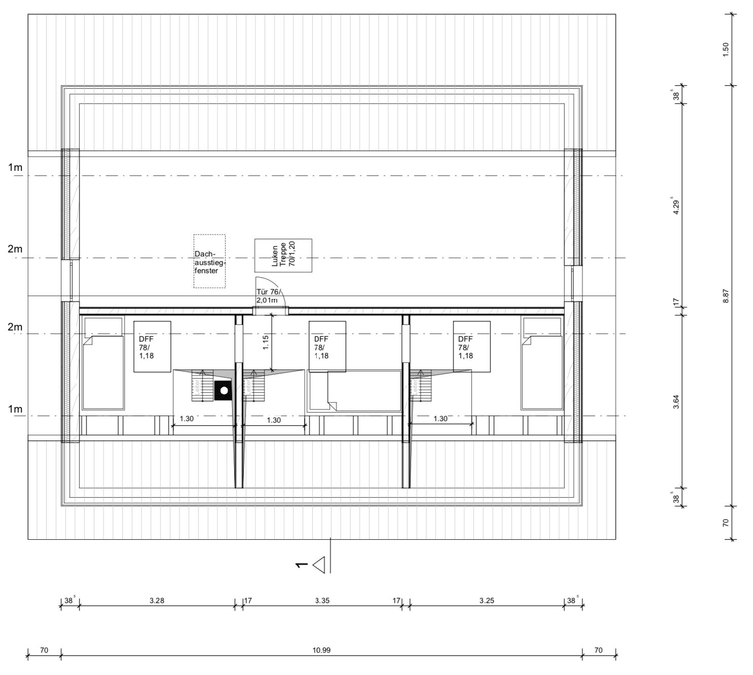
供暖系统计划采用地源热泵和一个带水循环的壁炉(底层)。由于房子完全无遮挡,且一边的屋顶完全朝南,我们计划在这半边屋顶大面积安装光伏组件。房子很高,基本上几乎看不到屋顶。
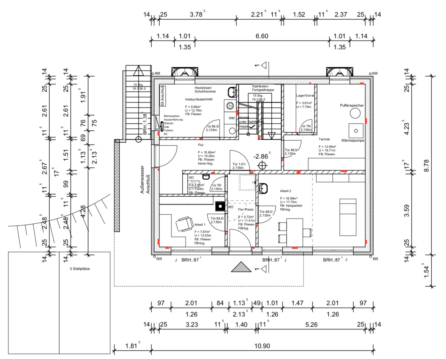
地下室计划有一半用于商业用途,配备有:
因此设有独立入口。作为替代方案,如果发生用途变更,地下室也可以改成度假公寓。
我们还计划在地下室放置洗衣机和烘干机,并设计了从上层经过中间层直达地下室的洗衣槽。
现在期待大家提出优化的建议。

我想向大家介绍一下我们与建筑师合作的成果,并希望能得到你们的反馈。
我们家里将有五个人一起生活。由于我们有很大的朋友圈,并且要从城市搬到乡下,我希望我们的朋友们能够经常来访,因此我们设计了一个带浴室(淋浴,卫生间)的客房。以后如果有父母一方单独留下并希望和我们一起生活,这个房间也可以用作护理房。
供暖系统计划采用地源热泵和一个带水循环的壁炉(底层)。由于房子完全无遮挡,且一边的屋顶完全朝南,我们计划在这半边屋顶大面积安装光伏组件。房子很高,基本上几乎看不到屋顶。
地下室计划有一半用于商业用途,配备有:
[*]小型办公室
[*]包括患者卫生间的自然疗法诊所
因此设有独立入口。作为替代方案,如果发生用途变更,地下室也可以改成度假公寓。
我们还计划在地下室放置洗衣机和烘干机,并设计了从上层经过中间层直达地下室的洗衣槽。
现在期待大家提出优化的建议。