FelixDem
2013-11-01 22:04:20
- #1
你好,
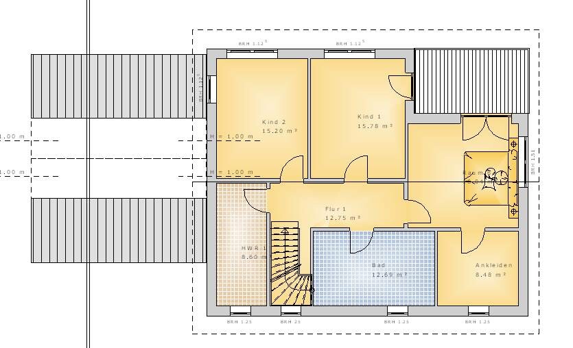
我们已经预订了一块地,目前正在规划我们的房屋建设。
这块地朝南(长度:35米),紧邻一个美丽的落叶林。
由于地下水位较高,我们只能采用基础板施工,因此我们计划盖一个稍大一些的房子(约175到180平方米)。
我们考虑了以下几点:
- 一进门就能看到森林
- 办公室直接连接客厅,这样可以快速收拾/隐藏小女儿的玩具
- 额外的衣帽间
- 两个大儿童房,约15平方米
外部颜色方案尚未确定,我们倾向于选择灰色窗户,但目前还无所谓。
我们的家庭成员都非常喜欢这个方案,但我们非常希望听听你们的“独立意见”。
非常期待你们的评论和改进建议。
此致
敬礼,
FelixDem



我们已经预订了一块地,目前正在规划我们的房屋建设。
这块地朝南(长度:35米),紧邻一个美丽的落叶林。
由于地下水位较高,我们只能采用基础板施工,因此我们计划盖一个稍大一些的房子(约175到180平方米)。
我们考虑了以下几点:
- 一进门就能看到森林
- 办公室直接连接客厅,这样可以快速收拾/隐藏小女儿的玩具
- 额外的衣帽间
- 两个大儿童房,约15平方米
外部颜色方案尚未确定,我们倾向于选择灰色窗户,但目前还无所谓。
我们的家庭成员都非常喜欢这个方案,但我们非常希望听听你们的“独立意见”。
非常期待你们的评论和改进建议。
此致
敬礼,
FelixDem