EmNaLeSaTo
2018-07-22 13:45:10
- #1
亲爱的大家,
关于开工所需信息的收集,我们现在有些不知所措,担心因为不了解情况会导致我们的建筑项目延期。
已有以下事实:
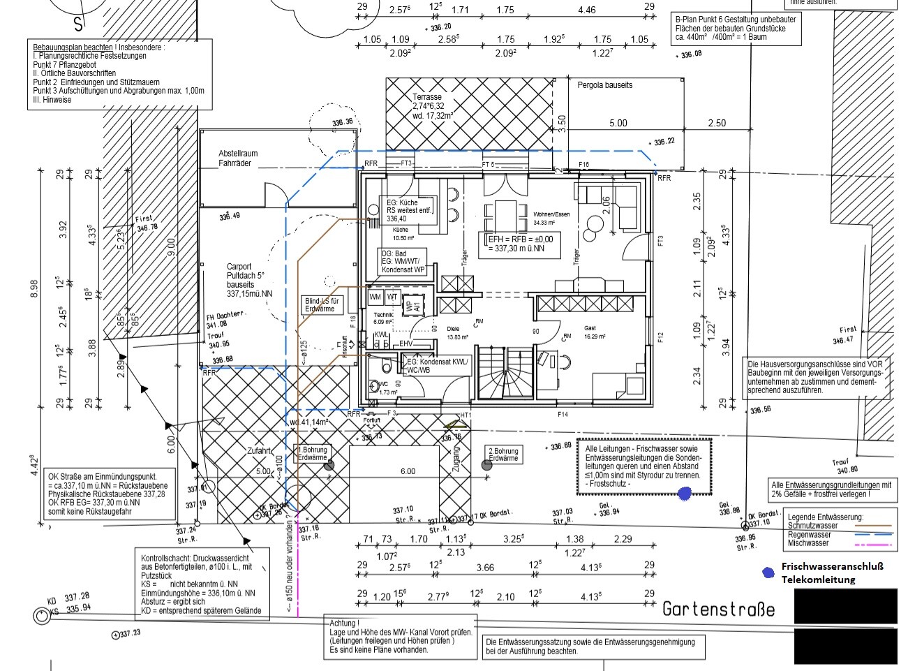
计划是在图纸上所示的位置建一栋单户住宅(预制房)。上周四我们已经提交了建筑申请,现在想开始处理地块的接入问题,避免因为准备太晚而出现时间上的延误……还是说我们现在已经迟了?
地块上已经有一条自来水管道,包括水表等设备,还有一根电信电缆,仅此而已。现在的问题是,我们应该怎样最好地推进,应该找哪些部门联系?
我的计划是周一去市政公用事业公司,处理电力和水务问题,因为这两项接入也需要铺设,当前位置的接入没有太大用处。是否有必要完全拆除现有的水接入,并按照粉色线条重新铺设?
随后我打算打给Unitymedia,办理有线电视接入,因为我们也希望继续通过有线方式上网。
通常需要多久相关部门才会开始工作?
关于整个事情,我们真的感到有些无措。
问候
托比

关于开工所需信息的收集,我们现在有些不知所措,担心因为不了解情况会导致我们的建筑项目延期。
已有以下事实:
计划是在图纸上所示的位置建一栋单户住宅(预制房)。上周四我们已经提交了建筑申请,现在想开始处理地块的接入问题,避免因为准备太晚而出现时间上的延误……还是说我们现在已经迟了?
地块上已经有一条自来水管道,包括水表等设备,还有一根电信电缆,仅此而已。现在的问题是,我们应该怎样最好地推进,应该找哪些部门联系?
我的计划是周一去市政公用事业公司,处理电力和水务问题,因为这两项接入也需要铺设,当前位置的接入没有太大用处。是否有必要完全拆除现有的水接入,并按照粉色线条重新铺设?
随后我打算打给Unitymedia,办理有线电视接入,因为我们也希望继续通过有线方式上网。
通常需要多久相关部门才会开始工作?
关于整个事情,我们真的感到有些无措。
问候
托比