peaches
2012-01-02 22:06:13
- #1
您好,亲爱的论坛成员,
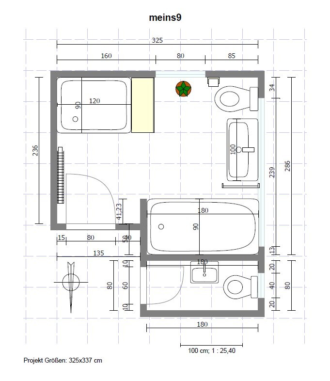
我打算在第二季度初建造一座单层住宅。该建筑项目的居住面积为110平方米,设计供2人居住。
对于浴室的设计我还不满意。我尝试了多种方案,但卫生设施的布局似乎还不够理想。
在右侧(东侧)从檐口到山墙有一扇三角形的固定窗户,朝北的另一扇窗户的宽度和位置还可以调整。
西侧是家政间,南侧我设置了一个客用卫生间。不幸的是,空间无法变大,反而可能需要为了家政间而缩小。
浴室内部我想要一个平地淋浴间带推拉门,一个双人浴缸和一个大洗手台。北侧的窗户应保持自由通行。
我对客用卫生间考虑了很久,是否真的需要,最后勉强决定保留一个。
你们有什么改进建议吗?
此致
彼得


我打算在第二季度初建造一座单层住宅。该建筑项目的居住面积为110平方米,设计供2人居住。
对于浴室的设计我还不满意。我尝试了多种方案,但卫生设施的布局似乎还不够理想。
在右侧(东侧)从檐口到山墙有一扇三角形的固定窗户,朝北的另一扇窗户的宽度和位置还可以调整。
西侧是家政间,南侧我设置了一个客用卫生间。不幸的是,空间无法变大,反而可能需要为了家政间而缩小。
浴室内部我想要一个平地淋浴间带推拉门,一个双人浴缸和一个大洗手台。北侧的窗户应保持自由通行。
我对客用卫生间考虑了很久,是否真的需要,最后勉强决定保留一个。
你们有什么改进建议吗?
此致
彼得