Dr Fu
2020-08-16 09:35:26
- #1
大家好,
由于主要方面目前没有提供任何评论或建议,我尝试了一下详细规划,比如这里的浴室设计。
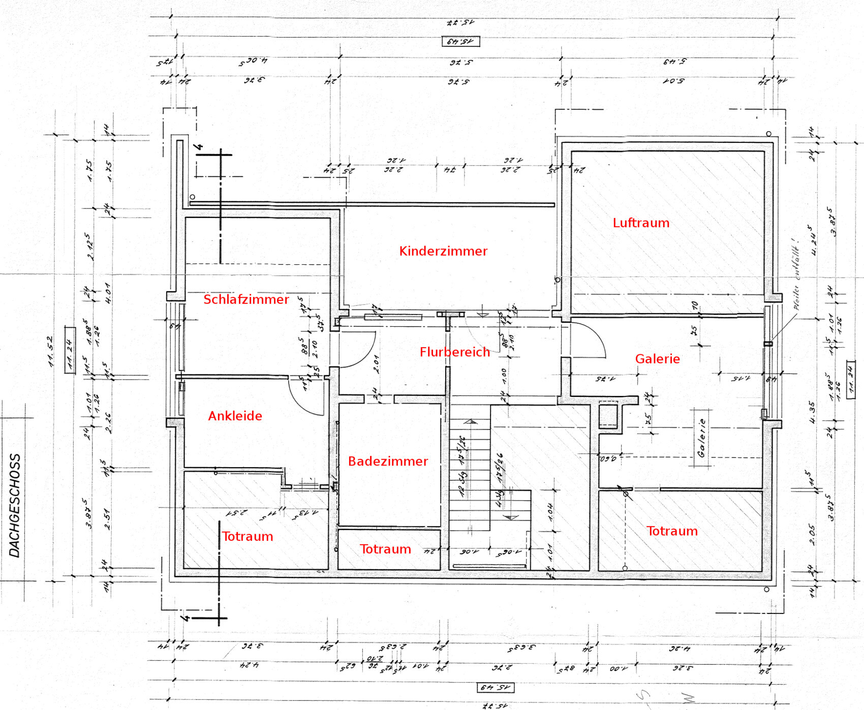
这是1972年的一栋现有建筑,目前正在进行翻新/改造。为了计划中的浴室,已经安装了一个天窗,以稍微扩大空间。附上带有计划浴室的平面图。
我附上了当前的规划,最重要的是平面图,因为在线工具中没有我们想要的确切设备。
我们之前把厕所和浴缸的位置调换过,但这样导致通往厕所的通道太狭窄。
这里有什么意见或改进建议吗?

由于主要方面目前没有提供任何评论或建议,我尝试了一下详细规划,比如这里的浴室设计。
这是1972年的一栋现有建筑,目前正在进行翻新/改造。为了计划中的浴室,已经安装了一个天窗,以稍微扩大空间。附上带有计划浴室的平面图。
我附上了当前的规划,最重要的是平面图,因为在线工具中没有我们想要的确切设备。
我们之前把厕所和浴缸的位置调换过,但这样导致通往厕所的通道太狭窄。
这里有什么意见或改进建议吗?