ᐅ Werkplanung Einfamilienhaus 180qm Flachdach mit Keller & Doppelgarage
Erstellt am: 17.12.17 18:53
I
ivenh0
Bebauungsplan/Einschränkungen
Größe des Grundstücks: 594m²
Hang: Südhang
Geschossflächenzahl: 0,4
Baufenster, Baulinie und -grenze: 12 x 22m
Randbebauung: 2,5m
Anzahl Stellplatz: 2 pro Wohneinheit
Dachform: Flachdach
Stilrichtung: modern
Ausrichtung: Süden
Maximale Höhen/Begrenzungen: Einfamilienhaus + 6,5m
Anforderungen der Bauherren
Stilrichtung, Dachform, Gebäudetyp: modern, Flachdach
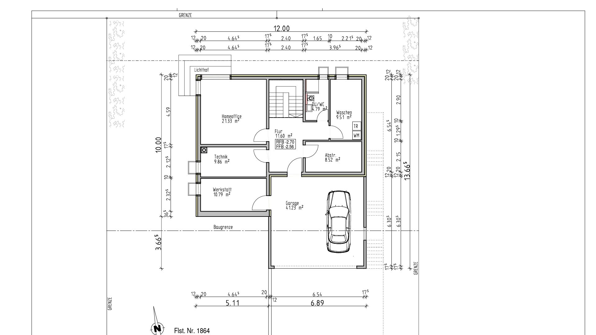
Keller, Geschosse: Keller mit Einliegerwohnung + 2 Geschosse
Anzahl der Personen, Alter: 2 (26m, 26w) + 2 geplante Kinder
Raumbedarf im EG, OG: EG(Büro, WZ/EZ/Küche, DU-WC, SK) OG(2 KZ, Büro, Schlafzimmer, Bad, Ankleide)
Büro: Familiennutzung oder Homeoffice? Frau ist Lehrerin, Ich 1x/Woche Homeoffice
Schlafgäste pro Jahr: 2-5
offene oder geschlossene Architektur: offen
konservativ oder moderne Bauweise: modern
offene Küche, Kochinsel: offene Küche mit Insel
Anzahl Essplätze: 6-10
Kamin: Ja
Musik/Stereowand: -
Balkon, Dachterrasse: -
Garage, Carport: Doppelgarage
Nutzgarten, Treibhaus: -
weitere Wünsche/Besonderheiten/Tagesablauf, gern auch Begründungen, warum dieses oder das nicht sein soll
Hausentwurf
Von wem stammt die Planung: Architekt eines Bauunternehmens
Was gefällt besonders? Warum? Seitliche Einfahrt Garage, Direkter Zugang von Garage zu Haus, Einliegerwohnung Konzept, offene Gestaltung EG, OG ist in unseren Augen perfekt, Galerie
Was gefällt nicht? Warum? Wohn-/Essbereich ist etwas zu groß (Frau hat Angst, dass es sich nicht gemütlich einrichten lässt), Position des Fensters in Schlafzimmer in Einliegerwohnung ist schwierig zu positionieren, (Zugang im Norden --> langer Zugangsweg für Gäste)
favorisierte Heiztechnik: Luft-Wasser-Wärmepumpe + Photovoltaik + Batteriespeicher
Wenn Ihr verzichten müsst, auf welche Details/Ausbauten
-könnt Ihr verzichten: Büro OG, paar m² im Wohn-/Essbereich
-könnt Ihr nicht verzichten: restliches Raumprogramm
Warum ist der Entwurf so geworden, wie er jetzt ist?
Raumprogramm wurde von uns vorgegeben. Des Weiteren ergibt sich einiges durch die Vielzahl der Anforderungen und dem Grundstück
Warum ist die Zeichnung in Sweet Home 3D erstellt?
Entwurf vom Architekt ist im Maßstab gezeichnet und nicht vermaßt, deshalb habe ich ihn in SH3D übertragen
Was ist die wichtigste/grundlegende Frage zum Grundriss in 130 Zeichen zusammengefasst?
Was haltet ihr vom Grundriss? Habt ihr eine Idee wie sich der große Wohn-/Essbereich etwas gemütlicher gestalten lässt?





Größe des Grundstücks: 594m²
Hang: Südhang
Geschossflächenzahl: 0,4
Baufenster, Baulinie und -grenze: 12 x 22m
Randbebauung: 2,5m
Anzahl Stellplatz: 2 pro Wohneinheit
Dachform: Flachdach
Stilrichtung: modern
Ausrichtung: Süden
Maximale Höhen/Begrenzungen: Einfamilienhaus + 6,5m
Anforderungen der Bauherren
Stilrichtung, Dachform, Gebäudetyp: modern, Flachdach
Keller, Geschosse: Keller mit Einliegerwohnung + 2 Geschosse
Anzahl der Personen, Alter: 2 (26m, 26w) + 2 geplante Kinder
Raumbedarf im EG, OG: EG(Büro, WZ/EZ/Küche, DU-WC, SK) OG(2 KZ, Büro, Schlafzimmer, Bad, Ankleide)
Büro: Familiennutzung oder Homeoffice? Frau ist Lehrerin, Ich 1x/Woche Homeoffice
Schlafgäste pro Jahr: 2-5
offene oder geschlossene Architektur: offen
konservativ oder moderne Bauweise: modern
offene Küche, Kochinsel: offene Küche mit Insel
Anzahl Essplätze: 6-10
Kamin: Ja
Musik/Stereowand: -
Balkon, Dachterrasse: -
Garage, Carport: Doppelgarage
Nutzgarten, Treibhaus: -
weitere Wünsche/Besonderheiten/Tagesablauf, gern auch Begründungen, warum dieses oder das nicht sein soll
Hausentwurf
Von wem stammt die Planung: Architekt eines Bauunternehmens
Was gefällt besonders? Warum? Seitliche Einfahrt Garage, Direkter Zugang von Garage zu Haus, Einliegerwohnung Konzept, offene Gestaltung EG, OG ist in unseren Augen perfekt, Galerie
Was gefällt nicht? Warum? Wohn-/Essbereich ist etwas zu groß (Frau hat Angst, dass es sich nicht gemütlich einrichten lässt), Position des Fensters in Schlafzimmer in Einliegerwohnung ist schwierig zu positionieren, (Zugang im Norden --> langer Zugangsweg für Gäste)
favorisierte Heiztechnik: Luft-Wasser-Wärmepumpe + Photovoltaik + Batteriespeicher
Wenn Ihr verzichten müsst, auf welche Details/Ausbauten
-könnt Ihr verzichten: Büro OG, paar m² im Wohn-/Essbereich
-könnt Ihr nicht verzichten: restliches Raumprogramm
Warum ist der Entwurf so geworden, wie er jetzt ist?
Raumprogramm wurde von uns vorgegeben. Des Weiteren ergibt sich einiges durch die Vielzahl der Anforderungen und dem Grundstück
Warum ist die Zeichnung in Sweet Home 3D erstellt?
Entwurf vom Architekt ist im Maßstab gezeichnet und nicht vermaßt, deshalb habe ich ihn in SH3D übertragen
Was ist die wichtigste/grundlegende Frage zum Grundriss in 130 Zeichen zusammengefasst?
Was haltet ihr vom Grundriss? Habt ihr eine Idee wie sich der große Wohn-/Essbereich etwas gemütlicher gestalten lässt?
ivenh0 schrieb:
Wir spielen gerade noch mit dem Gedanken ein Kinderbad im OG zu realisieren. D.h. das vorhandene Bad würde kleiner werden und dafür würde ein Kinderbad (Dusche, WC, Einzelwaschtisch) dazu kommen.
Mit wie viel Zusatzkosten müssten wir rechnen?Rechne doch einfach mal mit 8-10000...
Warum überhaupt noch ein Kinderbad im OG?
Im EG ist doch eine Dusche vorhanden. Wenn ihr nur 2 Kinder plant, sollte das doch reichen.
Ich würde das Geld eher in Holz-Aluminium Fenster stecken
Meine Schwägerin hat auch nur 1 Bad im OG, sowie eine Dusche im EG, mit 4 Kindern!
So wie es aussieht reicht das (noch).
Solange die Kinder klein sind, ist das denke ich kein Problem. Nur später wirds wahrscheinlich ein wenig problematisch.
Im EG ist doch eine Dusche vorhanden. Wenn ihr nur 2 Kinder plant, sollte das doch reichen.
Ich würde das Geld eher in Holz-Aluminium Fenster stecken
Meine Schwägerin hat auch nur 1 Bad im OG, sowie eine Dusche im EG, mit 4 Kindern!
So wie es aussieht reicht das (noch).
Solange die Kinder klein sind, ist das denke ich kein Problem. Nur später wirds wahrscheinlich ein wenig problematisch.
K
Karlstraße20.03.18 17:40ivenh0 schrieb:
Die Idee wurde zwischenzeitlich wieder verworfen - die letzten Änderungswünsche an den Plänen wurden versendet, so dass diese jetzt in die Pläne einfließen und wir hoffentlich nächste Woche den Bauantrag einreichen können :-]Kannst du noch mal deine finalen Pläne einstellen? Fand deine Planung super und würde sie gerne final sehen!
Karlstraße schrieb:
Fand deine Planung super und würde sie gerne final sehen!Nur so, oder suchst Du noch Anregungen für das eigene Bauprojekt ?https://www.instagram.com/11antgmxde/
https://www.linkedin.com/company/bauen-jetzt/
Ähnliche Themen