Hausbau - Ratgeber
Bauherrenhilfe
- Bauherrenhilfe vor Vertragsabschluss
-- Warum einen unabhängigen Baubetreuer?
-- Vertragsgrundlagen
-- Bausumme
-- Zahlungsplan zur Kostenkontrolle
-- Pflichten des Bauherren vor Vertragsabschluss
-- Unterlagen beim Hausbau vor Vertragsabschluss
- Bauherrenhilfe nach Vertragsabschluss
-- Bauantrag bei Behörden
-- Bau-Genehmigungsverfahren bei Baubehörden
-- Bauspezifische Versicherungen
-- Bauzeitenplan
-- Baubeginn - die Letzten Pflichten der Bauherrschaft
- Bauherrenhilfe während der Bauzeit
- Gewährleistungsansprüche
- Bauabnahme
Baufinanzierung
- Baufinanzierung - Allgemeine Fragen
- Kreditarten
- Kredit-Konditionen
- Bausparen
- Staatliche Förderungen
- Verkehrswert
- Haushaltsrechnung und Bonität
Hausbau Planung
- Haustypen
- Hausbau Vorbereitungsarbeiten
- Das Baugrundstück
- Baugrund beim Hausbau
- Baurecht
- Gebäudeschutz
- Erdarbeiten und Wasserhaltung
- Stützmauern
- Einfriedung
- Untergeschoss
- Kanalisation
- Tragende Elemente
- Nichttragende Innenwände
- Fundation / Fundament
- Deckenkonstruktionen
- Dächer
- Kaminanlagen
- Treppen Rampen Leitern
- Dachbeläge und Spengler
- Fenster
- Sonnen und Wetterschutz
- Aussenputze
- Einbauten, Küchen, Türen
- Bodenbeläge und Unterlagsböden
- Parkett
- Gips, Wand, Decke
Haustechnik und Energie
- Heiztechnik
- Lüftung und Klimatechnik
- Sanitärtechnik
- Elektrotechnik
- Erneuerbare Energie
Whirlpools / Jacuzzi
Hausbau Magazin
- Baufinanzierung trotz Krise?
- Das Blockhaus
- Moderne Dämmstoffe im Vergleich
- Erker Vor- und Nachteile
- Glasflächen beim Hausbau
- Günstig ein Haus Bauen
- Mediterraner Hausbaustil
- Mehrgenerationenhaus
- Moderne Architektur
- Gartengestaltung leicht gemacht
- Traditioneller Ziegelbau
- Villa als höchster Traum
- Im Eigenheim Ruhestand geniessen
- Altbau sanieren
- Kauf einer Holzgarage
- Immobilienmakler
- Arbeitshandschuhe für den Winter
- Zuhause verschönern
- Outdoor-Plissees
- Schlafzimmer planen
- Terrassenüberdachung
- Wohngebäudeversicherung
- Girokonto für Bauherren finden
- Hauseingang gestalten
- Zaunarten und Eigenschaften
- Der perfekte Grundriss
- Sparsamer heizen im Altbau
- Einfamilienhaus smart finanzieren
- Planung einer PV-Anlage
- Neues Haus
- Immobilienfinanzierung
- Installation einer Photovoltaikanlage
- Asbest erkennen und entfernen
- Gartenpflege im Frühling – worauf achten
- Sauna im Fokus - Wellness zuhause
- Erfolgreich vermieten
- Die perfekte Winterbekleidung
- Das Niedrigenergiehaus
- Der April und seine Stürme
- Architektonische Vielfalt
- Ökologisch und nachhaltig bauen
- Das perfekte Schlafzimmer
- Nachhaltige Energieversorgung
- Zukunftsorientiert bauen
- Nachhaltigkeit beim Hausbau
- Tiny Houses
- Wärmepumpen als nachhaltige Heizvariante
- Maßgeschneiderten Kleiderschrank
- Der richtige Baukredit
- Ratgeber für erfolgreichen Hausbau
- Haus als Altersvorsorge
Do-it-yourself Anleitungen
- Verlegeanleitung für Bodenbeläge und Parkett
- Bodenbeläge und Parkett reinigen und pflegen
- Malerarbeiten am Haus
- Garten Tipps
- Umzug und Reinigung

ᐅ Vergrößerung Bad im DG inkl. Schrägen

Erstellt am: 20.11.23 20:29
A
ancla99
Hallo zusammen,
Nachdem wir den Plan verworfen haben, aus einem Arbeitszimmer ein Bad zu bauen, steht nun fest, dass wir das vorhandene Bad im Dachgeschoss des Hauses vergrößern werden.
Wir wollen aus einem kleinen Duschbad unser neues Hauptbad machen.

Die Wand ist wie auf den Bildern zu sehen schon weg. Jetzt soll eine neue Trockenbauwand eingezogen werden.
Ziel ist ein Bad mit größerer und bodenebener Dusche, Toilette und großem waschtisch.
Eine erste Planung habe ich angehängt
In der Ecke hinten rechts sind die Frischwasserleitungen und im Kamin befindet sich auch das Abwasserrohr.

Die Duschwanne würden wir fliesen, und der Kasten am Ende der Dusche soll eine Art Fussbänkchen sein.

Uns fällt aktuell leider keine andere Raumaufteilung ein, die sinnig ist. Habt ihr vielleicht eine Idee?


Die Duschwanne würden wir fliesen, und der Kasten am Ende der Dusche soll eine Art Fussbänkchen sein.

Vielen Dank im Voraus für neuen Input!
Grundrissausschnitt: Zwei angrenzende Räume im roten Rechteck, mit handschriftlichen Maßen.

Dachgeschoss-Badezimmer mit WC, Waschbecken, Heizkörper, schrägem Dachfenster und Fliesen.

Unrenovierter Dachboden mit schräger Decke, Holzbalken, Fenster mit Spitzenvorhang und Heizkörper.

Grundriss eines Dachgeschoss-Apartments: Schlafzimmer mit Bett, Bad, Küche, Treppenhaus.

Kompaktes Badezimmer mit Waschbecken, Spiegel, Holztür, Toilette und Dusche.

Vogelperspektive eines kleinen Badezimmers mit Waschbecken, Toilette, Dusche und Badewanne.
A
ancla99
23.11.23 17:58
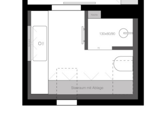
Ein Vorschlag, den wir noch erhalten haben, ist dieser

Grundriss eines kleinen Studios: Schlafbereich links, Nische rechts, Stauraum unten, Türöffnung.
Y
ypg
23.11.23 18:37
ancla99 schrieb:

Ich sehe nicht, dass du vorher etwas geschrieben hättest?
Ist ja egal, wer die Fragen stellt.
ypg schrieb:

Und wofür das Bad eingesetzt wird (Großfamilie oder Ehepaar, wieviel Kinder?)
Oder wäre diese Frage dann eher beantworte, wenn sie doppelt gestellt wäre?
H
hanghaus2023
25.11.23 08:44
Das WC geht kaum ohne Montageblock. Ansonsten wird das wohl funktionieren.
H
hanghaus2023
25.11.23 08:47
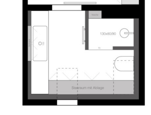
ancla99 schrieb:

Ein Vorschlag, den wir noch erhalten haben, ist dieser
Das funktioniert nicht wirklich. Die Kopffreiheit am WC sowie beim Eingang zur Dusche ist sehr eingeschränkt.

Der erste Vorschlag wird wohl funktionieren.
Das WC geht kaum ohne Montageblock.
A
ancla99
25.11.23 08:55
Danke für euer Feedback.
Zur Nutzung: das Bad wird hauptsächlich von 2 Erwachsenen genutzt werden, allerdings als hauptbad. Eine Etage tiefer gibt es ein weiteres kleines Bad für unser Kind und Gäste.

Wir sind uns unsicher ob es mit dem Abwasser mit der Toilette und dem Fenster so klappen kann, bzw ob wir eine Toilette direkt vor dem Fenster haben wollen (ja, man kann hier natürlich viel über Plissee oder ähnliches abdecken).

Bei dem Vorschlag mit Toilette neben Dusche wäre die Kopffreiheit stehend vor der Toilette eingeschränkt, die Schräge liegt hier ca bei 1,60m, der Eintritt in die Dusche ist nicht mehr betroffen.

Das alte Bad ist nun soweit abgerissen, dass wir uns beide Möglichkeiten einmal stumpf auf den Boden kleben werden, um ein besseres räumliches Gefühl zu bekommen, auch zum Thema Bewegungsfreiheit
H
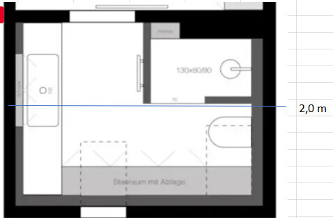
hanghaus2023
25.11.23 09:28
Ich habe mal die 2 m Linie eingezeichnet.

2D-Grundriss einer kompakten Hausaufteilung mit Lagerfläche


Gibt es einen Plan der genau bemasst ist? Die Abwasserleitung vom Wand WC ist wohl mMn das größte Problem. Daher geht vermutlich nur die erste Variante.

Ist eine Fußbodenheizung geplant?
toiletteduschemontageblockkopffreiheitfenster