Hallo zusammen,
möchte gerne unseren Dachboden für die Zukunft vorbereiten, d.h., es wird höchstwahrscheinlich dort ein Schlafzimmer (Kinderzimmer oder Schlafzimmer :-)) entstehen.
Verwendungsmöglichkeiten für uns (anfangs):
- Stauraum
- gemeinsamer Rückzugsort für die Kinder
- Gäste-Zimmer
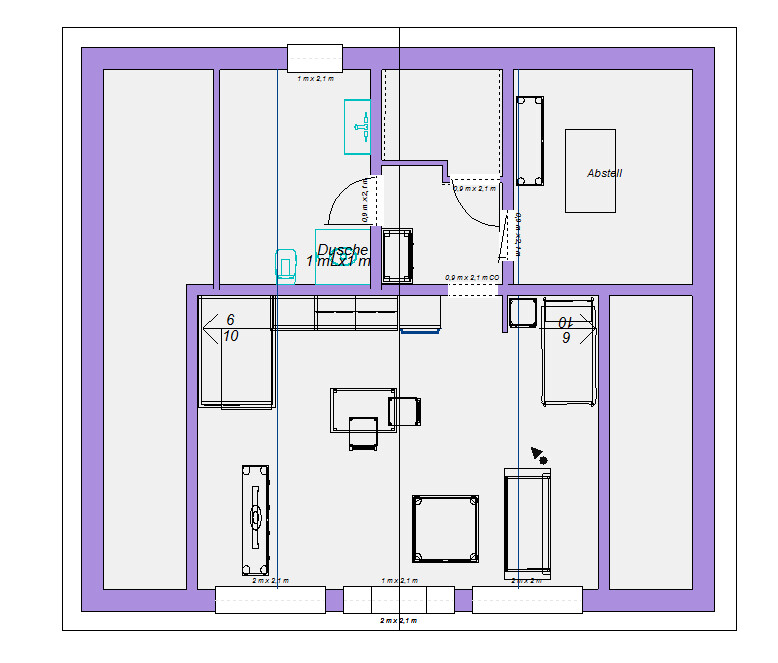
Die Dachneigung beträgt ca. 30°.
Frage:
Möchte gerne den Dachboden noch mehr Lich geben.
Neben dem Eingang (Westseite) ist ein kleines Bad geplant.
Wo würdet ihr zusätzlich noch Fenster planen und welche ?
Wünsche Euch allen schon mal ein schönes Wochenende !
Gruß

möchte gerne unseren Dachboden für die Zukunft vorbereiten, d.h., es wird höchstwahrscheinlich dort ein Schlafzimmer (Kinderzimmer oder Schlafzimmer :-)) entstehen.
Verwendungsmöglichkeiten für uns (anfangs):
- Stauraum
- gemeinsamer Rückzugsort für die Kinder
- Gäste-Zimmer
Die Dachneigung beträgt ca. 30°.
Frage:
Möchte gerne den Dachboden noch mehr Lich geben.
Neben dem Eingang (Westseite) ist ein kleines Bad geplant.
Wo würdet ihr zusätzlich noch Fenster planen und welche ?
Wünsche Euch allen schon mal ein schönes Wochenende !
Gruß
hanse987 schrieb:
Mal zu den Giebelfestern. Wenn der Raum im Süden mal mittig geteilt werden soll, dann ist das jetzige Fenster suboptimal. Evtl. auf der Nordseite noch ein zu zusätzliches Fenster in den Giebel.Verstehe.....aber wenn, dann würde ich momentan eher ein offenes Konzept vorziehen.
Meine Überlegung war, dass die Eingangs tür und Trennwand daneben aus Glas sein sollte, dann könnte man Licht vom Treppenhaus mitnehmen (weiss nicht ob das technisch Sinn macht :-)?)
Egberto schrieb:
Solche bodentiefen Fenster plane ich bei uns.Der Kniestock wird bei uns auf 0 sein bzw. gar nich erhöht, da laut des Architekten, das Objekt von Außen zu wuchtig sein würde..die lichte Raumhöhe fürs EG und OG ist auf 2,60m geplant.
Hatte schon bei einige Dachfenster gesehen, dass eine Mindestneigung von 35° gegeben sein muss, würde dann bei uns nicht klappen.
Momentan bin bei den Klapp-schwing-Fenster stehen geblieben.
Ähnliche Themen