Hallo zusammen,
wir haben im Juni ein Zweifamilienhaus von 1936 gekauft. Mehr dazu in diesem Thread zur Finanzierung. Wir sind immer noch sehr froh, gekauft zu haben. Im Dezember kommt unser Nachwuchs und spätestens, wenn K2 dann ein eigenes Zimmer zum Schlafen braucht, wird es hier in der Wohnung zu eng. Wir waren in der Zwischenzeit auch recht häufig vor Ort und sind super happy mit der Lage. Alles von Kita bis Gymnasium in fußläufiger Entfernung, Sportvereine en Masse ebenso, usw.
Seit dem Kauf ist relativ viel passiert. Unsere Finanzierung hat für den reinen Kauf auf Eigenkapital und Bankkredit gebaut, für die Sanierung wollten wir Kapital aus einem Immobilienverkauf holen. Der Verkauf ist inzwischen über die Bühne gegangen und hat etwas mehr eingebracht, als wir im optimistischen Fall geplant hatten (365.000€ vs 350.000€ optimistische Erwartung vs 300.000€ minimal Erwartung). Ich muss sagen, dass mir der Verkauf mehr Kopfschmerzen gemacht hat als der Kauf des neuen Hauses - obwohl es de fakto um deutlich weniger Geld ging. Vor allem die Nachrichten über rückgängige Preise überall haben uns schon etwas verunsichert und uns zweifeln lassen, ob der Käufer nicht doch abspringt. Wir hatten zwar mehrere Gebote und auch zwei im gleichen Bereich, aber der zweite hoch bietende Interessent hat auf die Absage sehr verschnupft reagiert. Dann hätten wir also neu inserieren müssen, was dann durch die seit Einigung gestiegenen Kosten in allen Lebensbereichen usw. für ein relativ altes Haus vermutlich zu weniger Erlös geführt hätte. Als der Notarvertrag unterschrieben war, haben wir erstmal gut durchgeatmet.
Jetzt geht es also los, wir haben bereits eine Architektin, mit der wir seit über 2 Jahren immer mal wieder Häuser angeschaut haben. Sie hat bisher alle Termine und Planungen umsonst gemacht und hat schon wirklich viel Zeit investiert. Wir waren schon mit Heizungsbauer, Elektriker und Fußboden-Menschen vor Ort. Alle haben die Substanz und Potenzial bisher gelobt, was schonmal sehr beruhigend ist.
Hier ist mal ein Bild im aktuellen Ist-Zustand von außen von der Gartenseite:

Das Haus wurde 1996 mit 8cm WDVS von außen gedämmt - ansonsten gab es leider keine großen energetischen Maßnahmen bisher - und hat aktuell laut Energieausweis einen Bedarf von ca 220 kwh/m2/a, was bei 187qm Wohnfläche 41.000 kwh bedeuten würde pro Jahr. Laut Gas-Abrechnungen wurden in 2020 (letztes bewohntes Jahr) allerdings "nur" 22.000kwh fällig, bei zwei Parteien, die dort jeweils alleine gewohnt haben. Das ist immer noch viel und wir wollen dort natürlich auch etwas moderneres draus machen. Es war jetzt allerdings während der Hitzewelle in den beiden Vollgeschossen eher kühler als bei uns in der schon recht kühlen Altbauwohnung, was für mich ein gutes Zeichen ist. Das Haus an sich hat zweischalige Massivwände.
Das bedeutet für uns:
- Dämmung oberste Geschossdecke: Der Spitzboden hat eine riesige Grundfläche und geht quasi über locker 80% des ausgebauten DGs. Daher haben wir uns dafür entschieden, hier erstmal kostengünstig statt des Daches den Spitzboden zu dämmen, da wir die Fläche dort oben auf absehbare Zeit nicht brauchen werden.
- Dämmung Kellerdecke
- Eliminierung einiger Wärmebrücken
- Komplett neue Fenster und Außentüren im ganzen Haus
Die Architektin meinte vor Hauskauf, dass wir damit sicher auf 150 oder weniger kwh/m2/a kommen werden und das weitere Optmierungen ggf nicht mehr wirtschaftlich wären. Es hat sich ja seitdem einiges an den Energiekosten getan...mal sehen, ob wir da nochmal an etwas anderes dran gehen (würdet ihr z.B. meinen, dass eine Fülldämmung zwischen die beiden Mauerreihen noch zusätzlich Sinn machen könnte? Oder verträgt sich das mit dem WDVS nicht?). Wie seht ihr das - realistische Einschätzung? Mir wäre es natürlich lieb, noch weiter runterzukommen, aber das Dach komplett neu zu machen, würde ich gerne vermeiden.
Dazu:
- Rohre und Leitungen im gesamten Haus austauschen
- Heizkörper neu
- Falls es Sinn macht / das Haus so vernünftig heizbar ist: Wärmepumpe
- Falls Wärmepumpe: Photovoltaikanlage (die im Bild linke Seite des Dachs ist direkt Süd gerichtet).
Soweit zum energetischen. Dann sollen dazu auch noch ein paar andere Arbeiten gemacht werden. Hier gibt es den aktuellen Grundriss, der im EG und OG fast gleich ist, allerdings ist in beiden Geschossen zwischen den beiden planrechten Zimmern ein schöner Durchgang mit zu erhaltender Schiebetür:

Und das DG:

Daraus soll grob skizziert folgendes werden:
EG:

OG:

Da beide Bäder eh neu "müssen" (Bilder von innen folgen später), verschieben wir sie nach vorne zur Straße. So haben wir dann unten Platz, um den Koch/Essbereich zu öffnen, und oben die Möglichkeit, das Bad etwas größer zu gestalten, als es aktuell ist. Wir wohnen gerade mit einem 3qm-Bad - das geht schon so zu dritt, aber komfortabel ist es dann doch nicht so richtig 😀
Ich arbeite fast 100% im HomeOffice, daher kommt das Arbeitszimmer ins EG. Das DG bleibt vom Grundriss wie es ist. Hier kommt dann noch das Arbeits/Bastelzimmer meiner Freundin hin, ein Gästezimmer und wir haben noch ein Zimmer übrig, über das noch verhandelt wird 🙂. Das schöne ist, dass wir im OG durch das steile Dach sogar noch höhere Decken (>2.60m) als in EG und OG (2.55m) haben und auch nur sehr wenig Schräge (Bilder folgen).
Im ganzen Haus sind alte Holzdielen unter teils mehreren Lagen Fußböden versteckt. Zum Glück in keinem Fall aufgeklebt, sondern überall nur aufgelegt, sodass wir mit dem Bodenmenschen schonmal überall drunter geschaut haben und der Zustand als gut empfunden wurde. Hier wird also nur aufgearbeitet! Das ist übrigens auch ein Grund, warum wir keine Fußbodenheizung installieren wollen - das zöge einen ganzen Rattenschwanz nach sich: der Boden wäre nicht mehr verwertbar (zu dicke Dielen, die wahrscheinlich auch kaputt gehen beim Ausbauen), die Türen würden nicht mehr passen (die wollen wir auch nur aufarbeiten/streichen), genau wie die Zargen, usw. Oben im Bad kommt allerdings wohl eine Fußbodenheizung rein. Die Innentreppe ist auch eine echt schöne alte Holztreppe, die unter Teppich versteckt wurde und wird ebenfalls "nur" aufgearbeitet wo nötig.
Erste Kostenschätzung der Architektin liegt bei 270.000€ für alle Maßnahmen (ohne Photovoltaik). Die drei Handwerker, die bereits da waren, haben die sie betreffende Kalkulation im Groben bestätigt. Nächste Woche kommen dann noch Statiker und Fensterbauer, wir sind gespannt 🙂
Aktuelle Sorgen:
- Kommen wir auf ein Energielevel, das eine Wärmepumpe einigermaßen wirtschaftlich zulässt (wir haben ja viel Dachfläche für Photovoltaik)?
- Passt der Rest der Kostenschätzung so?
- Welche Überraschungen warten noch auf uns?
- Wann wird es fertig? Angepeilt ist Frühsommer nächstes Jahr...
Wir freuen uns über euer Feedback!
wir haben im Juni ein Zweifamilienhaus von 1936 gekauft. Mehr dazu in diesem Thread zur Finanzierung. Wir sind immer noch sehr froh, gekauft zu haben. Im Dezember kommt unser Nachwuchs und spätestens, wenn K2 dann ein eigenes Zimmer zum Schlafen braucht, wird es hier in der Wohnung zu eng. Wir waren in der Zwischenzeit auch recht häufig vor Ort und sind super happy mit der Lage. Alles von Kita bis Gymnasium in fußläufiger Entfernung, Sportvereine en Masse ebenso, usw.
Seit dem Kauf ist relativ viel passiert. Unsere Finanzierung hat für den reinen Kauf auf Eigenkapital und Bankkredit gebaut, für die Sanierung wollten wir Kapital aus einem Immobilienverkauf holen. Der Verkauf ist inzwischen über die Bühne gegangen und hat etwas mehr eingebracht, als wir im optimistischen Fall geplant hatten (365.000€ vs 350.000€ optimistische Erwartung vs 300.000€ minimal Erwartung). Ich muss sagen, dass mir der Verkauf mehr Kopfschmerzen gemacht hat als der Kauf des neuen Hauses - obwohl es de fakto um deutlich weniger Geld ging. Vor allem die Nachrichten über rückgängige Preise überall haben uns schon etwas verunsichert und uns zweifeln lassen, ob der Käufer nicht doch abspringt. Wir hatten zwar mehrere Gebote und auch zwei im gleichen Bereich, aber der zweite hoch bietende Interessent hat auf die Absage sehr verschnupft reagiert. Dann hätten wir also neu inserieren müssen, was dann durch die seit Einigung gestiegenen Kosten in allen Lebensbereichen usw. für ein relativ altes Haus vermutlich zu weniger Erlös geführt hätte. Als der Notarvertrag unterschrieben war, haben wir erstmal gut durchgeatmet.
Jetzt geht es also los, wir haben bereits eine Architektin, mit der wir seit über 2 Jahren immer mal wieder Häuser angeschaut haben. Sie hat bisher alle Termine und Planungen umsonst gemacht und hat schon wirklich viel Zeit investiert. Wir waren schon mit Heizungsbauer, Elektriker und Fußboden-Menschen vor Ort. Alle haben die Substanz und Potenzial bisher gelobt, was schonmal sehr beruhigend ist.
Hier ist mal ein Bild im aktuellen Ist-Zustand von außen von der Gartenseite:
Das Haus wurde 1996 mit 8cm WDVS von außen gedämmt - ansonsten gab es leider keine großen energetischen Maßnahmen bisher - und hat aktuell laut Energieausweis einen Bedarf von ca 220 kwh/m2/a, was bei 187qm Wohnfläche 41.000 kwh bedeuten würde pro Jahr. Laut Gas-Abrechnungen wurden in 2020 (letztes bewohntes Jahr) allerdings "nur" 22.000kwh fällig, bei zwei Parteien, die dort jeweils alleine gewohnt haben. Das ist immer noch viel und wir wollen dort natürlich auch etwas moderneres draus machen. Es war jetzt allerdings während der Hitzewelle in den beiden Vollgeschossen eher kühler als bei uns in der schon recht kühlen Altbauwohnung, was für mich ein gutes Zeichen ist. Das Haus an sich hat zweischalige Massivwände.
Das bedeutet für uns:
- Dämmung oberste Geschossdecke: Der Spitzboden hat eine riesige Grundfläche und geht quasi über locker 80% des ausgebauten DGs. Daher haben wir uns dafür entschieden, hier erstmal kostengünstig statt des Daches den Spitzboden zu dämmen, da wir die Fläche dort oben auf absehbare Zeit nicht brauchen werden.
- Dämmung Kellerdecke
- Eliminierung einiger Wärmebrücken
- Komplett neue Fenster und Außentüren im ganzen Haus
Die Architektin meinte vor Hauskauf, dass wir damit sicher auf 150 oder weniger kwh/m2/a kommen werden und das weitere Optmierungen ggf nicht mehr wirtschaftlich wären. Es hat sich ja seitdem einiges an den Energiekosten getan...mal sehen, ob wir da nochmal an etwas anderes dran gehen (würdet ihr z.B. meinen, dass eine Fülldämmung zwischen die beiden Mauerreihen noch zusätzlich Sinn machen könnte? Oder verträgt sich das mit dem WDVS nicht?). Wie seht ihr das - realistische Einschätzung? Mir wäre es natürlich lieb, noch weiter runterzukommen, aber das Dach komplett neu zu machen, würde ich gerne vermeiden.
Dazu:
- Rohre und Leitungen im gesamten Haus austauschen
- Heizkörper neu
- Falls es Sinn macht / das Haus so vernünftig heizbar ist: Wärmepumpe
- Falls Wärmepumpe: Photovoltaikanlage (die im Bild linke Seite des Dachs ist direkt Süd gerichtet).
Soweit zum energetischen. Dann sollen dazu auch noch ein paar andere Arbeiten gemacht werden. Hier gibt es den aktuellen Grundriss, der im EG und OG fast gleich ist, allerdings ist in beiden Geschossen zwischen den beiden planrechten Zimmern ein schöner Durchgang mit zu erhaltender Schiebetür:
Und das DG:
Daraus soll grob skizziert folgendes werden:
EG:
OG:
Da beide Bäder eh neu "müssen" (Bilder von innen folgen später), verschieben wir sie nach vorne zur Straße. So haben wir dann unten Platz, um den Koch/Essbereich zu öffnen, und oben die Möglichkeit, das Bad etwas größer zu gestalten, als es aktuell ist. Wir wohnen gerade mit einem 3qm-Bad - das geht schon so zu dritt, aber komfortabel ist es dann doch nicht so richtig 😀
Ich arbeite fast 100% im HomeOffice, daher kommt das Arbeitszimmer ins EG. Das DG bleibt vom Grundriss wie es ist. Hier kommt dann noch das Arbeits/Bastelzimmer meiner Freundin hin, ein Gästezimmer und wir haben noch ein Zimmer übrig, über das noch verhandelt wird 🙂. Das schöne ist, dass wir im OG durch das steile Dach sogar noch höhere Decken (>2.60m) als in EG und OG (2.55m) haben und auch nur sehr wenig Schräge (Bilder folgen).
Im ganzen Haus sind alte Holzdielen unter teils mehreren Lagen Fußböden versteckt. Zum Glück in keinem Fall aufgeklebt, sondern überall nur aufgelegt, sodass wir mit dem Bodenmenschen schonmal überall drunter geschaut haben und der Zustand als gut empfunden wurde. Hier wird also nur aufgearbeitet! Das ist übrigens auch ein Grund, warum wir keine Fußbodenheizung installieren wollen - das zöge einen ganzen Rattenschwanz nach sich: der Boden wäre nicht mehr verwertbar (zu dicke Dielen, die wahrscheinlich auch kaputt gehen beim Ausbauen), die Türen würden nicht mehr passen (die wollen wir auch nur aufarbeiten/streichen), genau wie die Zargen, usw. Oben im Bad kommt allerdings wohl eine Fußbodenheizung rein. Die Innentreppe ist auch eine echt schöne alte Holztreppe, die unter Teppich versteckt wurde und wird ebenfalls "nur" aufgearbeitet wo nötig.
Erste Kostenschätzung der Architektin liegt bei 270.000€ für alle Maßnahmen (ohne Photovoltaik). Die drei Handwerker, die bereits da waren, haben die sie betreffende Kalkulation im Groben bestätigt. Nächste Woche kommen dann noch Statiker und Fensterbauer, wir sind gespannt 🙂
Aktuelle Sorgen:
- Kommen wir auf ein Energielevel, das eine Wärmepumpe einigermaßen wirtschaftlich zulässt (wir haben ja viel Dachfläche für Photovoltaik)?
- Passt der Rest der Kostenschätzung so?
- Welche Überraschungen warten noch auf uns?
- Wann wird es fertig? Angepeilt ist Frühsommer nächstes Jahr...
Wir freuen uns über euer Feedback!
Hier kommt mal wieder ein Update.
Erstmal war der Trockenbauer wie vereinbart da und hat unsere neuen Bäder gebaut, bzw deren Wände.

Auch die Wand zwischen den Kinderzimmer existiert jetzt:

Und im Keller ist größtenteils gedämmt - sorry, schlechte Bildquali. Es bleiben schnuckelige 183-185cm Raumhöhe. Aber ist ja nur als Lager gedacht. In einem Raum haben wir noch 2m.

Dann war der Heizungsbauer da und hat fast alle Rohre verlegt (und dabei nur ein Rohr falsch gesetzt. Die Architektin hat ihn das Schmutzwasserrohr durch mein Arbeitszimmer wieder ausbauen lassen, ich weiß nicht ob wir das verlangt hätten) sowie die Anschlüsse für die Heizkörper gebaut.
Letztere werden jetzt wegen größerer Dimension und zusätzlicher HK ca 50% teurer als im ersten Angebot - gut, dass wir da die Fördermittel höher als das Angebot gesetzt hatten.
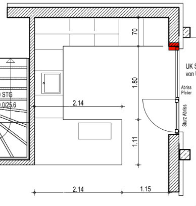
Der Elektriker ist im EG angekommen und wartet auf unsere Entscheidung bezüglich Küche. Wir haben dafür zwei Varianten:
Einmal als U:

Das erlaubt ziemlich optimale Arbeitswege, aber ist gefühlt weniger unser Fall (den Türanschlag können wir noch umlegen lassen, aber die Tür geht 180° auf) und hat zwei tote Ecken.
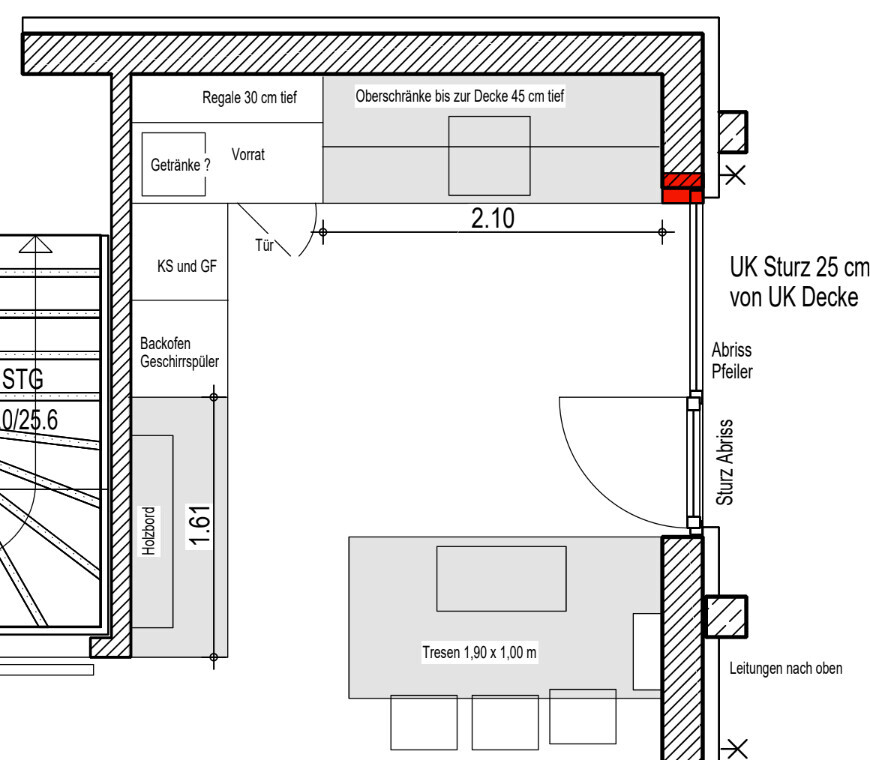
Alternativ diese Variante hier mit längeren Laufwegen (die wir aber aktuell in der Mietwohnung noch länger haben - Abstand kochfeld <-> Spüle ist noch größer - und uns nicht groß stören, sondern auch für Platz sorgen, wenn die Kids mit in der Küche sind). Grundstück würden wir hier noch an die Spülenseite verschieben, ist aktuell nur im Hochschrank planlinks weil wir mal überlegt hatten, den etwas höher zu setzen und dann Backofen drüber. Durchgang planunten ist 75cm.

Was meint ihr? Küche kommt vom Tischler, der alles selbst baut.
Und: Der Fensterbauer hat die Terrassentür eingebaut. Da fehlt mir aber gerade tatsächlich ein Foto von...reiche ich nach. Sieht aber top aus!
Erstmal war der Trockenbauer wie vereinbart da und hat unsere neuen Bäder gebaut, bzw deren Wände.
Auch die Wand zwischen den Kinderzimmer existiert jetzt:
Und im Keller ist größtenteils gedämmt - sorry, schlechte Bildquali. Es bleiben schnuckelige 183-185cm Raumhöhe. Aber ist ja nur als Lager gedacht. In einem Raum haben wir noch 2m.
Dann war der Heizungsbauer da und hat fast alle Rohre verlegt (und dabei nur ein Rohr falsch gesetzt. Die Architektin hat ihn das Schmutzwasserrohr durch mein Arbeitszimmer wieder ausbauen lassen, ich weiß nicht ob wir das verlangt hätten) sowie die Anschlüsse für die Heizkörper gebaut.
Letztere werden jetzt wegen größerer Dimension und zusätzlicher HK ca 50% teurer als im ersten Angebot - gut, dass wir da die Fördermittel höher als das Angebot gesetzt hatten.
Der Elektriker ist im EG angekommen und wartet auf unsere Entscheidung bezüglich Küche. Wir haben dafür zwei Varianten:
Einmal als U:
Das erlaubt ziemlich optimale Arbeitswege, aber ist gefühlt weniger unser Fall (den Türanschlag können wir noch umlegen lassen, aber die Tür geht 180° auf) und hat zwei tote Ecken.
Alternativ diese Variante hier mit längeren Laufwegen (die wir aber aktuell in der Mietwohnung noch länger haben - Abstand kochfeld <-> Spüle ist noch größer - und uns nicht groß stören, sondern auch für Platz sorgen, wenn die Kids mit in der Küche sind). Grundstück würden wir hier noch an die Spülenseite verschieben, ist aktuell nur im Hochschrank planlinks weil wir mal überlegt hatten, den etwas höher zu setzen und dann Backofen drüber. Durchgang planunten ist 75cm.
Was meint ihr? Küche kommt vom Tischler, der alles selbst baut.
Und: Der Fensterbauer hat die Terrassentür eingebaut. Da fehlt mir aber gerade tatsächlich ein Foto von...reiche ich nach. Sieht aber top aus!
Auch wenn die Resonanz eher sparsam ist, ist es mal wieder Zeit für ein Update 🙂
Seit Mai ist einiges passiert.
- Wir haben ein schickes neues Dach mit Photovoltaik. Eigentlich sollte das im Juli passieren, es wurde dann Oktober.
- Die Wärmepumpe ist da - Außengerät steht noch beim Nachbarn in der Garage, weil noch das Gerüst steht. Das soll nächste Woche weg, denn
- Der Maler ist seit geraumer Zeit aktiv. Er macht quasi alles, komplett neuer Innenputz, streichen, anflicken der neuen Fenster, Fassade außen streichenund Fußboden inkl Fußleisten.
Insgesamt sieht es jetzt schon wirklich gut aus, aber es geht einfach zäh vorwärts…es fehlt einfach an vielen Kleinigkeiten, die man vorher als Laie unterschätzt. Einzug ist für Januar geplant…
Wir sind inzwischen leider ca 30% der über Budget…allerdings zu einem guten Teil selbst dafür verantwortlich. So war im Budget ursprünglich keine Photovoltaik (12kwp, ca 20k vor Förderung), kein komplett neues Dach (Mehrkosten ca 25k), eine kleinere Terrasse (Mehrpreis 5k). Dazu dann eine Überraschung bei der Statik (15T€ Mehrkosten im Rohbau), die man niemandem anlasten kann, da die Grundrisse bzgl der Außenwände einfach falsch waren und erst beim Öffnen der Wände das zweischalige Mauerwerk entdeckt wurde.
Viele Gewerbe hatte die Architektin gut getroffen bei ihren Schätzungen, aber beim Maler hat sie komplett daneben gegriffen…da liegen wir einfach über 200% drüber (oder auch 30T€) und das ist ein Punkt, den ich ihr ankreide. Mit ihrer Erfahrung hätte sie da eigentlich wissen müssen, dass das veranschlagte Budget nicht reicht, um die Sauerei von Elektriker und Sanitär zu beheben. Es waren nur 2000€ für Putzreparatur innen und 12000€ für Streichen angesetzt. Genauso der Trockenbau für Verkleidungen von neuen Rohren, Stahlträgern usw, da sind wir beim vierfachen der veranschlagten 3000€.
Sie hatte zwar klar gesagt, dass man mit 15% Mehrkosten planen sollte, aber da hätten wir gedacht, dass die für Überraschungen wie die Sache mit der Statik eingeplant sind. Davon hatten wir zum Glück sonst keine…
Insgesamt bringt uns das jetzt nicht in Schwierigkeiten, da wir zum Glück genügend Reserven haben, aber es schlägt schon auf die Stimmung.
Abgesehen davon macht die Frau aber weiterhin gute Arbeit, ist teilweise mehrfach in der Woche auf der Baustelle, macht einen guten Job in der Bauleitung und auch zu unmöglichen Zeiten erreichbar und aktiv. Im Vergleich zudem, was wir von Freunden oder Bekannten zu ihren Architekten hören, haben wir da einen guten Griff gemacht.
Fotos kommen dann, wenn nächste Woche das Gerüst weg ist 🙂
Seit Mai ist einiges passiert.
- Wir haben ein schickes neues Dach mit Photovoltaik. Eigentlich sollte das im Juli passieren, es wurde dann Oktober.
- Die Wärmepumpe ist da - Außengerät steht noch beim Nachbarn in der Garage, weil noch das Gerüst steht. Das soll nächste Woche weg, denn
- Der Maler ist seit geraumer Zeit aktiv. Er macht quasi alles, komplett neuer Innenputz, streichen, anflicken der neuen Fenster, Fassade außen streichenund Fußboden inkl Fußleisten.
Insgesamt sieht es jetzt schon wirklich gut aus, aber es geht einfach zäh vorwärts…es fehlt einfach an vielen Kleinigkeiten, die man vorher als Laie unterschätzt. Einzug ist für Januar geplant…
Wir sind inzwischen leider ca 30% der über Budget…allerdings zu einem guten Teil selbst dafür verantwortlich. So war im Budget ursprünglich keine Photovoltaik (12kwp, ca 20k vor Förderung), kein komplett neues Dach (Mehrkosten ca 25k), eine kleinere Terrasse (Mehrpreis 5k). Dazu dann eine Überraschung bei der Statik (15T€ Mehrkosten im Rohbau), die man niemandem anlasten kann, da die Grundrisse bzgl der Außenwände einfach falsch waren und erst beim Öffnen der Wände das zweischalige Mauerwerk entdeckt wurde.
Viele Gewerbe hatte die Architektin gut getroffen bei ihren Schätzungen, aber beim Maler hat sie komplett daneben gegriffen…da liegen wir einfach über 200% drüber (oder auch 30T€) und das ist ein Punkt, den ich ihr ankreide. Mit ihrer Erfahrung hätte sie da eigentlich wissen müssen, dass das veranschlagte Budget nicht reicht, um die Sauerei von Elektriker und Sanitär zu beheben. Es waren nur 2000€ für Putzreparatur innen und 12000€ für Streichen angesetzt. Genauso der Trockenbau für Verkleidungen von neuen Rohren, Stahlträgern usw, da sind wir beim vierfachen der veranschlagten 3000€.
Sie hatte zwar klar gesagt, dass man mit 15% Mehrkosten planen sollte, aber da hätten wir gedacht, dass die für Überraschungen wie die Sache mit der Statik eingeplant sind. Davon hatten wir zum Glück sonst keine…
Insgesamt bringt uns das jetzt nicht in Schwierigkeiten, da wir zum Glück genügend Reserven haben, aber es schlägt schon auf die Stimmung.
Abgesehen davon macht die Frau aber weiterhin gute Arbeit, ist teilweise mehrfach in der Woche auf der Baustelle, macht einen guten Job in der Bauleitung und auch zu unmöglichen Zeiten erreichbar und aktiv. Im Vergleich zudem, was wir von Freunden oder Bekannten zu ihren Architekten hören, haben wir da einen guten Griff gemacht.
Fotos kommen dann, wenn nächste Woche das Gerüst weg ist 🙂
K
Kiefernadel04.11.23 11:50Hallo Leschaf,
Danke für deine Updates. Ich lese sie immer sehr gerne und finde euren Fortschritt interessant .
Danke für deine Updates. Ich lese sie immer sehr gerne und finde euren Fortschritt interessant .
leschaf schrieb:
Dazu dann eine Überraschung bei der Statik (15T€ Mehrkosten im Rohbau), die man niemandem anlasten kann, da die Grundrisse bzgl der Außenwände einfach falsch waren und erst beim Öffnen der Wände das zweischalige Mauerwerk entdeckt wurde.Das ist ein bißchen aufwendig, aber durchaus vorab klärbar.leschaf schrieb:
Viele Gewerbe hatte die Architektin gut getroffen bei ihren Schätzungen, aber beim Maler hat sie komplett daneben gegriffen…da liegen wir einfach über 200% drüber (oder auch 30T€) und das ist ein Punkt, den ich ihr ankreide. Mit ihrer Erfahrung hätte sie da eigentlich wissen müssen, dass das veranschlagte Budget nicht reicht, um die Sauerei von Elektriker und Sanitär zu beheben. Es waren nur 2000€ für Putzreparatur innen und 12000€ für Streichen angesetzt. Genauso der Trockenbau für Verkleidungen von neuen Rohren, Stahlträgern usw, da sind wir beim vierfachen der veranschlagten 3000€.Das riecht nach der typischen Verschätzung von Architekten, die nicht altsubstanzspezialisiert sind. Was bedeutet eigentlich "Sauerei von Elektriker und Sanitär": waren das Akkordbarbaren und/oder ist hier mangelhaft detailgeplant worden ? - Sauereibehebungskosten hätte ich den Herrschaften von ihren Rechnungen abgezogen. Nennt sich Regiearbeiten.https://www.instagram.com/11antgmxde/
https://www.linkedin.com/company/bauen-jetzt/
11ant schrieb:
Das ist ein bißchen aufwendig, aber durchaus vorab klärbar.
Das riecht nach der typischen Verschätzung von Architekten, die nicht altsubstanzspezialisiert sind. Was bedeutet eigentlich "Sauerei von Elektriker und Sanitär": waren das Akkordbarbaren und/oder ist hier mangelhaft detailgeplant worden ? - Sauereibehebungskosten hätte ich den Herrschaften von ihren Rechnungen abgezogen. Nennt sich Regiearbeiten.Mit dem ersten Punkt hast du wohl Recht.
Bzgl Sauerei: mit dem Elektriker sind wir bisher sehr zufrieden. Heizungsbauer solala, der hat am 1-2 Stellen schon unüberlegte Sachen gemacht. Aber mir ging es eher darum, dass durch die Erschütterungen beim Wände aufstemmen einfach viel Lehmunterputz abgefallen ist bzw danach locker war und weg musste. Wir haben für Ausbesserung und Vorbereitung des Oberputzes über 100 Stunden in Stundenlohn bezahlt. Die Architektin ist eigentlich sehr Altbau-erfahren, deswegen haben wir sie ja auch engagiert. Wir haben vorher auch mehrere ihrer Sanierungen besichtigen können, sowohl sie als auch die jeweiligen Bauherren waren da sehr offen. Aber ich verstehe halt nicht, wie man die Malerarbeiten dann so unterschätzen kann. Um den Preis zu treffen hätten wir im Prinzip nur Schlitze Spachteln und dann streichen dürfen 😀
leschaf schrieb:
Aber mir ging es eher darum, dass durch die Erschütterungen beim Wände aufstemmen einfach viel Lehmunterputz abgefallen ist bzw danach locker war und weg musste. Wir haben für Ausbesserung und Vorbereitung des Oberputzes über 100 Stunden in Stundenlohn bezahlt. Die Architektin ist eigentlich sehr Altbau-erfahren, deswegen haben wir sie ja auch engagiert. Wir haben vorher auch mehrere ihrer Sanierungen besichtigen können, sowohl sie als auch die jeweiligen Bauherren waren da sehr offen. Aber ich verstehe halt nicht, wie man die Malerarbeiten dann so unterschätzen kann.Ich verstehe es leider mit dem Ergebnis von Zweifeln an ihrer Altbauerfahrung. Das meinte ich damit, daß ich für Sanierungen keine Neubauarchitekten zu nehmen empfehle: die lassen sich gerne zu dem Mißverständnis hinreißen, im Bestand brauche man keine Leistungsphase 1 mehr - nein!, die sieht da nur anders aus. Und auch die Leistungsphase 5 bis 7 sind auch hier extrem budgetrelevant.https://www.instagram.com/11antgmxde/
https://www.linkedin.com/company/bauen-jetzt/
Ähnliche Themen