ᐅ Planung Kontrollierte-Wohnraumlüftung Einfamilienhaus Hilfe - Feedback gesucht
Erstellt am: 18.04.16 18:58
D
desbo84Liebe Forummitglieder,
ich habe euer super Forum entdeckt und würde mich sehr über eure Hilfe/Feedback zu meiner Kontrollierte-Wohnraumlüftung freuen.
Ich bin Dennis 31 Jahre alt und aus Bremen.
Zur Zeit bauen meine Frau und ich ein Einfamilienhaus mit. ca. 150qm Größe.
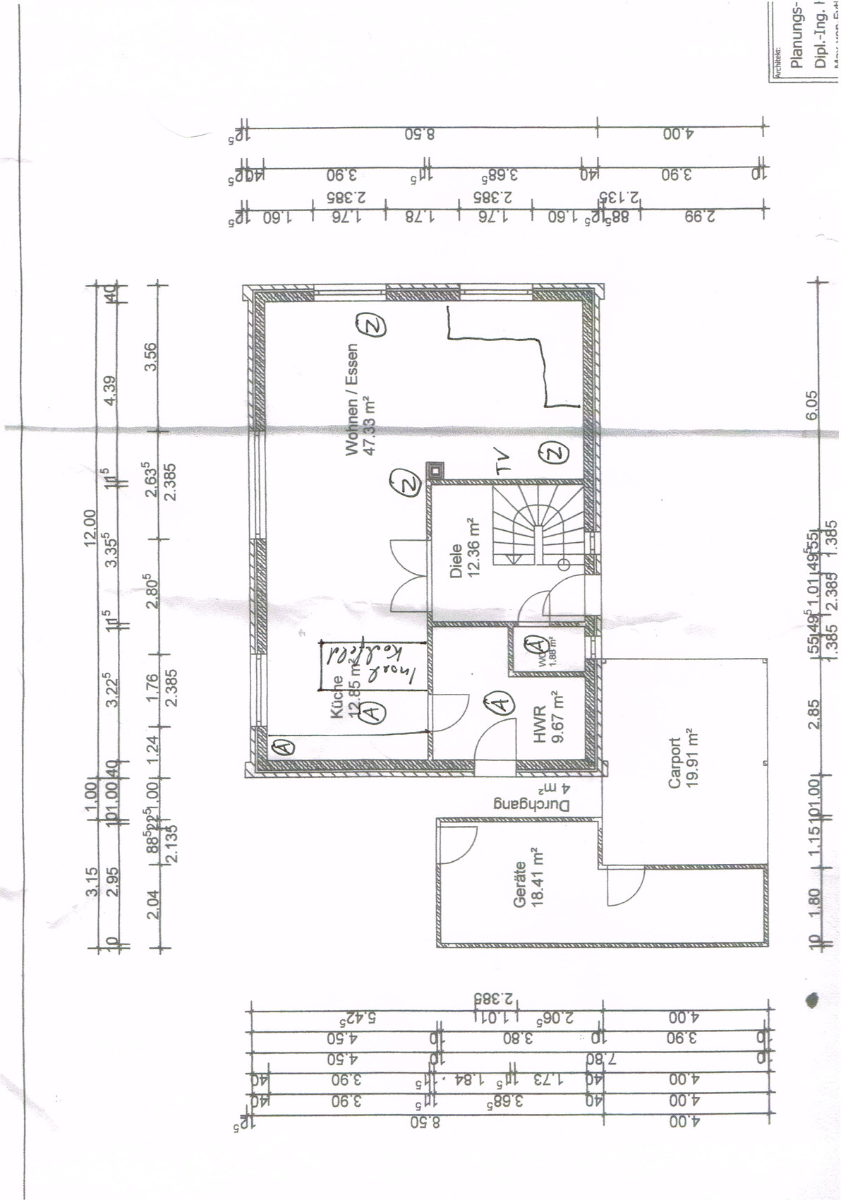
Hier planen wir eine zentrale Kontrollierte-Wohnraumlüftung mit Wärmerückgewinnung.
Unser Elektriker hatte hierzu das beste Angebot abgegeben. Allerdings hatte ich mich zu diesem Zeitpunkt schon so gut mit dem Thema Kontrollierte-Wohnraumlüftung auseinander gesetzt, dass ich direkt Änderungswünsche hatte.
Angeboten wurde eine Helios EC 270.
Die Kontrollierte-Wohnraumlüftung wird bei uns über unserem Schlafzimmer im Dachboden installiert.
Easyplan gibt eine Nennleistung für unser Haus von 159 an.
Für den Schallschutz hatte ich gelesen, ist es besser eine größer dimensionierte Anlage zu wählen. Deshalb würde ich gerne die EC 300 bzw. 500 nehmen.
Auch zum Thema Schallschutz: Ich habe alle Ventile die mit 2 Rohren geplant waren zu jeweils einem Ventil mit einem Rohr umgeplant. Also lieber ein extra Rohr geplant.
Da die Leitungen von der Anlage zum Schlafzimmer sehr kurz sind, ist es doch sinnvoll hier eine Schlaufe zu legen oder?Laut Helios sollten die Rohre mind. 5M lang sein.
Im Anhang meine Planung und die Berechnung von Helios.
Über Feedback würde ich mich sehr freuen.
LG
Dennis



ich habe euer super Forum entdeckt und würde mich sehr über eure Hilfe/Feedback zu meiner Kontrollierte-Wohnraumlüftung freuen.
Ich bin Dennis 31 Jahre alt und aus Bremen.
Zur Zeit bauen meine Frau und ich ein Einfamilienhaus mit. ca. 150qm Größe.
Hier planen wir eine zentrale Kontrollierte-Wohnraumlüftung mit Wärmerückgewinnung.
Unser Elektriker hatte hierzu das beste Angebot abgegeben. Allerdings hatte ich mich zu diesem Zeitpunkt schon so gut mit dem Thema Kontrollierte-Wohnraumlüftung auseinander gesetzt, dass ich direkt Änderungswünsche hatte.
Angeboten wurde eine Helios EC 270.
Die Kontrollierte-Wohnraumlüftung wird bei uns über unserem Schlafzimmer im Dachboden installiert.
Easyplan gibt eine Nennleistung für unser Haus von 159 an.
Für den Schallschutz hatte ich gelesen, ist es besser eine größer dimensionierte Anlage zu wählen. Deshalb würde ich gerne die EC 300 bzw. 500 nehmen.
Auch zum Thema Schallschutz: Ich habe alle Ventile die mit 2 Rohren geplant waren zu jeweils einem Ventil mit einem Rohr umgeplant. Also lieber ein extra Rohr geplant.
Da die Leitungen von der Anlage zum Schlafzimmer sehr kurz sind, ist es doch sinnvoll hier eine Schlaufe zu legen oder?Laut Helios sollten die Rohre mind. 5M lang sein.
Im Anhang meine Planung und die Berechnung von Helios.
Über Feedback würde ich mich sehr freuen.
LG
Dennis
N
nordanney18.04.16 21:29Ein Elektriker verbaut eine Kontrollierte-Wohnraumlüftung? Sanitär macht dann wahrscheinlich der Maler und der Rohbau der Zimmermann .
Die Anlage sollte ein Fachmann planen, dann musst Dich auch nicht darum kümmern, ob alles richtig ist. Nicht nur auf den Preis schauen - das Ergebnis siehst Du jetzt schon, DU planst gerade das um, was Dein Elektriker Dir anbietet...
Die Anlage sollte ein Fachmann planen, dann musst Dich auch nicht darum kümmern, ob alles richtig ist. Nicht nur auf den Preis schauen - das Ergebnis siehst Du jetzt schon, DU planst gerade das um, was Dein Elektriker Dir anbietet...
Absolut richtig, allerdings hatte ich bei meiner Suche keinen Fachmann im Raum Oldenburg Bremen gefunden. Vom Gefühl bietet heute ja jeder eine Kontrollierte-Wohnraumlüftung an. Daher nehme ich jetzt das beste Angebot aus Preis Leistung und verbunden mit eigenen Gedanken/Recherche.
desbo84 schrieb:
Auch zum Thema Schallschutz: Ich habe alle Ventile die mit 2 Rohren geplant waren zu jeweils einem Ventil mit einem Rohr umgeplant. Also lieber ein extra Rohr geplant.
Ich meinte lieber ein extra Ventil geplant...
B
Bieber081518.04.16 22:34Die Kontrollierte-Wohnraumlüftung wurde offenbar nach DIN ausgelegt. Frag doch mal, ob auch eine Auslegung unter erhöhten Anforderungen an den Schallschutz möglich ist. Da sollte auch die DIN etwas kennen. Alternativ: Nach Schweizer Norm SIA 382/1, meines Wissens nach auch besser im Schallschutz.
S
Sebastian7919.04.16 16:29Du überschätzt die Geräusche - wir haben im Schlafzimmer auch zwei Schläuche an einem Ventil - hören tut man da auch bei Stille nichts.
Im Wohnzimmer erst recht nicht...
Im Wohnzimmer erst recht nicht...
Ähnliche Themen