Hallo,
ich plane eine IKEA Metod Küche, möchte dazu aber keine Ikea Geräte.
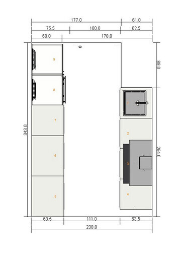
Bilder der Planung befinden sich im Anhang.
Das Fenster und die Heizung befinden sich gegenüber der Tür und beeinflussen die Planung nicht.
Der Anschluss für Spüle und Geschirrspüler befinden sich in der Ecke, in der auch das Spülbecken geplant ist.
Damit ist neben dem Spülenschrank ein Schrank (Platz) für den Geschirrspüler geplant.
Habe mich schon mal bei Neff umgeschaut, aber mich noch nicht auf einen Geschirrspüler festgelegt. Es sollte ein vollintegriertes Gerät sein, dass zudem leise ist und A oder A hat.
Vorschläge? Preis bis Max. 500.-
Außerdem liegt auf dieser Seite (rechts) der Küche der Starkstromanschluss.
Auf der rechten Seite habe ich 4 60er Schränke geplant (1 "Schrank" ist der Geschirrspülerplatz) um den Platz möglichst effektiv zu nutzen.
Ich würde gerne ein 80er Induktionsfeld von Neff verwenden.
Da die Schränke nur 60cm breit sind, stellt sich aber die Frage, ob ein überlappender Einbau möglich ist, zumal der Schrank links neben dem Induktionsfeld für den Geschirrspüler gedacht ist. Zudem verstehe ich die erste Zeichnung (in oben stehendem Link) nicht. Kann mir jemand diesen Luftspalt erklären?
Auf der linken Seite soll in den ersten Hochschrank (in der Ecke) ein Einbaukühlschrank.
Hier habe ich mir noch keinen ausgesucht und bin für Vorschläge offen.
Daneben dann ein Hochschrank mit Backofen.
Die Hochschränke sind 208cm hoch. Dann folgen ein 60er und zwei 80er Schubladenschränke.
Alternativ könnte ich das Induktionsfeld auch auf die linke Seite setzen (in den mittigen 80er Schrank), dazu müsste ich dann aber den Starkstromanschluss verlängern.
Das Budget liegt bei ca. 5000.-Euro und lt. Planung sollte das inkl. Geräte auch passen.
Viel Glück
Christian
Hier noch Bilder der geplanten Küche:





ich plane eine IKEA Metod Küche, möchte dazu aber keine Ikea Geräte.
Bilder der Planung befinden sich im Anhang.
Das Fenster und die Heizung befinden sich gegenüber der Tür und beeinflussen die Planung nicht.
Der Anschluss für Spüle und Geschirrspüler befinden sich in der Ecke, in der auch das Spülbecken geplant ist.
Damit ist neben dem Spülenschrank ein Schrank (Platz) für den Geschirrspüler geplant.
Habe mich schon mal bei Neff umgeschaut, aber mich noch nicht auf einen Geschirrspüler festgelegt. Es sollte ein vollintegriertes Gerät sein, dass zudem leise ist und A oder A hat.
Vorschläge? Preis bis Max. 500.-
Außerdem liegt auf dieser Seite (rechts) der Küche der Starkstromanschluss.
Auf der rechten Seite habe ich 4 60er Schränke geplant (1 "Schrank" ist der Geschirrspülerplatz) um den Platz möglichst effektiv zu nutzen.
Ich würde gerne ein 80er Induktionsfeld von Neff verwenden.
Da die Schränke nur 60cm breit sind, stellt sich aber die Frage, ob ein überlappender Einbau möglich ist, zumal der Schrank links neben dem Induktionsfeld für den Geschirrspüler gedacht ist. Zudem verstehe ich die erste Zeichnung (in oben stehendem Link) nicht. Kann mir jemand diesen Luftspalt erklären?
Auf der linken Seite soll in den ersten Hochschrank (in der Ecke) ein Einbaukühlschrank.
Hier habe ich mir noch keinen ausgesucht und bin für Vorschläge offen.
Daneben dann ein Hochschrank mit Backofen.
Die Hochschränke sind 208cm hoch. Dann folgen ein 60er und zwei 80er Schubladenschränke.
Alternativ könnte ich das Induktionsfeld auch auf die linke Seite setzen (in den mittigen 80er Schrank), dazu müsste ich dann aber den Starkstromanschluss verlängern.
Das Budget liegt bei ca. 5000.-Euro und lt. Planung sollte das inkl. Geräte auch passen.
Viel Glück
Christian
Hier noch Bilder der geplanten Küche:
I
IKEA-Experte09.11.14 12:13Ich habe ein Spülbecken an der Wand, da es in der sehr kleinen Küche nicht anders ging, aber es ist beim Spülen sehr unpraktisch. Zu beiden Seiten sollte etwas Bewegungsfreiheit da sein.
Mit dem vorgegeben Preis, würde ich den Siemens SX76P030EU nehmen, Der hat ein Varioscharnier, so dass die 80 cm hohen Fronten direkt montiert werden können ohne spezielle Bastellösungen oder störanfällige Zusatzbeschläge.
SX878D04PE wäre auch schön. Ob es baugleiche Modelle vom Bosch und Neff gibt musst du recherchieren. Manchmal bekommt man die Geräte unter der einen Marke günstiger, manchmal unter der anderen.
Mehr später.
Mit dem vorgegeben Preis, würde ich den Siemens SX76P030EU nehmen, Der hat ein Varioscharnier, so dass die 80 cm hohen Fronten direkt montiert werden können ohne spezielle Bastellösungen oder störanfällige Zusatzbeschläge.
SX878D04PE wäre auch schön. Ob es baugleiche Modelle vom Bosch und Neff gibt musst du recherchieren. Manchmal bekommt man die Geräte unter der einen Marke günstiger, manchmal unter der anderen.
Mehr später.
I
IKEA-Experte10.11.14 15:49Hallo, der Einbau des Backofens sollte kein Problem sein. Der Vorteil der versenkbaren Backofentür erschließt sich mir nicht, ich sehe nur den Nachteil eines kleineren Backraumes
Bei der Auswahl des Kühlschrankes kommt es zuerst auf deine Bedürfnisse an. Wie viele Personen werden versorgt? Soll es einen Kühl-Gefrierkombination sein oder nur ein Kühlschrank. Frierst du viel ein oder ist es nie mehr als zwei Pizzen und eine Packung Eis? Gibt es einen großen Wocheneinkauf oder geht das meiste Essen vom Supermarkt in den Mund?
Das Kochfeld konnte über dem Geschirrspüler problematisch sein und von den Wangen der Unterschränke muss wahrscheinlich etwas abgefräst werden. Sieh dir die Einbauanleitung zum Kochfeld genau an.
Das Kochfeld braucht eine ausreichende Luftzufuhr. Dafür sind die 2 cm eingezeichnet. In der Regel wird das durch den Ausschnitt im Boden des Unterschrankes für ein Kochfeld gewährleistet. Das Kochfeld atmet dann durch den Schrank.
Bei der Auswahl des Kühlschrankes kommt es zuerst auf deine Bedürfnisse an. Wie viele Personen werden versorgt? Soll es einen Kühl-Gefrierkombination sein oder nur ein Kühlschrank. Frierst du viel ein oder ist es nie mehr als zwei Pizzen und eine Packung Eis? Gibt es einen großen Wocheneinkauf oder geht das meiste Essen vom Supermarkt in den Mund?
Das Kochfeld konnte über dem Geschirrspüler problematisch sein und von den Wangen der Unterschränke muss wahrscheinlich etwas abgefräst werden. Sieh dir die Einbauanleitung zum Kochfeld genau an.
Das Kochfeld braucht eine ausreichende Luftzufuhr. Dafür sind die 2 cm eingezeichnet. In der Regel wird das durch den Ausschnitt im Boden des Unterschrankes für ein Kochfeld gewährleistet. Das Kochfeld atmet dann durch den Schrank.
J
just_me_255503.01.15 13:27Mit dem vorgegeben Preis, würde ich den Siemens SX76P030EU nehmen, Der hat ein Varioscharnier, so dass die 80 cm hohen Fronten direkt montiert werden können ohne spezielle Bastellösungen oder störanfällige Zusatzbeschläge.
SX878D04PE wäre auch schön. Ob es baugleiche Modelle vom Bosch und Neff gibt musst du recherchieren. Manchmal bekommt man die Geräte unter der einen Marke günstiger, manchmal unter der anderen.Ich hänge mich mal hier mit ran.Wir wollen ebenfalls die Metod mit einem anderen Geschirrspüler montieren.
Das heißt wir benötigen einen normalen Unterbauschrank 60 breit mit der 80cm Blende und können die Siemens SX76P030EU ohne Bastelarbeiten montieren? Ist das Varioscharnier automatisch beim Kauf des Geschirrspüler dabei oder muss man das extra kaufen?
J
just_me_255506.01.15 12:10Hat das mit der Neff Spülmaschine ohne Bastelarbeiten geklappt mit so einem Varioscharnier?
Ähnliche Themen