Ich bin am gestalten des Bades und irgendwie kommt mir nicht die zündende Idee. Ursprünglich dachte ich an eine T-Lösung, aber habe das nicht passend hinbekommen und da hatte ich das Gefühl, es würde auch nicht vom Licht her passen. Daher kam ich nun auf einen Vorschlag. Die Wand vorne habe ich mal mit 1,10 m geplant. Ich dachte an einen Sichtschutz, aber ob das wirklich so klappt, wie ich mir vorstelle, da bin ich mir nicht so sicher 😉
Wichtig ist uns eine Dusche mit 80x120m und ein Doppelwaschbecken, sowie ein Elektroheizgerät für Handtücher. Die Badewanne kann für eine Person sein. Vielleicht wäre es schön, wenn sie außen gefliest wäre.
Fliesen möchten wir in anthrazitgrau und weiß (vielleicht leicht ins beige rein).
Habt ihr evtl. noch eine zündende Idee, wie man die verschiedenen Sanitäranlagen usw verteilen kann?
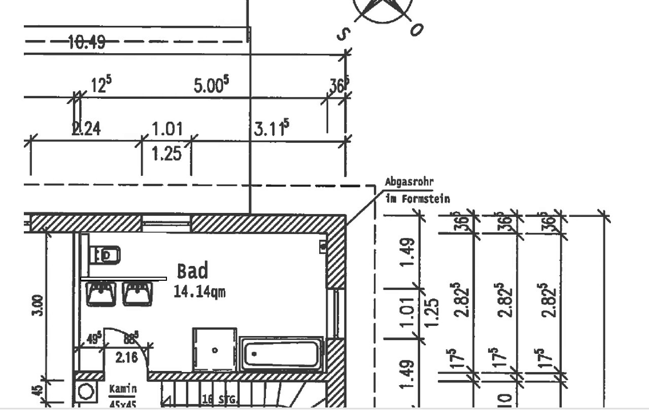
Das Bad ist 5m x 2,82m. Bitte nicht wundern wegen qm. Auf dem Bild das kommt von meiner Planung und kam mit Sweat Home 3D nicht ganz auf die Maße im OG.



Wichtig ist uns eine Dusche mit 80x120m und ein Doppelwaschbecken, sowie ein Elektroheizgerät für Handtücher. Die Badewanne kann für eine Person sein. Vielleicht wäre es schön, wenn sie außen gefliest wäre.
Fliesen möchten wir in anthrazitgrau und weiß (vielleicht leicht ins beige rein).
Habt ihr evtl. noch eine zündende Idee, wie man die verschiedenen Sanitäranlagen usw verteilen kann?
Das Bad ist 5m x 2,82m. Bitte nicht wundern wegen qm. Auf dem Bild das kommt von meiner Planung und kam mit Sweat Home 3D nicht ganz auf die Maße im OG.
So ich bin nun zum planen gekommen. Ja dies gefällt mir schon viel besser. Danke hierfür schon mal.
Nur die begehbare Dusche habe ich so nicht übernommen. Dies hat mehrere Gründe. Einerseits mag ich das Licht was man hat, wenn man komplett Glas drum hat und es zieht nicht so. Des Weiteren hat der Boden durch die Duschwanne keine Fugen. Wenn man Haare bis unter den Po hat und öfters mal welche verliert, dann möchte man die nicht in jeder Fuge einsammeln müssen. Dann lieber gesammelt im Abflussbehälter *pfui* 😀
Ich muss mich nun mal über die Größen der Badewannen informieren. Denke aber, dass hier ein Standard langt. Ist halt nur die Frage, ob diese ummauert wird. Gefällt mir eigentlich sehr gut. Kommt halt drauf an was es kostet. Wegen Heizkörper müssen wir uns auch noch schlau machen. Eigentlich wollten wir diesen nicht an die Fußbodenheizung bzw. Wasserlauf anschließen. Somit müsste eine elektrische her. Hier habe ich etwas bedenken, wegen Stromverbrauch. Evtl. muß doch eine andere Methode her ???





Nur die begehbare Dusche habe ich so nicht übernommen. Dies hat mehrere Gründe. Einerseits mag ich das Licht was man hat, wenn man komplett Glas drum hat und es zieht nicht so. Des Weiteren hat der Boden durch die Duschwanne keine Fugen. Wenn man Haare bis unter den Po hat und öfters mal welche verliert, dann möchte man die nicht in jeder Fuge einsammeln müssen. Dann lieber gesammelt im Abflussbehälter *pfui* 😀
Ich muss mich nun mal über die Größen der Badewannen informieren. Denke aber, dass hier ein Standard langt. Ist halt nur die Frage, ob diese ummauert wird. Gefällt mir eigentlich sehr gut. Kommt halt drauf an was es kostet. Wegen Heizkörper müssen wir uns auch noch schlau machen. Eigentlich wollten wir diesen nicht an die Fußbodenheizung bzw. Wasserlauf anschließen. Somit müsste eine elektrische her. Hier habe ich etwas bedenken, wegen Stromverbrauch. Evtl. muß doch eine andere Methode her ???
T
Traumfaenger24.07.17 23:04Ähnliche Themen