Hallo,
mich würde mal interessieren ob sich hier jemand richtig gut mit Photovoltaik Anlagen auskennt oder vielleicht weiß ob es irgend eine Seite gibt wo man die Leistung und Ausrichtung berechnen kann.
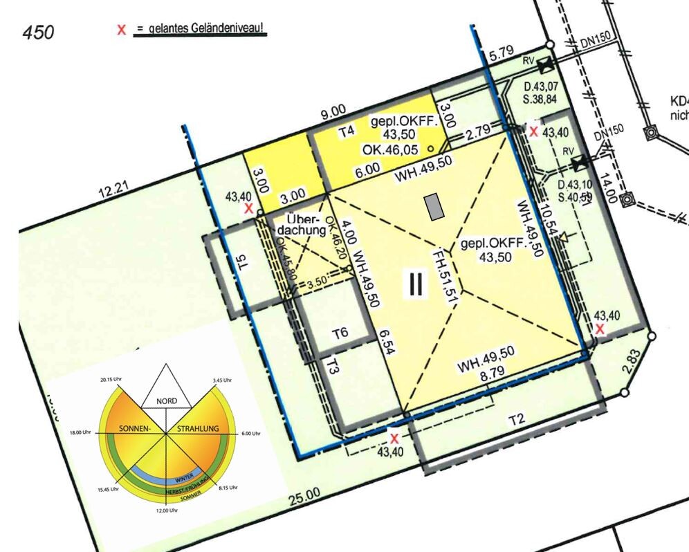
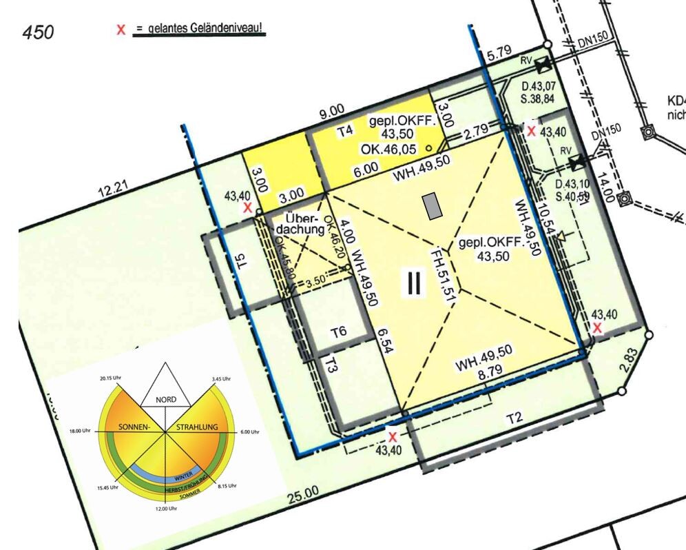
Wir haben eine Stadtvilla 12x9 mit je 60cm Dachüberstand und 25° Neigung. Im Hausangebot steht wir sollen eine 9,9kw Photovoltaikanlage bekommen. Nun wurde uns damals schon gesagt die Dachfläche reicht nicht nund man müsste auch was auf den Anbau stellen. Das wollen wir aber eigentlich nicht, wir wollen alles auf dem Walmdach. Laut Technikfirma würden da nur 9,5kw darauf passen mit Ost/West Ausrichtung.
Da unser Haus eher eine NO/SW Ausrichtung hat von den großen Dachflächen mache ich mir schon ein bisschen Gedanken ob es sinnvoll ist die Hälfte der Anlage auf der NO Seite zu installieren. Laut Tabelle die ich gefunden habe wäre das -110° Azimut und nur 79% Ertrag.
Jetzt frage ich mich was ist Sinnvoller die vorgeschlagene Variante der Technikfirma oder ob es nicht Sinnvoller wäre die kleine Dachfläche daneben zu nutzen die eine SO Ausrichtung hat zu nutzen. Klar passen hier wieder weniger Module hin und die Anlage hätte dann vermutlich nur noch 7KW aber hat es so evtl mehr Ertrag ? Und wir würden noch Geld Sparen, da wir weniger Module benötigen. Die Technikfirma ist ja wahrscheinlich auch eher darauf aus, uns das was im Angebot ist auch irgendwie zu montieren ob es Sinn macht oder nicht, Hauptsache Umsatz!?
Daher würde ich gerne irgendwie ausrechnen wollen was man mit weniger Solarmodulen aber besserer Ausrichtung erreichen kann, gegenüber mehr Modulen aber schlechter Ausrichtung.
mich würde mal interessieren ob sich hier jemand richtig gut mit Photovoltaik Anlagen auskennt oder vielleicht weiß ob es irgend eine Seite gibt wo man die Leistung und Ausrichtung berechnen kann.
Wir haben eine Stadtvilla 12x9 mit je 60cm Dachüberstand und 25° Neigung. Im Hausangebot steht wir sollen eine 9,9kw Photovoltaikanlage bekommen. Nun wurde uns damals schon gesagt die Dachfläche reicht nicht nund man müsste auch was auf den Anbau stellen. Das wollen wir aber eigentlich nicht, wir wollen alles auf dem Walmdach. Laut Technikfirma würden da nur 9,5kw darauf passen mit Ost/West Ausrichtung.
Da unser Haus eher eine NO/SW Ausrichtung hat von den großen Dachflächen mache ich mir schon ein bisschen Gedanken ob es sinnvoll ist die Hälfte der Anlage auf der NO Seite zu installieren. Laut Tabelle die ich gefunden habe wäre das -110° Azimut und nur 79% Ertrag.
Jetzt frage ich mich was ist Sinnvoller die vorgeschlagene Variante der Technikfirma oder ob es nicht Sinnvoller wäre die kleine Dachfläche daneben zu nutzen die eine SO Ausrichtung hat zu nutzen. Klar passen hier wieder weniger Module hin und die Anlage hätte dann vermutlich nur noch 7KW aber hat es so evtl mehr Ertrag ? Und wir würden noch Geld Sparen, da wir weniger Module benötigen. Die Technikfirma ist ja wahrscheinlich auch eher darauf aus, uns das was im Angebot ist auch irgendwie zu montieren ob es Sinn macht oder nicht, Hauptsache Umsatz!?
Daher würde ich gerne irgendwie ausrechnen wollen was man mit weniger Solarmodulen aber besserer Ausrichtung erreichen kann, gegenüber mehr Modulen aber schlechter Ausrichtung.
S
Stadtvilla1917.03.20 12:44Sieht gut aus, keine Ahnung warum die bei uns nur 2 Seiten machen wollen, wahrscheinlich ist es weniger aufwendig und spart Kosten nur auf 2 Dachflächen rum zu klettern.
Die sind ja eh so verpeilt... Wir sollten den Bescheid sagen wenn unser Dachdecker kommt, dann wollten Sie einen Kollegen schicken der die Halter montiert. Also gesagt getan 3 Wochen vor Beginn der Dacharbeiten Bescheid gesagt, da war es November. Per Mail die Kontaktdaten vom Dachdecker geschickt, beim Dachdecker hat sich nie einer gemeldet also paar Tage später angerufen und gefragt wo das Problem ist. Da kam dann das wäre viel zu kurzfristig und so schnell bekommt man da keinen Kollegen abgestellt.
Da dachten wir uns, naja ist ja euer Problem dann habt ihr halt mehr Arbeit. Das Gerüst wurde am 31.01 abgebaut und jetzt am 10.03 fällt den plötzlich ein, das das Dach schon eingedeckt ist und Gerüst steht auch keins mehr. Das wollen die nun plötzlich zu unserem Problem machen....
Wir haben den Vertrag bei denen im Dezember 2018 unterschrieben. Beginnen sollten Sie im Oktober 2019, da es von unserer Seite eine 5 Wöchige Verspätung gab,waren 2019 plötzlich keine Kapazitäten mehr frei und wir mussten bis jetzt warten....
Die sind ja eh so verpeilt... Wir sollten den Bescheid sagen wenn unser Dachdecker kommt, dann wollten Sie einen Kollegen schicken der die Halter montiert. Also gesagt getan 3 Wochen vor Beginn der Dacharbeiten Bescheid gesagt, da war es November. Per Mail die Kontaktdaten vom Dachdecker geschickt, beim Dachdecker hat sich nie einer gemeldet also paar Tage später angerufen und gefragt wo das Problem ist. Da kam dann das wäre viel zu kurzfristig und so schnell bekommt man da keinen Kollegen abgestellt.
Da dachten wir uns, naja ist ja euer Problem dann habt ihr halt mehr Arbeit. Das Gerüst wurde am 31.01 abgebaut und jetzt am 10.03 fällt den plötzlich ein, das das Dach schon eingedeckt ist und Gerüst steht auch keins mehr. Das wollen die nun plötzlich zu unserem Problem machen....
Wir haben den Vertrag bei denen im Dezember 2018 unterschrieben. Beginnen sollten Sie im Oktober 2019, da es von unserer Seite eine 5 Wöchige Verspätung gab,waren 2019 plötzlich keine Kapazitäten mehr frei und wir mussten bis jetzt warten....
S
Stadtvilla1921.03.20 07:49Also wir haben jetzt klar die Aussage bekommen das 3 Seiten nicht möglich wäre da der Wechselrichter nur 2 Eingänge hat
S
Stadtvilla1921.03.20 10:21Ne danach habe ich nicht explizit gefragt. Ich habe nur gefragt ob es nicht evtl. Sinnvoller wäre die kleine statt die große Fläche zu nutzen. Da kam dann erst die wollen prüfen zusätzlich die kleine Fläche zu nutzen. 2 Tage später kam dann die Aussage man kann nicht 3 Dachflächen nutzen weil der Wechselrichter nur zwei Eingänge hätte.
Uns wurde nun aber auch von dem LG Akku abgeraten und zu dem von Viessmann Geräten, dieser wäre zwar teurer und größer aber man könnte ihn später aufrüsten. Wir würden jetzt zum gleichen Preis nur 7,8KW statt 10KW bekommen zum gleichen Preis oder halt mehr bezahlen für 11,xx KW.
In dem Viessmann soll der Wechselrichter wohl gleich mit integriert sein, vielleicht liegt es daran ?
Uns wurde nun aber auch von dem LG Akku abgeraten und zu dem von Viessmann Geräten, dieser wäre zwar teurer und größer aber man könnte ihn später aufrüsten. Wir würden jetzt zum gleichen Preis nur 7,8KW statt 10KW bekommen zum gleichen Preis oder halt mehr bezahlen für 11,xx KW.
In dem Viessmann soll der Wechselrichter wohl gleich mit integriert sein, vielleicht liegt es daran ?
P
Piotr198106.08.20 07:44Ich schließe mich mal hier an....
Dachkonstruktion und Ausrichtung absolut identisch mit dem TE. Nach ersten Gesprächen mit dem Solarteur bekommen wir max. 5,84 kwp auf das Dach (bei 18! Modulen - 6 Module auf einer Dachseite).
Hat mich ehrlich gesagt etwas irritiert, dass es so wenig Module pro Seite sein können).
Verbaut werden soll: Sharp NU-JC 320 + Speicher BYD Box LV
Wie ist eure Meinung? 6 auf einer Dachfläche richtig?
Solarteur geht im Durchschnitt von 850 Sonnenstunden im Jahr aus.

Dachkonstruktion und Ausrichtung absolut identisch mit dem TE. Nach ersten Gesprächen mit dem Solarteur bekommen wir max. 5,84 kwp auf das Dach (bei 18! Modulen - 6 Module auf einer Dachseite).
Hat mich ehrlich gesagt etwas irritiert, dass es so wenig Module pro Seite sein können).
Verbaut werden soll: Sharp NU-JC 320 + Speicher BYD Box LV
Wie ist eure Meinung? 6 auf einer Dachfläche richtig?
Solarteur geht im Durchschnitt von 850 Sonnenstunden im Jahr aus.
Ähnliche Themen