Hallo zusammen,
wir möchten gerne nächstes Jahr eine Doppelhaushälfte bauen.
Aktuell überlegen wir uns, wie wir das Bad grundlegend aufbauen können.
In den Bildern seht ihr unsere ersten auf Millimeterpapier erstellten Skizzen.
Das Bad hat ca. 16qm Fläche.
Bei der jeweils oberhalb des WCs eingezeichneten Wand dachten wir an eine Höhe von 0,9m (analog zur Brüstungshöhe des Fensters).
Über Feedback bzw. Alternativvorschläge dazu würde ich mich sehr freuen.
Vielen Dank.
Viele Grüße,
Christian



wir möchten gerne nächstes Jahr eine Doppelhaushälfte bauen.
Aktuell überlegen wir uns, wie wir das Bad grundlegend aufbauen können.
In den Bildern seht ihr unsere ersten auf Millimeterpapier erstellten Skizzen.
Das Bad hat ca. 16qm Fläche.
Bei der jeweils oberhalb des WCs eingezeichneten Wand dachten wir an eine Höhe von 0,9m (analog zur Brüstungshöhe des Fensters).
Über Feedback bzw. Alternativvorschläge dazu würde ich mich sehr freuen.
Vielen Dank.
Viele Grüße,
Christian
ypg schrieb:
Hier wäre ein Fensterband angebracht, welches die Maße von dem Seitenteil im EG hat, nur gedreht und bündig zur rechten AnsichtsseiteEin Fensterband ist lang und schmal und hat eine hohe Brüstung.
koestech schrieb:
Dort wird die Spüle vermutlich relativ mittig im Raum in einer Insel liegen.das Abwasser der Spüle geht direkt aus dem Gebäude, ohne dass es an ein Fallrohr angeschlossen werden muss.
Du müsstest schon erklären, wo das Fallrohr hinkommt, schliesslich geht es durch die Küche! Also dort am besten in eine Ecke... das muss dann im Bad entsprechend eingezeichnet werden.
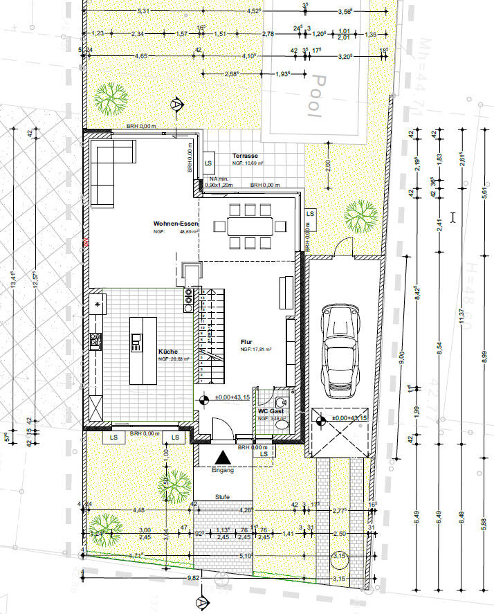
Ich habe mir noch mal den Plan vom EG angeschaut (siehe Anhang).
Ideal ist so wie ich das sehe unten (straßenseitig) rechts, dadurch würde der dort im EG liegende Mauervorspung um die Dicke des Fallrohres verbreitert. Unten links wäre aber nicht viel schlechter, dadurch würde allenfalls der schrank in der Küche den Ausschnitt berücksichtigen müssen.

Ideal ist so wie ich das sehe unten (straßenseitig) rechts, dadurch würde der dort im EG liegende Mauervorspung um die Dicke des Fallrohres verbreitert. Unten links wäre aber nicht viel schlechter, dadurch würde allenfalls der schrank in der Küche den Ausschnitt berücksichtigen müssen.
koestech schrieb:
Ich habe mir noch mal den Plan vom EG angeschaut (siehe Anhang).
Ideal ist so wie ich das sehe unten (straßenseitig) rechts, dadurch würde der dort im EG liegende Mauervorspung um die Dicke des Fallrohres verbreitert. Unten links wäre aber nicht viel schlechter, dadurch würde allenfalls der Schrank in der Küche den Ausschnitt berücksichtigen müssen.

Das wäre eine gute Lage, ja.Ich sehe, die Abwasserplanung gibt es bei Euch noch nicht.
Aber zeichne doch mal bitte im Bad die Treppe neu: wie kann denn der erste Beitrag zum EG passen?
Zielführend: kann man noch die Tür zum Bad versetzen?
Hi!
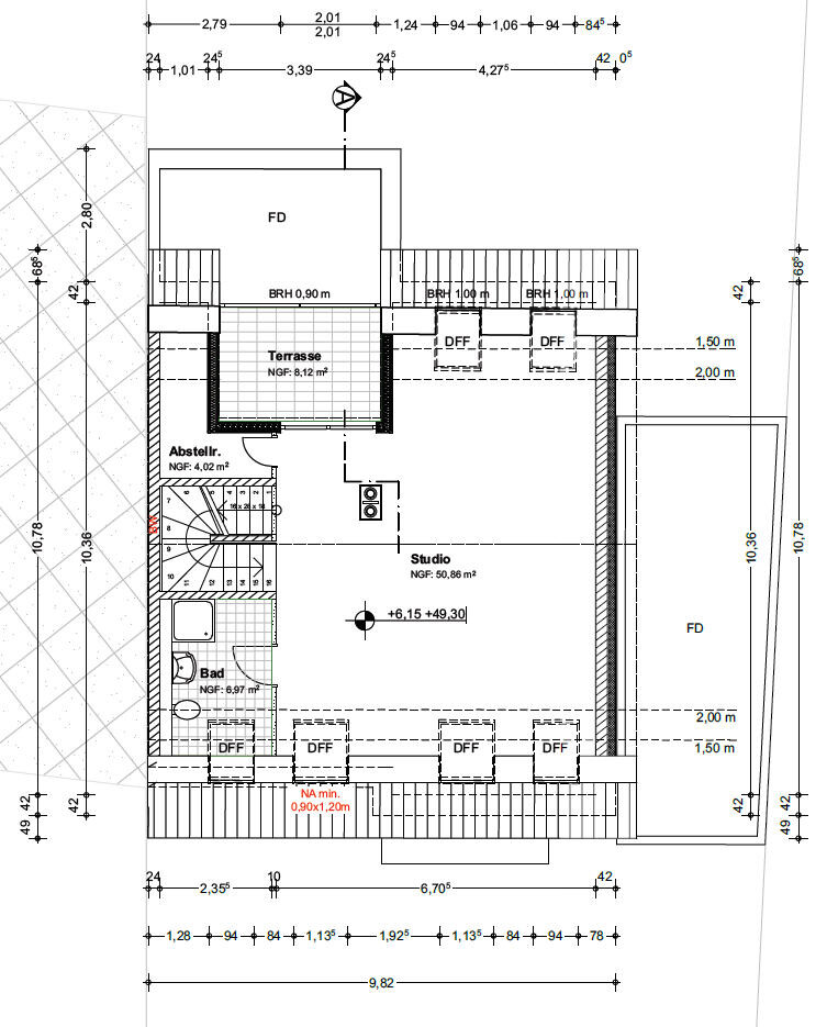
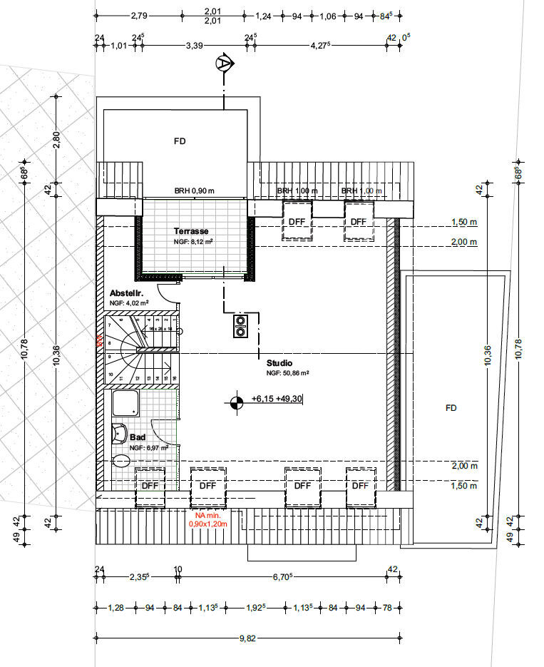
Die Treppe in meinen Skizzen ist die Treppe vom 1.OG in das Studio. Die Treppe von EG zu OG ist nicht in meinen Skizzen.
Die Tür lässt sich daher in gewissem Rahmen nach rechts verschieben. Nach links sieht es wegen der Treppe schlecht aus.
(Ich habe zum Verständnis auch den Plan vom Studio angehängt)

Die Treppe in meinen Skizzen ist die Treppe vom 1.OG in das Studio. Die Treppe von EG zu OG ist nicht in meinen Skizzen.
Die Tür lässt sich daher in gewissem Rahmen nach rechts verschieben. Nach links sieht es wegen der Treppe schlecht aus.
(Ich habe zum Verständnis auch den Plan vom Studio angehängt)
Dann hat sich das aber mit dem Fallrohr an der einen Küchenseite erledigt.
Ich seh das Rohr dann planlinks unten - wegen des Bades im Studio.
Alles andere wäre sinnfrei.
Toilette also dort ungefähr, wo ich die Dusche eingezeichnet habe.
BUs sagen zwar, es geht alles, aber wenn ihr mal ein verstopfes Rohr habt, dann wäre es ärgerlich, eine Wand im Bad rauszukloppen.
(Die Frage ist, ob der BU irgendwo einen Versorgungsschacht weiter mittig plant, aber das erscheint mir dort unsinnig wegen der Treppe)
Wie viel Personen bedienen das Bad?
Wie viel Waschtischfläche wollt ihr in der Länge?
Ich seh das Rohr dann planlinks unten - wegen des Bades im Studio.
Alles andere wäre sinnfrei.
Toilette also dort ungefähr, wo ich die Dusche eingezeichnet habe.
BUs sagen zwar, es geht alles, aber wenn ihr mal ein verstopfes Rohr habt, dann wäre es ärgerlich, eine Wand im Bad rauszukloppen.
(Die Frage ist, ob der BU irgendwo einen Versorgungsschacht weiter mittig plant, aber das erscheint mir dort unsinnig wegen der Treppe)
Wie viel Personen bedienen das Bad?
Wie viel Waschtischfläche wollt ihr in der Länge?
Ähnliche Themen