Hallo liebe Leute,
ich mit meiner Frau suchen einen Platz für sofa und Tv in unserem zukünftigen Wohnzimmer ( das Haus wird zurzeit gebaut).
Wir haben zwei Ideen, sind aber von den beiden nicht ganz überzeugt. Wenn ihr eine andere gute Idee hättet oder die Meinung zu unseren äußern könntet, wäre es für uns sehr hilfreich.
Ich habe hier zwei Fotos mit dem Grundriss und dem Schema von der Sofa-und TV-Position,wie wir das gedacht hatten angehängt.
Die zwei bodentiefen Fenster gehen zur westlichen Seite und das andere bodentiefe Fenster geht zur südlichen Seite.
Wir wären wirklich dankbar für eure Meinungen.
MfG

ich mit meiner Frau suchen einen Platz für sofa und Tv in unserem zukünftigen Wohnzimmer ( das Haus wird zurzeit gebaut).
Wir haben zwei Ideen, sind aber von den beiden nicht ganz überzeugt. Wenn ihr eine andere gute Idee hättet oder die Meinung zu unseren äußern könntet, wäre es für uns sehr hilfreich.
Ich habe hier zwei Fotos mit dem Grundriss und dem Schema von der Sofa-und TV-Position,wie wir das gedacht hatten angehängt.
Die zwei bodentiefen Fenster gehen zur westlichen Seite und das andere bodentiefe Fenster geht zur südlichen Seite.
Wir wären wirklich dankbar für eure Meinungen.
MfG
DjMannarino schrieb:
Vielen Dank,
Änderungen im Grundriss sind nicht mehr möglich,der Rohbau steht schon.Schade! Dann versuche das Beste draus zu machen, wie es so ist. Noch eine Idee von mir nach dem Motto " Das Wohnzimmer ist ja nicht nur ein TV-Zimmer." Wenn ihr unbedingt wollt, könnt ihr auch ein Relexsessel oder Sitzsack von Fatboy z.B. direkt gegenüber TV hinstellen. Somit löst ihr das Platzproblem mit den Terrassentüren.Viel Erfolg bei der Einrichtung des Hauses!
Übrigens, ihr habt eine echt großzügige Diele! Daraus könnt ihr einen schönen Empfang machen.
charli schrieb:
@Xingwei421 was du da eingezeichnet hast, sind eher Bierbänke als Sofas.Dann bin ich mit deiner Zeichnung / besserer Vorschläge gespannt.Ist nicht hilfreich für den TE, mit Ideen zu kommen, die nicht funktionieren, weil die eingezeichneten Möbel nicht dem Maßstab des Grundrisses entsprechen.
Der Raum ist schwierig einzurichten. Mich selbst stört es nicht so wahnsinnig, wenn ein sofa mit Abstand vor einem bodentiefen Fenster steht.
Wenn man das vermeiden will, könnte das Sofa auch nach rechts mit Abstand von der Wand gestellt werden und der TV nach links unten. Ich würde aber kein Riesensofa nehmen und lieber noch ein, zwei Sessel dazu stellen, die sind flexibler. Hinter dem Sofa ist vielleicht noch Platz für ein Bücherregal, falls gewünscht/erfordelich, das braucht nicht viel Tiefe. Hab das mal ganz grob skizziert, wie ich es meine. Bei der Größe muss man schauen, dass man noch gut dran vorbei kommt. Vielleicht kannst du das Sofa auch leicht schräg stellen (in die andere Richtung als es in der Skizze schräg steht), oder ein gerundetes Modell nehmen...
So wäre auch die Situation um den Esstisch etwas entspannt.

Der Raum ist schwierig einzurichten. Mich selbst stört es nicht so wahnsinnig, wenn ein sofa mit Abstand vor einem bodentiefen Fenster steht.
Wenn man das vermeiden will, könnte das Sofa auch nach rechts mit Abstand von der Wand gestellt werden und der TV nach links unten. Ich würde aber kein Riesensofa nehmen und lieber noch ein, zwei Sessel dazu stellen, die sind flexibler. Hinter dem Sofa ist vielleicht noch Platz für ein Bücherregal, falls gewünscht/erfordelich, das braucht nicht viel Tiefe. Hab das mal ganz grob skizziert, wie ich es meine. Bei der Größe muss man schauen, dass man noch gut dran vorbei kommt. Vielleicht kannst du das Sofa auch leicht schräg stellen (in die andere Richtung als es in der Skizze schräg steht), oder ein gerundetes Modell nehmen...
So wäre auch die Situation um den Esstisch etwas entspannt.
H
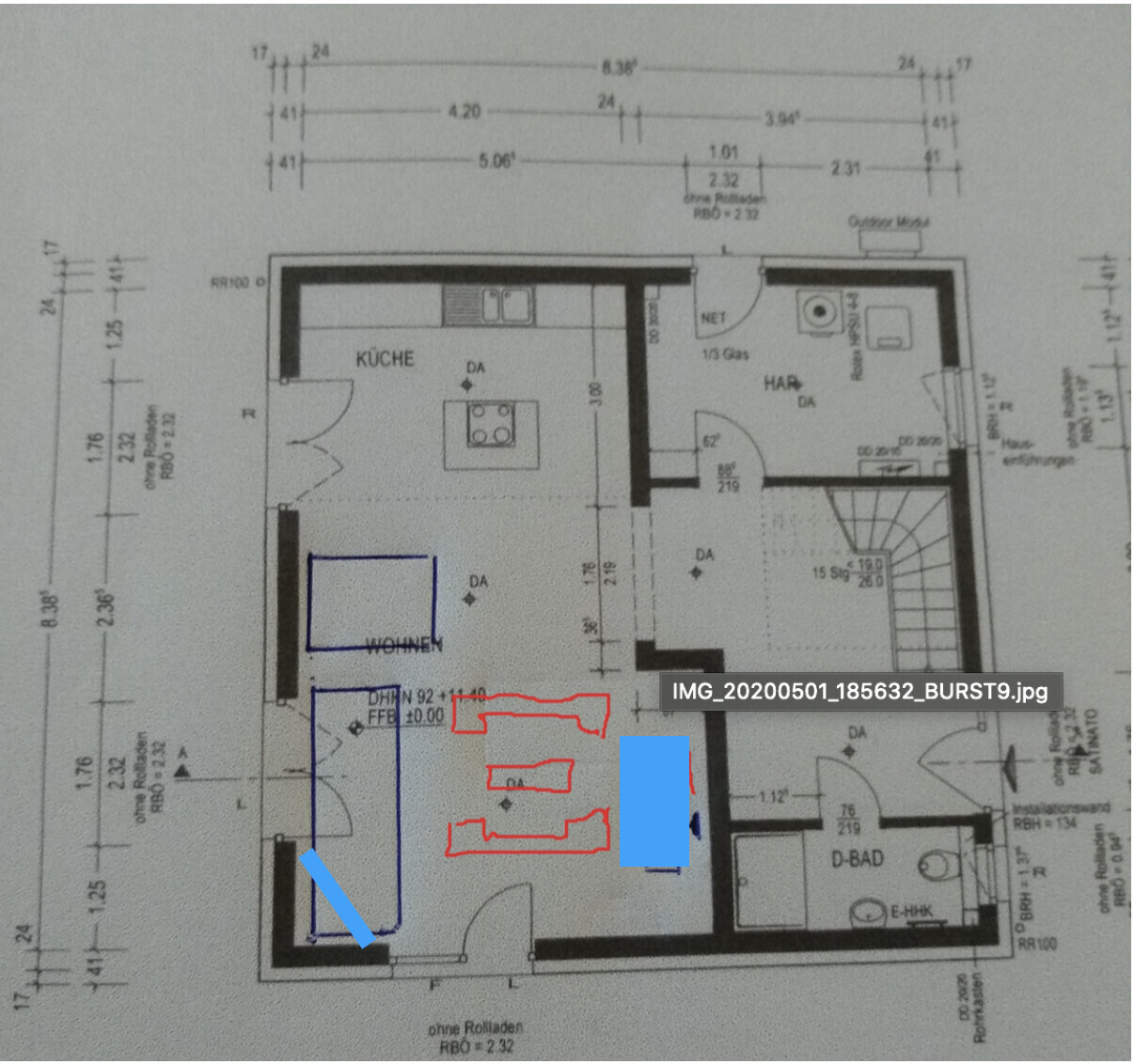
hampshire04.05.20 17:04Natürlich findet sich da eine gute Lösung. Dafür ist es aber erst einmal wichtig zu verstehen wie wichtig das Fernsehen ist, welche Bildschirmgröße es sein soll, ob nur geglotzt wird wenn es dunkel ist oder auch tagsüber, welches Format das Sofa haben soll und wie viele Personen gleichzeitig vor dem TV hängen...
Bei 2 Personen, Design-orientiert und Gelegenheitsglotzer wäre die Anordnung (blau) unten prima: Sofa Cassina Maralungo 2er Sofa , Fernseher Samsung Serif, eigezeichnete Proportionen stimmen. Steht bei uns ähnlich zueinander auf einer Galerie und funktioniert famos.

Wenn TV eine große Rolle in Eurem Leben spielt, dann denkt eine Projektionslösung mit Motorleinwand an - diese kann dann bei Gebrauch auch vor einer der Fenster heruntergefahren werden.
Bei 2 Personen, Design-orientiert und Gelegenheitsglotzer wäre die Anordnung (blau) unten prima: Sofa Cassina Maralungo 2er Sofa , Fernseher Samsung Serif, eigezeichnete Proportionen stimmen. Steht bei uns ähnlich zueinander auf einer Galerie und funktioniert famos.
Wenn TV eine große Rolle in Eurem Leben spielt, dann denkt eine Projektionslösung mit Motorleinwand an - diese kann dann bei Gebrauch auch vor einer der Fenster heruntergefahren werden.
kbt09 schrieb:Nee, ganz ehrlich: eigentlich nicht wenn TV keine besondere Priorität hat.
Und mal ehrlich, das sind doch Gedanken, die man sich vor Baubeginn macht.
Ähnliche Themen