ᐅ Kontrollierte-Wohnraumlüftung: Positionierung der Zu- und Abluft in meinen Entwürfen
Erstellt am: 12.10.20 00:03
S
Shiny86
Hallo,
könntet ihr bitte über unsere Pläne (Position Zuluft und Abluft) gucken?
Bin ziemlich überfordert. Optisch ist das ja überhaupt nicht schön mit den Ventilen, aber irgendwo müssen die ja hinkommen. Wie löst man das am elegantesten?
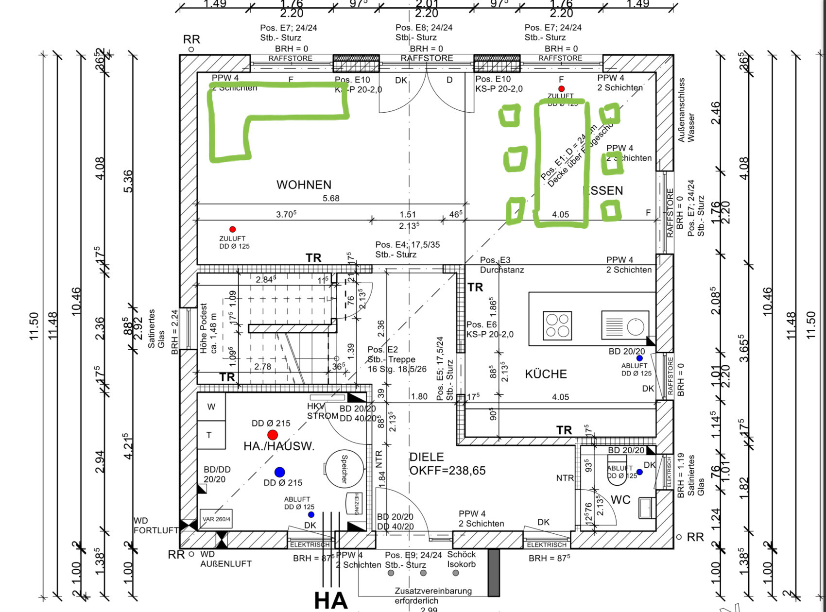
Findet ihr diese Planung gut?
Auf den ersten Blick fällt mir die Zuluft-Position im Wohnzimmer (EG Allraum planlinks) auf. Darunter wird nämlich genau das Sofa stehen...
Und dann gibt es im OG drei Zulüfte über den Boden. Finde ich von der Optik bescheiden und mache mir Gedanken, ob das nicht wegen der Reinigung suboptimal ist.
Aber kann man die Bodenventile im OG auch einfach ohne Weiteres z.B. in Deckenventile umplanen oder sind das dann enorme Mehrkosten?
Ich würde mich über Feedback freuen.
Vielen Dank vorab!

könntet ihr bitte über unsere Pläne (Position Zuluft und Abluft) gucken?
Bin ziemlich überfordert. Optisch ist das ja überhaupt nicht schön mit den Ventilen, aber irgendwo müssen die ja hinkommen. Wie löst man das am elegantesten?
Findet ihr diese Planung gut?
Auf den ersten Blick fällt mir die Zuluft-Position im Wohnzimmer (EG Allraum planlinks) auf. Darunter wird nämlich genau das Sofa stehen...
Und dann gibt es im OG drei Zulüfte über den Boden. Finde ich von der Optik bescheiden und mache mir Gedanken, ob das nicht wegen der Reinigung suboptimal ist.
Aber kann man die Bodenventile im OG auch einfach ohne Weiteres z.B. in Deckenventile umplanen oder sind das dann enorme Mehrkosten?
Ich würde mich über Feedback freuen.
Vielen Dank vorab!
Kann hier eigentlich noch jemand bestätigen, dass es aus deckenzuluftventilen nicht zieht?
Hab jetzt im Internet so oft gelesen, dass die Luft kalt sein soll und es zieht.
Was macht man in diesem Fall? Muss man damit leben oder gibt's Möglichkeiten?
Es geht mir um unseren Essbereich/esstisch. An den Kopfseiten des Tisches wird hin und wieder jemand sitzen. Ansonsten regulär die 6 eingezeichneten Sitzplätze. Wird es am Tisch ungemütlich?
Und zieht es in der Küche, wenn man an der Spüle steht?

Hab jetzt im Internet so oft gelesen, dass die Luft kalt sein soll und es zieht.
Was macht man in diesem Fall? Muss man damit leben oder gibt's Möglichkeiten?
Es geht mir um unseren Essbereich/esstisch. An den Kopfseiten des Tisches wird hin und wieder jemand sitzen. Ansonsten regulär die 6 eingezeichneten Sitzplätze. Wird es am Tisch ungemütlich?
Und zieht es in der Küche, wenn man an der Spüle steht?
Shiny86 schrieb:
Hab jetzt im Internet so oft gelesen, dass die Luft kalt sein soll und es zieht.Das ist Quatsch, außer wenn Du statt der Wärmerückgewinnung an Deine Kontrollierte-Wohnraumlüftung ein Luftkühlgerät anschließt, wie es manche Bewohner von Sauna-Wohnungen im Hochsommer benutzen - aber das wirst Du ja nicht tun. Die (weißnicht, hab´s nie gemessen) zwei Grad Unterschied zwischen schon von Deinem Körper erwärmter Luft und der Zuluft wirst Du nicht als "Eiswind" spüren, das ist Windstärke Null komma nullachtfuffzehn. Ohne Ventilator kurz vor dem Austrittsventil wird die Luft bedingt durch den geringen Temperaturunterschied auch nicht stürmen. Eine Kontrollierte-Wohnraumlüftung strebt ja vom Prinzip her auch keine Meeresbrise an, sondern nur denselben Luftwechsel, den man auch als Analoglüftender mit der Fensteröffnung erzielen würde. Das "K" in Kontrollierte-Wohnraumlüftung steht für "kontrolliert", nicht für "kolossal" https://www.instagram.com/11antgmxde/
https://www.linkedin.com/company/bauen-jetzt/
Ok das klingt sehr beruhigend. Das Thema Kontrollierte-Wohnraumlüftung ist einfach totales Neuland für mich. Kann das ein Planer denn fehlplanen bzgl. Positionen? Wir haben ja ein Zuluftventil vom Sofa weg verschoben. Kann das bzgl. der Wirksamkeit der Kontrollierte-Wohnraumlüftung schädlich sein?
Ähnliche Themen