Hausbau - Ratgeber
Bauherrenhilfe
- Bauherrenhilfe vor Vertragsabschluss
-- Warum einen unabhängigen Baubetreuer?
-- Vertragsgrundlagen
-- Bausumme
-- Zahlungsplan zur Kostenkontrolle
-- Pflichten des Bauherren vor Vertragsabschluss
-- Unterlagen beim Hausbau vor Vertragsabschluss
- Bauherrenhilfe nach Vertragsabschluss
-- Bauantrag bei Behörden
-- Bau-Genehmigungsverfahren bei Baubehörden
-- Bauspezifische Versicherungen
-- Bauzeitenplan
-- Baubeginn - die Letzten Pflichten der Bauherrschaft
- Bauherrenhilfe während der Bauzeit
- Gewährleistungsansprüche
- Bauabnahme
Baufinanzierung
- Baufinanzierung - Allgemeine Fragen
- Kreditarten
- Kredit-Konditionen
- Bausparen
- Staatliche Förderungen
- Verkehrswert
- Haushaltsrechnung und Bonität
Hausbau Planung
- Haustypen
- Hausbau Vorbereitungsarbeiten
- Das Baugrundstück
- Baugrund beim Hausbau
- Baurecht
- Gebäudeschutz
- Erdarbeiten und Wasserhaltung
- Stützmauern
- Einfriedung
- Untergeschoss
- Kanalisation
- Tragende Elemente
- Nichttragende Innenwände
- Fundation / Fundament
- Deckenkonstruktionen
- Dächer
- Kaminanlagen
- Treppen Rampen Leitern
- Dachbeläge und Spengler
- Fenster
- Sonnen und Wetterschutz
- Aussenputze
- Einbauten, Küchen, Türen
- Bodenbeläge und Unterlagsböden
- Parkett
- Gips, Wand, Decke
Haustechnik und Energie
- Heiztechnik
- Lüftung und Klimatechnik
- Sanitärtechnik
- Elektrotechnik
- Erneuerbare Energie
Whirlpools / Jacuzzi
Hausbau Magazin
- Baufinanzierung trotz Krise?
- Das Blockhaus
- Moderne Dämmstoffe im Vergleich
- Erker Vor- und Nachteile
- Glasflächen beim Hausbau
- Günstig ein Haus Bauen
- Mediterraner Hausbaustil
- Mehrgenerationenhaus
- Moderne Architektur
- Gartengestaltung leicht gemacht
- Traditioneller Ziegelbau
- Villa als höchster Traum
- Im Eigenheim Ruhestand geniessen
- Altbau sanieren
- Kauf einer Holzgarage
- Immobilienmakler
- Arbeitshandschuhe für den Winter
- Zuhause verschönern
- Outdoor-Plissees
- Schlafzimmer planen
- Terrassenüberdachung
- Wohngebäudeversicherung
- Girokonto für Bauherren finden
- Hauseingang gestalten
- Zaunarten und Eigenschaften
- Der perfekte Grundriss
- Sparsamer heizen im Altbau
- Einfamilienhaus smart finanzieren
- Planung einer PV-Anlage
- Neues Haus
- Immobilienfinanzierung
- Installation einer Photovoltaikanlage
- Asbest erkennen und entfernen
- Gartenpflege im Frühling – worauf achten
- Sauna im Fokus - Wellness zuhause
- Erfolgreich vermieten
- Die perfekte Winterbekleidung
- Das Niedrigenergiehaus
- Der April und seine Stürme
- Architektonische Vielfalt
- Ökologisch und nachhaltig bauen
- Das perfekte Schlafzimmer
- Nachhaltige Energieversorgung
- Zukunftsorientiert bauen
- Nachhaltigkeit beim Hausbau
- Tiny Houses
- Wärmepumpen als nachhaltige Heizvariante
- Maßgeschneiderten Kleiderschrank
- Der richtige Baukredit
- Ratgeber für erfolgreichen Hausbau
- Haus als Altersvorsorge
Do-it-yourself Anleitungen
- Verlegeanleitung für Bodenbeläge und Parkett
- Bodenbeläge und Parkett reinigen und pflegen
- Malerarbeiten am Haus
- Garten Tipps
- Umzug und Reinigung

ᐅ Kontrollierte-Wohnraumlüftung Herstellerauswahl - Wie herangehen?

Erstellt am: 05.10.20 22:38
T
ts-mc
Hallo, ich bin Matthias,
ich bin aktuell in den letzten Zügen der Planung (hoffentlich bald Bauantrag).
Ich will mit KfW55 bauen und dafür muss ich eine Kontrollierte-Wohnraumlüftung haben. Aber vor allem aus Komfortgründen!
Anfangs war ich schnell bei Helios, dann für Zehnder... nur kurze Zeit später für Komfovent. Und so zog sich das von Marke zu Marke fort. Ich will bei diesem großen Posten (Kosten) alles richtig machen und will mir nochmals die Zeit dafür nehmen und eure Erfahrungen berücksichtigen.

Wie gehe ich am besten vor? Wie entscheide ich mich für einen Hersteller? Wo fange ich an?

Welche Kriterien sollte ich außer den folgenden noch berücksichtigen?:
- Betriebsgeräusch (bin sehr empfindlich)
- KNX-Anbindung
- Intelligente raum- und bedarfsgerechte Regelung (VOC&Feuchte)
- Kühlung/Lufttrocknung im Sommer (über Erdleitung ums Haus/Keller herum + Wärmetauscher in Zuluft)
- gute Möglichkeit/Zugänglichkeit für Reinigung

//Eckdaten\\
160m²
2,5 geschossig
3 Schlafzimmer + 1 Bad + 1 WC
offener Wohn-Ess-Kochbereich
Keller
Fußbodenheizung (Gas)

Das sind viele Fragen... wollte das nicht scheibchenweise reistreuen. Jeder sachliche Rat ist willkommen.
G
Grobmutant
07.10.20 07:47
Kleiner Hinweis zu den Begrifflichkeiten:
"Abluft nach draußen" wird als "Fortluft" bezeichnet
"Zuluft von draußen" wird als "Frischluft" bezeichnet.
H
halmi
07.10.20 07:52
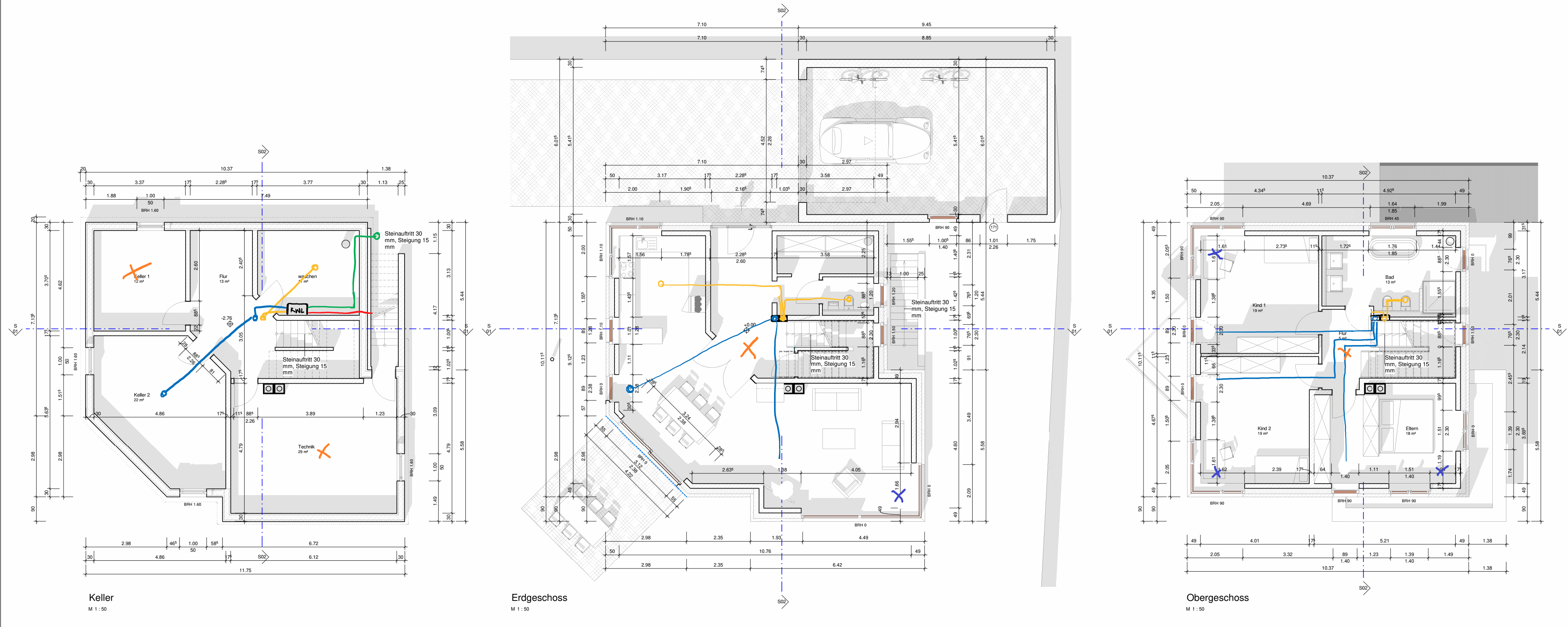
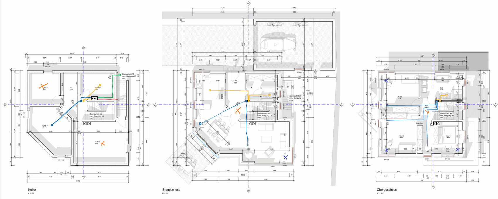
die Position der Ventile bei dir passt überhaupt nicht, ich würde es so machen. Dafür gibt es auch Planungstools von z. B. Zehnder.

Architekturplan mit drei Grundrissen: Keller, Erdgeschoss, Obergeschoss, Maßlinien und Symbole.
Golfi9007.10.20 07:53
Bookstar schrieb:

Einen Tipp noch: die Zehnder q350 ist ein sehr gutes Modell. Schau dir diese mal an. Ich kenne eigentlich nur zufriedene Kunden, habe diese selber installiert.

Volle Zustimmung!!
T
T_im_Norden
07.10.20 08:17
Mit einem Planer sprechen der sich damit auskennt, drauf achten das Leitungslängen passen.
Aufpassen das nicht zu viel Luft durch ein Ventil bzw. Eine Leitung strömt.

Langsamer Luftstrom ist meist auch leiser Luftstrom.
Golfi9007.10.20 08:37
Zehnder plant dir auch die Anlage. Ich meine sogar kostenfrei.
Mycraft07.10.20 09:11
ts-mc schrieb:

Ich bin von Viessmann aber nicht überzeugt.
Zu Unrecht. Viessmann bezieht seine Lüftungsanlagen von Renovent/Brink und aus diesem Hause kommt eigentlich immer was gescheites in Sachen Lüftung. Die anderen Hersteller kleben halt noch ihr Label drauf(einfach gesagt) und verkaufen es dann als etwas eigenes z.B. Wolf.

Beide Vorschläge für die Ventile sind noch suboptimal. Lass da am besten einen Profi ran, die machen das täglich und in der Regel ist die Planung auch kostenlos wie schon geschriebn wurde. Nicht nur bei Zehnder.
zehnderventileluftstrom