Hallo zusammen,
da bei uns in Kürze ein paar Renovierungen anstehen (neue Fliesen im EG, neue Innentüren im EG und Küche komplett neu), kam bei mir die Überlegung, ob man in dem Zuge nicht auch gleich Vorbereitungen für eine Wallbox im Carport treffen könnte. Das vorhandene Kabel zum Carport hat leider nur 3x1,5m² und ist somit nicht geeignet für eine 11KW Wallbox. Wo genau es ins Haus geht, konnte ich noch nicht herausfinden. Da wir keinen Keller haben, wird es vermutlich unter der Bodenplatte nach außen geführt.
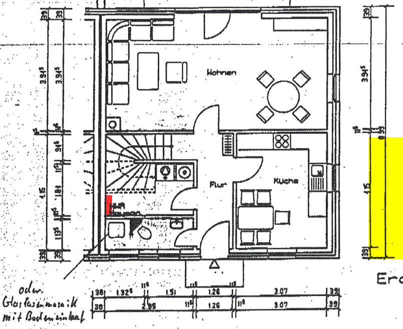
Es handelt sich um ein Reihenendhaus Baujahr 1997, rechts davon unser Carport (gelbe Farbe) und der Zählerschrank leider mitten im Haus (auf dem Bild rot dargestellt).
Hat jemand von euch vielleicht eine Idee, wie man am einfachsten nach draußen kommen könnte?
Einfach vom Hauswirtschaftsraum an der Wand entlang, durch den Flur und neben der Haustür raus?

da bei uns in Kürze ein paar Renovierungen anstehen (neue Fliesen im EG, neue Innentüren im EG und Küche komplett neu), kam bei mir die Überlegung, ob man in dem Zuge nicht auch gleich Vorbereitungen für eine Wallbox im Carport treffen könnte. Das vorhandene Kabel zum Carport hat leider nur 3x1,5m² und ist somit nicht geeignet für eine 11KW Wallbox. Wo genau es ins Haus geht, konnte ich noch nicht herausfinden. Da wir keinen Keller haben, wird es vermutlich unter der Bodenplatte nach außen geführt.
Es handelt sich um ein Reihenendhaus Baujahr 1997, rechts davon unser Carport (gelbe Farbe) und der Zählerschrank leider mitten im Haus (auf dem Bild rot dargestellt).
Hat jemand von euch vielleicht eine Idee, wie man am einfachsten nach draußen kommen könnte?
Einfach vom Hauswirtschaftsraum an der Wand entlang, durch den Flur und neben der Haustür raus?
Anzeige
Hallo FloHB123,
schau mal hier: Kabel zum Carport für Wallbox verlegen, Erfahrungen?. Da wird jeder fündig!
schau mal hier: Kabel zum Carport für Wallbox verlegen, Erfahrungen?. Da wird jeder fündig!
Kann so gemacht werden, spricht nix dagegen und gleich ein Netzwerkkabel mit dazu legen das wird ebenfalls als Erdkabel angeboten.
Vom Baujahr her müßte sich dein Zählerschrank nach neuer Norm auf/umrüsten lassen oder du hast Photovoltaik auf dem Dach, dann sollte es schon erledigt sein.
Vom Baujahr her müßte sich dein Zählerschrank nach neuer Norm auf/umrüsten lassen oder du hast Photovoltaik auf dem Dach, dann sollte es schon erledigt sein.
Ähnliche Themen