einen schönen guten Abend 🙂
ich brauche einmal kreative Gedanken zu einem Dachausbau - es sollen zwei Wohnungen im Dach entstehen - leider wurde bei der Sanierung des 1. OG die Treppe für das Dach nicht mit eingeplant. die zwei Wohnungen im 1. OG sollen so wie sie sind, erhalten bleiben.
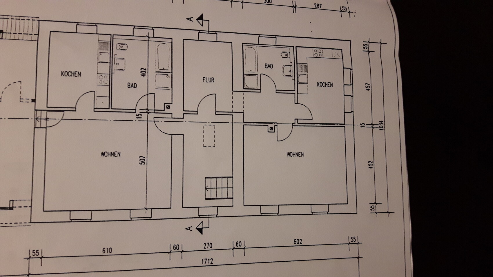
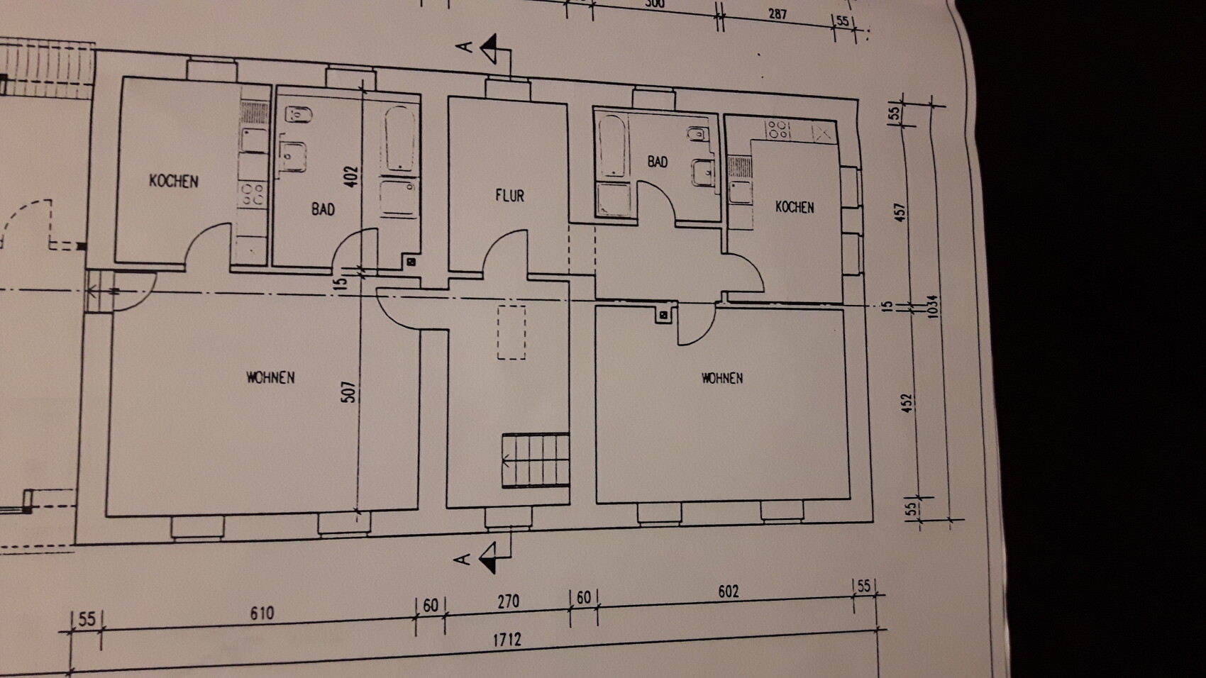
Die Ausrichtung des Hauses ist Nord-Süd - daher möchte der Besitzer beide Wohnungen mit Nord- und Südseite haben - ich hätte sie längs geteilt und an die freie Giebelseite eine Außentreppe angebracht. Ich habe das, was ich zeichnungstechnisch habe, angehängt - die Handzeichnung ist meine Idee wie eine Aufteilung erfolgen könnte - beide Schornsteine sollen in den beiden Wohnungen genutzt werden. - der Wasseranschluss ist bereits vorbereitet - in meiner Zeichnung mit H2O gekennzeichnet.
ich würde mich sehr freuen, wenn jemand eine kreative Idee hätte und das Projekt nicht schon vor dem Beginn stirbt weil es keine Lösung für das Treppenproblem gibt.
herzlichen Dank im Voraus und erwartungsvolle Grüße
Silke






ich brauche einmal kreative Gedanken zu einem Dachausbau - es sollen zwei Wohnungen im Dach entstehen - leider wurde bei der Sanierung des 1. OG die Treppe für das Dach nicht mit eingeplant. die zwei Wohnungen im 1. OG sollen so wie sie sind, erhalten bleiben.
Die Ausrichtung des Hauses ist Nord-Süd - daher möchte der Besitzer beide Wohnungen mit Nord- und Südseite haben - ich hätte sie längs geteilt und an die freie Giebelseite eine Außentreppe angebracht. Ich habe das, was ich zeichnungstechnisch habe, angehängt - die Handzeichnung ist meine Idee wie eine Aufteilung erfolgen könnte - beide Schornsteine sollen in den beiden Wohnungen genutzt werden. - der Wasseranschluss ist bereits vorbereitet - in meiner Zeichnung mit H2O gekennzeichnet.
ich würde mich sehr freuen, wenn jemand eine kreative Idee hätte und das Projekt nicht schon vor dem Beginn stirbt weil es keine Lösung für das Treppenproblem gibt.
herzlichen Dank im Voraus und erwartungsvolle Grüße
Silke
Wer bist denn überhaupt Du in der ganzen Geschichte ?
https://www.instagram.com/11antgmxde/
https://www.linkedin.com/company/bauen-jetzt/
exeH3454 schrieb:Was sagt der Denkmalpfleger zu Deiner Idee ?
ich hätte sie längs geteilt und an die freie Giebelseite eine Außentreppe angebracht.
exeH3454 schrieb:Mal eben munter weitere Feuerungsanlagen anzuschließen ist auch kein Wunschkonzert.
beide Schornsteine sollen in den beiden Wohnungen genutzt werden.
https://www.instagram.com/11antgmxde/
https://www.linkedin.com/company/bauen-jetzt/
11ant schrieb:
Wer bist denn überhaupt Du in der ganzen Geschichte ?
ich bin Mitarbeiterin auf dem Bauernhof und würde gern in eine der beiden entstehenden Mitarbeiterwohnungen einziehen
Was sagt der Denkmalpfleger zu Deiner Idee ?
vielen Dank für die Erinnerung - diesen Anspekt habe ich im Vorfeld noch nicht geprüft gehabt - lt. Einordnung ist der Gebäudekomplex "baugeschichtlich und wirtschaftsgeschichtlich von Bedeutung" - im Vorfeld wurden bereits einige Veränderungen vorgenommen - u.a. auch Zugang bzw. Fluchttreppen für den Dachausbau im ehemaligen Stall, der allerdings nur eingeschossig ist
Mal eben munter weitere Feuerungsanlagen anzuschließen ist auch kein Wunschkonzert.
das ist mir bewusst - bei der Dachsanierung wurde meines Erachtestens eine spätere Nutzung des Dachgeschosses als Unterkunft mit geprüft - einer der Schornsteine ist erneuert worden - nur wurde da eben der Zugang zum Dach nicht mit betrachtet - die 0,5*0,75m Luke wäre sicher auch für zeitweilige Unterkünfte keine wirkliche praktikable Variante besonders weil diese Treppe an der Geschosshöhe endet und die 50 cm Deckenhöhe "irgendwie" überwunden werden muss - ich bekomme beim Runtersteigen regelmäßig nen KollerÄhnliche Themen