Hallo zusammen,
Wir beschäftigen uns nun seit langer Zeit mit dem Thema Hausbau - so wie ihr alle hier. Das Forum selbst habe ich sehr spät erst gesehen. Gerne möchte ich meine Ideen hier einbringen und auch einen späteren Baublog als Erfahrung an Community zurückgeben.
Konkret, ich habe meine Pläne derzeit bei Büdenbender liegen zwecks Angebot. Bei Büdenbender hat mich die atmungsaktive, diffusionsoffene Außenwand aufmerksam gemacht.
Hat jemand Erfahrung mit Büdenbender sowohl aas Ausführung als auch den Baustoff angeht? Sind die Winter warm und die Sommer gefühlt kühl (im Sinne von Holzständernbauweise).
Ich konnte leider keinen aktuellen Baublogs hier finden.... was mich erst einmal stutzig gemacht hat. Aber gut, ich warte mal auf Reaktionen.
Dennoch werde ich noch Gespräche mit Haake, Keitel-Haus und Hamag Massivhaus GmbH führen. Auch hier gerne dazu Erfahrungen und oder Meinungen.
Gruss aus dem Hunsrück
Wir beschäftigen uns nun seit langer Zeit mit dem Thema Hausbau - so wie ihr alle hier. Das Forum selbst habe ich sehr spät erst gesehen. Gerne möchte ich meine Ideen hier einbringen und auch einen späteren Baublog als Erfahrung an Community zurückgeben.
Konkret, ich habe meine Pläne derzeit bei Büdenbender liegen zwecks Angebot. Bei Büdenbender hat mich die atmungsaktive, diffusionsoffene Außenwand aufmerksam gemacht.
Hat jemand Erfahrung mit Büdenbender sowohl aas Ausführung als auch den Baustoff angeht? Sind die Winter warm und die Sommer gefühlt kühl (im Sinne von Holzständernbauweise).
Ich konnte leider keinen aktuellen Baublogs hier finden.... was mich erst einmal stutzig gemacht hat. Aber gut, ich warte mal auf Reaktionen.
Dennoch werde ich noch Gespräche mit Haake, Keitel-Haus und Hamag Massivhaus GmbH führen. Auch hier gerne dazu Erfahrungen und oder Meinungen.
Gruss aus dem Hunsrück
P
project201523.01.15 14:30Jochen und Bauexperte.. Danke für Eure Antworten.
@Jochen: Ja, das wollte ich auch eigentlich. Sprich, die Doppelgarage in den Keller, dazu die Terrasse noch unterkellern ggf. Allerdings scheint das mit der Zufahrt von der Seite sehr eng zu sein (Zufahrt hinters Haus legen wäre Blödsinn und ein Auto immer rückwärts reinfahren ebenfalls). Aber das Thema habe ich nach wie vor auf dem Zettel und lasse das durch meinen neuen Architekten/Bauunternehmer prüfen.
Sieht natürlich nicht sehr schön aus wenn die Giebelseite über 3 Stockwerke komplett frei liegt, aber wäre dann so.
@Bauexperte: Genau jetzt sind wir an diesem Punkt wo ich bis dato mit den Musterhausvertretern nicht weiter gekommen bin, da mir diese Fragen und Optionen immer unbeantwortet blieben. Deswegen habe ich mich einem adäquaten ASP aus meiner Region umgesehen bzw. mich selbst über Foren versucht zu informieren.
Genau das probieren wir derzeit. Jetzt kommt auch schnell das Thema "Verkleinerung" vs. "Wohnlichkeit" einher.
Ich wünschte, ich hätten von Anfang an diesen Weg gewählt und dieses Forum hier entdeckt, dafür DANKE ich allen auf diesem Weg noch mal.
Das kuriose ist, wir wollten immer ein einfaches Haus, 2-3 Kinde, ländlich angehaucht mit Satteldach, Küche an der Strasse, Essen/Wohnen, Gäste-WC im EG, den Rest ins OG und dazu eine Garage für 2 Autos, die man hier auf dem Lande definitiv benötigt. BOOM.... kommt so ein Kasten bei raus, irre
Auf der anderen Seite benötigt man einen gewissen Platz wenn man eine Familie mit 2-3 Kindern hat (zumindest in der heutigen zeit und Bauen wir vor 50 Jahren ist nicht wirklich ein Option)
@Jochen: Ja, das wollte ich auch eigentlich. Sprich, die Doppelgarage in den Keller, dazu die Terrasse noch unterkellern ggf. Allerdings scheint das mit der Zufahrt von der Seite sehr eng zu sein (Zufahrt hinters Haus legen wäre Blödsinn und ein Auto immer rückwärts reinfahren ebenfalls). Aber das Thema habe ich nach wie vor auf dem Zettel und lasse das durch meinen neuen Architekten/Bauunternehmer prüfen.
Sieht natürlich nicht sehr schön aus wenn die Giebelseite über 3 Stockwerke komplett frei liegt, aber wäre dann so.
@Bauexperte: Genau jetzt sind wir an diesem Punkt wo ich bis dato mit den Musterhausvertretern nicht weiter gekommen bin, da mir diese Fragen und Optionen immer unbeantwortet blieben. Deswegen habe ich mich einem adäquaten ASP aus meiner Region umgesehen bzw. mich selbst über Foren versucht zu informieren.
Bauexperte schrieb:
Die priorisierte Frage, welche Du Dir beantworten solltest: brauchst Du diesen Platz wirklich? Dann unterhalte Dich mit Deinem Architekten und erfrage die Kosten einer budgetbezogenen Planung; hier geht noch einiges, ohne, daß das Einfamilienhaus gebaut als Bunker erscheinen muß. Hierzu mußt Du Dich aber auch auf den Architekten einlassen und Dich von der Planung in Deinem Kopf befreien.
Genau das probieren wir derzeit. Jetzt kommt auch schnell das Thema "Verkleinerung" vs. "Wohnlichkeit" einher.
Ich wünschte, ich hätten von Anfang an diesen Weg gewählt und dieses Forum hier entdeckt, dafür DANKE ich allen auf diesem Weg noch mal.
Das kuriose ist, wir wollten immer ein einfaches Haus, 2-3 Kinde, ländlich angehaucht mit Satteldach, Küche an der Strasse, Essen/Wohnen, Gäste-WC im EG, den Rest ins OG und dazu eine Garage für 2 Autos, die man hier auf dem Lande definitiv benötigt. BOOM.... kommt so ein Kasten bei raus, irre
Auf der anderen Seite benötigt man einen gewissen Platz wenn man eine Familie mit 2-3 Kindern hat (zumindest in der heutigen zeit und Bauen wir vor 50 Jahren ist nicht wirklich ein Option)
P
project201528.01.15 19:51Wir lassen den Architekten noch mal ran. Ich werde in den kommenden Tangen mal den Grundriss hochladen um Eure Meinungen noch mal final zu hören.
P
project201503.02.15 19:58Hallo,
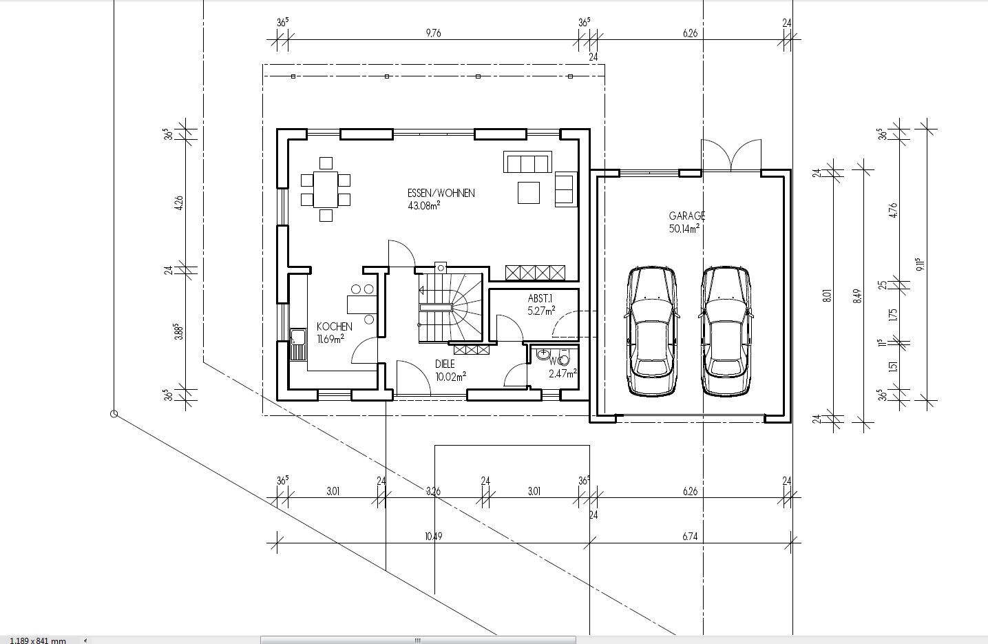
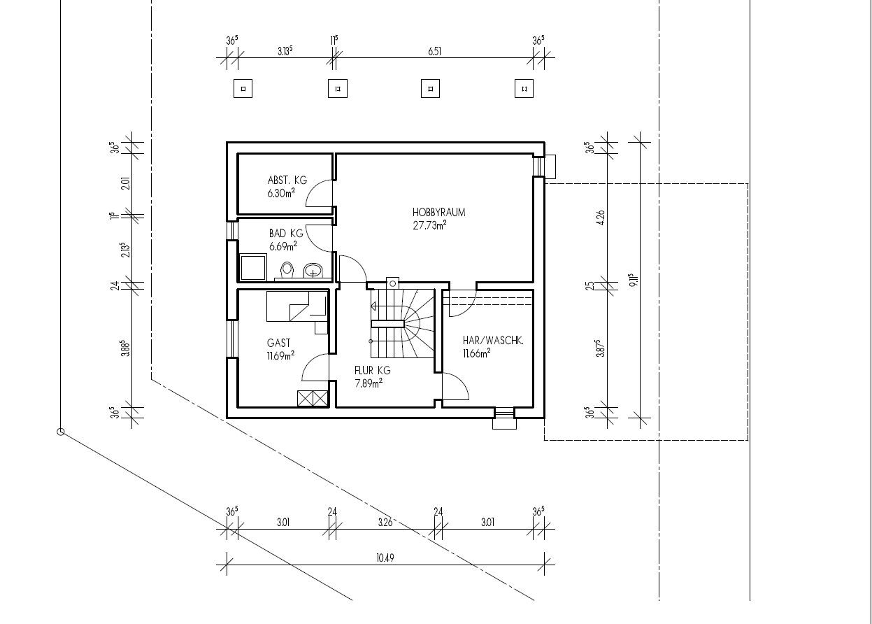
so, wir haben 2 Versionen erhalten. Der Architekt hält ein wenig am BRI von ca. 1000m³ fest, da wie oben beschrieben die Kosten von ca. 400k (inkl. nahezu allen Nebenkosten) im Raum stehen.
Weiterhin wollten wir im EG die L-Form mit optischem Versatz und Schleuse zur Garage und im OG nach Möglichkeit die Prio auf Kinderzimmer und falls machbar, Walk-In Dusche.
Eure Meinungen würden mich mal interessieren....
LG








so, wir haben 2 Versionen erhalten. Der Architekt hält ein wenig am BRI von ca. 1000m³ fest, da wie oben beschrieben die Kosten von ca. 400k (inkl. nahezu allen Nebenkosten) im Raum stehen.
Weiterhin wollten wir im EG die L-Form mit optischem Versatz und Schleuse zur Garage und im OG nach Möglichkeit die Prio auf Kinderzimmer und falls machbar, Walk-In Dusche.
Eure Meinungen würden mich mal interessieren....
LG
P
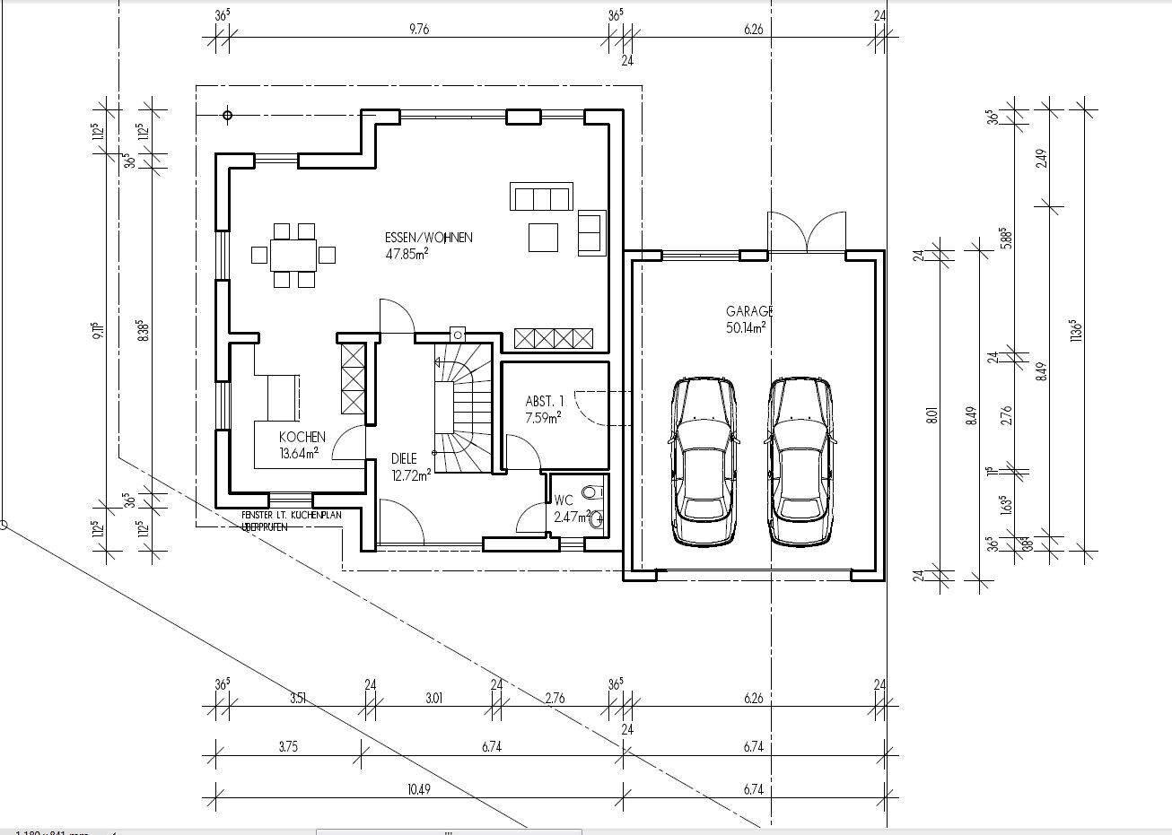
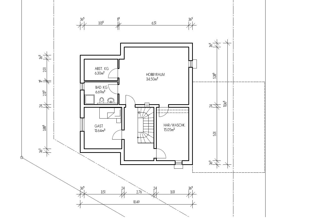
project201504.02.15 14:36Ein Nachtrag noch: Das EG haben wir nun passend, das OG passt fast.
Ich habe die Wahl, das Bad oder Kind2 gen Norden mit Fensterblick zum Nachbarhaus zu setzen. Momentan tendiere ich dazu, das Bad dorthinzulegen und dem Kind und Schreibtisch den schöneneren Blick zu geben. Dadurch ist das Bad mit 276*542 schlauchförmiger.
Ich habe mir überlegt den Kniestock auf 100 anzuheben um die Zimmerfreundlichkeit im OG hinzubekommen..
Ich habe die Wahl, das Bad oder Kind2 gen Norden mit Fensterblick zum Nachbarhaus zu setzen. Momentan tendiere ich dazu, das Bad dorthinzulegen und dem Kind und Schreibtisch den schöneneren Blick zu geben. Dadurch ist das Bad mit 276*542 schlauchförmiger.
Ich habe mir überlegt den Kniestock auf 100 anzuheben um die Zimmerfreundlichkeit im OG hinzubekommen..
P
project201505.02.15 20:43Guten Abend zusammen,
zufällig ein Fachmann online?
zufällig ein Fachmann online?
Ähnliche Themen