Grundstück mit Hanglage - Neubaugebiet

4,70 Stern(e) 3 Votes
A

amoor56

Guten Morgen zusammen,

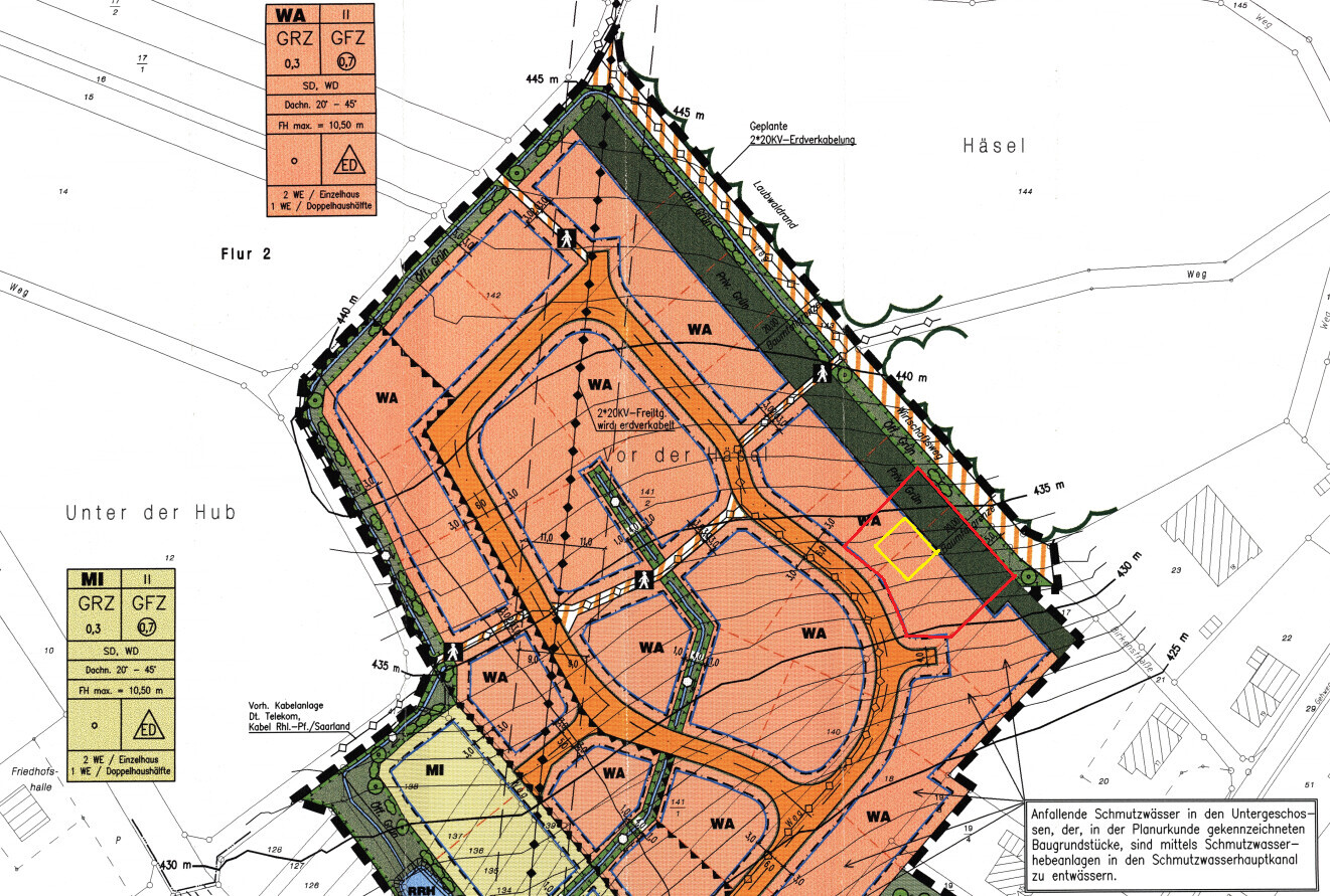
ich würde gerne eure Einschätzung/Meinung bzgl. der Höhen zu dem Grundstück (rote Umrandung) hören den Ihr im Anhang findet … Die Höhen sind auch gut sichtbar angegeben.

Der Bodengutachter/Vermesser kommt in den nächsten Wochen … In dem Neubaugebiet stehen schon einige Häuser, auch mit "Hanglage" … Der Boden sollte die wenigstens Probleme machen..

Es hat ca. 1200 m².

Wäre ein Keller zwingend notwendig?
Wären die Mehrkosten ohne Keller deutlich höher?
Auf was müssten wir achten?
Höhenunterschied Grundstück zur Straße (parallellaufend ca. 1,0 - 1,3 m).

Falls ihr weitere Informationen braucht, schreibt es ruhig in die Kommentare!

Vielen Dank!

Detaillierter Bauplan eines Geländes mit farbigen Zonen, Wegen und Begrenzungen.


Blick aus dem Auto auf eine kurvige Asphaltzufahrt, Grasflächen, Herbstwald und Straßenlampe.


Fahrtaufnahme aus Auto: kurvige Baustellenstraße mit Kies, Gräben, Pfosten, Wald im Hintergrund.


Blick aus dem Auto auf eine kurvige Landstraße, Grasflächen, Bäume und die Sonne am Himmel.
 
H

haydee

Kommt darauf an. Hätte das Grundstück anhand der Fotos flacher eingeschätzt. Laut Plan sind es vom tiefsten bis zum Höchstenpunkt 6 m

Hang ist immer teurer als flaches Grundstück (Ausnahme man möchte auf einen brettebenen Grundstück einen Keller bauen, da kann es anders aussehen)

Spontan würde ich Carport/Garage vom Haus trennen.
Den Höhenunterschied Straße - Garage kannst du
durch eine Hofeinfahrt ausgleichen - muß allerdings dann ca. 8 m lang sein, sonst wird sie recht steil
oder kürzere Einfahrt Garage steht unten und der Rest wird durch einen Fußweg zum Haus ausgeglichen.

Ich würde im EG Technik, Eingang, Garderobe, WC, Allraum, Arbeitszimmer planen
Im OG Schlafen, Bad etc.
Keinen Keller warum auch. Die EG Mauer stützt Hangseitig den Berg ab und talseitig hast du Wohnraum.
So haben wir es auch. Baust du mit Keller hast du keinen direkten Zugang in den Garten
 
11ant

11ant

Wäre ein Keller zwingend notwendig?
Ja - bei immerhin annähernd 3m Höhenunterschied unter der Grundfläche klar.
Wären die Mehrkosten ohne Keller deutlich höher?
Ja, obschon der Keller hier den Höhenunterschied nicht allein füllt.
Höhenunterschied Grundstück zur Straße (parallellaufend ca. 1,0 - 1,3 m)
Vom Straßenrand (Einfahrt) zum Beginn des Hauses ?
Keinen Keller warum auch. Die EG Mauer stützt Hangseitig den Berg ab und talseitig hast du Wohnraum.
Ja, der Begriff Untergeschoss "trifft" hier den Keller besser.
Guckstdu da: https://www.hausbau-forum.de/threads/grundrissplanung-hanghaus-mit-5-Kinderzimmer.24670/ - die Hanglage dürfte in etwa passen.
 
H

haydee

Ich finde das Wort Keller bei der Hanglage nicht richtig. UG paßt auch nur bedingt, dort liegt der Eingang
 
M

mini_g!

Ergänzung:

Das Haus soll in der "gelben Umrandung" stehen .. Maße 10 x 12 m - 2 Geschosse
Bin ich der einzige der sich über die rote Markierung und die Hausposition wundert? Die Grundstück Grenzen sind doch rot gestrichelt und das Haus steht mitten auf zwei Flurstücken?

Viele Grüsse! mini
 
Zuletzt aktualisiert 08.11.2025
Im Forum Grundrissplanung / Grundstücksplanung gibt es 2526 Themen mit insgesamt 87665 Beiträgen


Ähnliche Themen zu Grundstück mit Hanglage - Neubaugebiet
Nr.ErgebnisBeiträge
1Grundstück vorbereiten für Bodenplatte bei leichter Hanglage 15
2Grundstück - Baufenster - Lage von Haus und Garage - Seite 244
3Grundriss Haus auf 2 Etagen mit leichter Hanglage - Seite 961
4Grundstück Hanglage, Höhenunterschied ca. 4 Meter 12
5Bauen ohne Keller - Carport, Garage? - Seite 318
6200m2 Einfamilienhaus für 4-5 Personen ohne Keller auf schmalem Grundstück 67
7Keller oder Grundstück begradigen? - Seite 243
8Einfamilienhaus bauen mit/ohne Keller bei kleinem Grundstück - Seite 765
9Einschätzung Grundstück - Hanglage 15
10Straße ca. 50cm über Grundstück - Auffüllen oder Keller 24
11Einfamilienhaus mit Keller in Hanglage - Meinungen (Dachform, allgemein) 26
12Grundriss-Review Einfamilienhaus mit Keller auf leichter Hanglage 35
13Bebauung Grundstück - Keller ja oder nein? 75
14Grundriss für Einfamilienhaus mit 200m² mit Einliegerwohnung 75 +Keller 140m² +Garage 56m² 59
15Kostenschätzung m2 Wohnfläche Hanghaus mit Keller und Garage - Seite 387
16Grundriss-Entwurf: Einfamilienhaus mit Keller; 560qm Grundstück - Seite 365
17Grundriss-Entwurf: Einfamilienhaus; mit Keller; 800qm Grundstück 10
18Planung optimale Anordnung Haus, Garage und Einfahrt 13
19Position Garage auf Grundstück, Vorgabe im Bebauungsplan 22
20Kleines Grundstück, kleine Einfahrt - Benötigter Platz zum Wenden 43

Oben