Grundrissvorschlag Einfamilienhaus 1,5-geschossig

4,40 Stern(e) 5 Votes
S

Schnuffibuff

Bebauungsplan/Einschränkungen
Größe des Grundstücks: 600 qm Bauland, 270 qm Grünfläche
Hang: nein
Grundflächenzahl: noch nicht bekannt
Geschossflächenzahl: noch nicht bekannt
Baufenster, Baulinie und –grenze: s. Anlage Grundstück (Baufenster 20x17 m)
Randbebauung: Garage
Anzahl Stellplatz: 2 in Garage
Geschossigkeit: 1,5
Dachform: Satteldach

Anforderungen der Bauherren
Stilrichtung, Dachform, Gebäudetyp: Familienhaus mit Satteldach
Keller, Geschosse: 1,5 ohne Keller
Anzahl der Personen, Alter: 2 Erwachsene, geplant 2 Kinder
Raumbedarf im EG, OG: im EG kleines Gästezimmer, das im Alter (oder bei unerwartetem Familienzuwachs) auch als Schlafzimmer dienen soll
Büro: Familiennutzung oder Homeoffice? S. o.
Schlafgäste pro Jahr: mind. Einmal im Monat
offene Küche, Kochinsel: Ja, siehe Grundriss
Anzahl Essplätze: 6 bzw. auf 10 ausziehbar
Kamin: nein
Musik/Stereowand: siehe Grundriss
Balkon, Dachterrasse: nein
Garage, Carport: ja, Garage 6x9 m
Nutzgarten, Treibhaus: nein

Hausentwurf
Von wem stammt die Planung:
-Planer eines Bauunternehmens hat unsere Ideen umgesetzt
Was gefällt besonders? Warum? Die Gaube im DG, das Bad im DG und die Ankleide (Ist genau auf Pax ausgerichtet…)
Was gefällt nicht? Warum? Eventuell ist die Küche zu dunkel, da sie kein direktes Fenster hat!?
Preisschätzung lt Architekt/Planer: 250.000 €, bereits bemustert

Wenn Ihr verzichten müsst, auf welche Details/Ausbauten
-könnt Ihr verzichten: wird sind noch völlig flexibel!
-könnt Ihr nicht verzichten:

Warum ist der Entwurf so geworden, wie er jetzt ist? ZB
Ein Gemisch aus vielen Beispielen aus div. Magazinen...



Hallo liebes Forum,

ich bin schon sehr lange stiller Mitleser und möchte nun auch mal unseren Entwurf für ein Einfamilienhaus vorstellen.

Das Grundstück ist bereits reserviert, aber noch nicht erschlossen, daher sind mir noch nicht alle erforderlichen Angaben bekannt, wir haben aber schon mal munter probiert… Es handelt sich um die Parzelle Nr. 21 in der Anlage Grundstück.

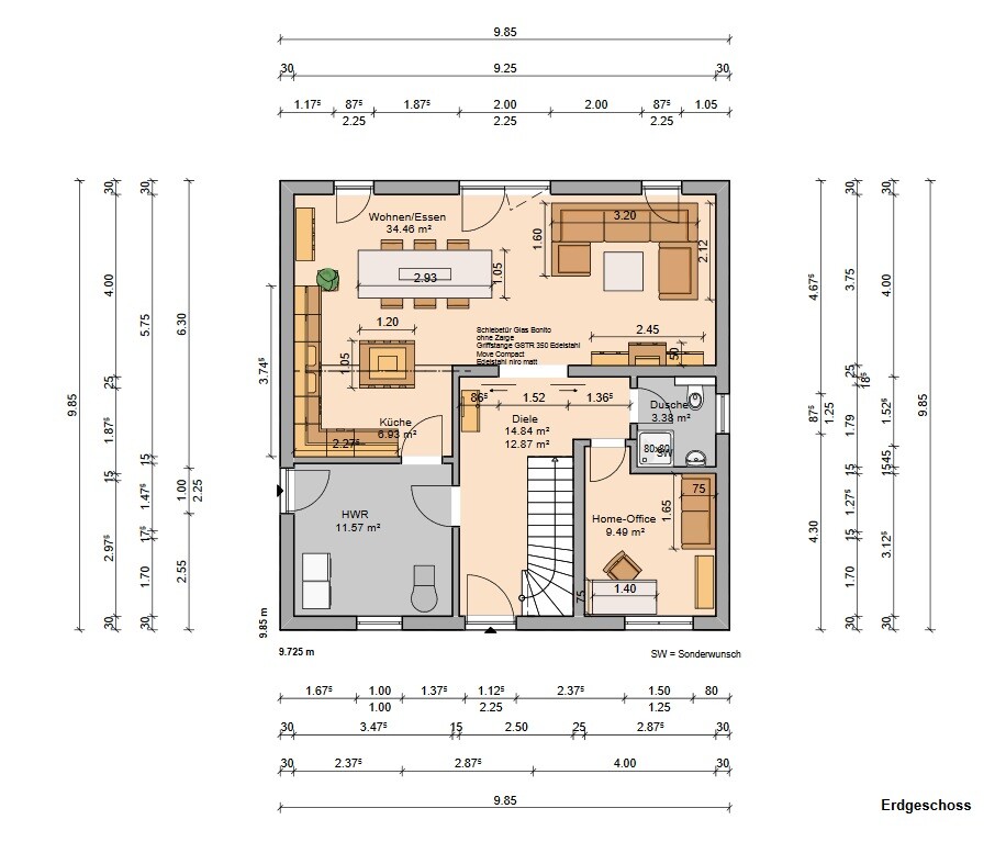
Ich habe dabei bereits viele eurer Ratschläge hier im Forum beherzigt. So ist die Ankleide mittlerweile vom Flur aus begehbar, damit man den Schlafenden nicht stört und auch die Zimmer noch flexibel getauscht werden könnten, ohne dass dann ständig in ein Kinderzimmer gerannt werden müsste. Die Küche haben wir nicht direkt an die Terrasse gelegt, aber der Weg ist durch den Essbereich sehr kurz gehalten (in der Zeichnung ist der Esstisch komplett ausgezogen, normal ist er nur 2 m lang). Da wir im Flur nicht viel Platz für die Garderobe haben (außer unter der Treppe), ist die Ankleide auch so groß, um dort für mehr als 2 Personen Sachen unterzubekommen. Der Spitzboden ist begehbar und bietet auch etwas Platz.

Bei der Zeichnung fehlt komplett die Garage, diese soll 6x9 m werden und links an das Haus anschließen mit Zugang zum Hauswirtschaftsraum. Für die Gartengeräte etc. ist die Garage nach hinten so groß, dort ist also 6x3 m Platz. Der Hauswirtschaftsraum soll auch gleichzeitig als kleine Speise- /Getränkekammer dienen, daher ist er recht großzügig und hat einen Zugang zur Küche.

Die meisten der eingezeichneten Möbel sind bereits vorhanden oder so geplant.

So, dann bin ich auf eure Kritik gespannt und danke schon mal für eure Beiträge!

Noch eine Ergänzung: Ich habe leider keinen Nordpfeil in den Zeichnungen, das Haus soll aber 3 m von der Grundstücksgrenze zur Straße hin gebaut werden, entlang des Baufensters, also befindet sich der Eingang in nordöstlicher Richtung. Versteht man das? ops:

Weißes Einfamilienhaus mit dunklem Satteldach, drei Dachfenstern, Haustür, Wald im Hintergrund.


Modernes weißes Einfamilienhaus mit dunklem Ziegeldach, großen Fenstern, auf grünem Rasen.


Kartenansicht eines Baugebiets mit Parzellen, Straßen und grünen Bäumen


Grundriss Erdgeschoss: Wohnen/Essen, Küche, HWR, Diele, Dusche, Home-Office.


Grundriss Obergeschoss: Flur, Bad, 3 Kinderzimmer, Elternschlafzimmer, Ankleide, Treppe.


Schnitt durch zweistöckiges Haus mit Treppe, DG und EG, Dachkonstruktion
 
Zuletzt bearbeitet:
T

Tego12

Nur ganz kurz, muss gleich weg...:

Was mir persönlich überhaupt nicht gefällt: Freistehendes Einfamilienhaus, aber der Küchen, Wohne- und Essraum hat den Charakter eines Reihenhauses.. Fenster nur auf der Stirnseite, nichts links und rechts.
Gefühlt ist der Küchen-/Essbereich auch recht eng. Eine quadratische Insel nur für das Kochfeld ist hochgradig unpraktisch (du kannst nichts vernünftig stellen, Kochen nimmt in Relation zum Vorbereiten nur nen winzigen Teil der Zeit in Anspruch, ...)
 
J

j.bautsch

sehe das wie mein Vorredner. die Insel wird so definitiv nichts, da spritzt dir beim anbraten das fett zu drei Seiten und jeder der die Küche betritt läuft Gefahr auszurutschen.
der Hauswirtschaftsraum ist durch die 3 Türen wirklich nur sehr schwer zu nutzen, ich würde hier auf Platz hinter Türen achten um schränke oder Regale stellen zu können.
zudem würde ich das Schlafzimmer und das untere Kinderzimmer tauschen um so beide Kinderzimmer nebeneinander zu haben. erstens hat man dann eine akustische Trennung und zweitens haben dann beide Kinder helle Zimmer nachmittags. im Schlafzimmer brauche ich das nicht, da wird geschlafen
 
11ant

11ant

Auf den ersten Blick hätte ich gesagt, Dein bisheriges Mitlesen hat sich gelohnt, es sieht schon recht gelungen aus - abgesehen von dem gegrätschten Quergiebel.

Aber nun denke ich doch eher: schade, nach der Diskussion wird alles zerrupft sein.

Die fast haustiefe Garage müßte auf die andere Seite - die Konsequenz eines ventilatorentlüfteten
Gäste-WC´s scheint mir weit erträglicher als für den - m.E. überschätzten - Garage-Hauswirtschaftsraum-Durchgang faktisch mit einer fensterlosen Küche zu leben.

Bei der Neuplanung würde ich die Fensterformate etwas gleichmäßiger machen.

Mit Riesengarage könnte der Hauswirtschaftsraum etwas kleiner ausfallen und mit dem Gäste-WC (wozu braucht es da eine Dusche ?) auf die selbe Seite.
 
Zuletzt bearbeitet:
Nordlys

Nordlys

Kochinsel weg. Dusche unten weg. Fenster über Spüle, Küche kleiner. Office größer. Ankleide kleiner, ist eh ein dunkles Loch, die nenn man lieber Staubsaugerparkplatz, Schlafzimmer größer. Fertig. Karsten
 
11ant

11ant

Ich habe dabei bereits viele eurer Ratschläge hier im Forum beherzigt. So ist die Ankleide mittlerweile vom Flur aus begehbar, damit man den Schlafenden nicht stört und auch die Zimmer noch flexibel getauscht werden könnten, ohne dass dann ständig in ein Kinderzimmer gerannt werden müsste.
Nachtrag: hierfür erst mal ein Lob, insoweit bist Du ja doch eine gelehrige Mitleserin. Vielleicht kriegst Du deswegen ein bißchen leiser dafür geschimpft, daß man hier nichts von einer Garderobe sieht und so weiter
 
Zuletzt aktualisiert 11.11.2025
Im Forum Grundrissplanung / Grundstücksplanung gibt es 2530 Themen mit insgesamt 87762 Beiträgen


Ähnliche Themen zu Grundrissvorschlag Einfamilienhaus 1,5-geschossig
Nr.ErgebnisBeiträge
1Fenster im Gäste-WC/Gästezimmer trotz Garage möglich? - Seite 333
2Grundrissplanung für schmales Grundstück, 2. Versuch. 14
3Grundriss 140 m2 Einfamilienhaus mit Garage - Hausausrichtung ok? 18
4Grundstück - Baufenster - Lage von Haus und Garage - Seite 244
5Planung Gäste-WC im Neubau - Wie groß muss es sein? (DIN?) - Seite 4107
6Grundriss 2-vollgeschossiges Einfamilienhaus ca. 160 m² Wohnfläche 25
7Fragen zur Planung eines Einfamilienhaus in Hamburg - Mehrkosten durch Keller 11
8Grundriss Neubau Satteldachhaus 145 qm, 9 x 11,5 m, kurz vor Bauantrag 32
9Neubau Einfamilienhaus 160-170qm, 3 Kinderzimmer 39
10Doppelhaus mit ungleichen Hälften = verschiedene Grundrisse 130
11Grundriss Stadtvilla 160qm - Bitte um Tipps! - Seite 4284
12Einfamilienhaus–Neubauvorhaben von Tag 1 an - Und die Planung beginnt - Seite 46313
13Grundstücksplanung / Grundrissplanung - Seite 2154
14Grundriss für 137m^2 Bungalow Optimierung - Seite 240
15Neubau 200qm + Keller mit Mansarddach 18
16Grundriss-Entwurf für Haus am Hang in zweiter Reihe 20
17Position Garage auf Grundstück, Vorgabe im Bebauungsplan 22
18Grundriss mit Garage auf Grundstück realisierbar? 29
19 2 Vollgeschosse, Durchgang Garage, Hauswirtschaftsraum unter Treppe 25
20Kinderzimmer und Schlafzimmer - Welche Größe ist zu empfehlen? - Seite 256

Oben