B
Blockhouse
Hallo liebes Forum,
wir planen einen Hausbau für ein Grundstück in Berlin. Dieses ist 454 qm groß, ca. 18,2 Meter breit und 25 Meter lang. Dabei handelt es sich um ein Eckgrundstück.
Wir dürfen 35 % der Fläche bebauen und 20% des Grundstücks darf die Bodenplatte ausmachen (ohne Terrasse), bedeutet also ca. 85 - 90 qm für das Haus.
Darüber hinaus müssen wir 5 Meter Abstand zur Straße einhalten und und 3 Meter Abstand zu den beiden Nachbargrundstücken.
Darüber hinaus dürfen wir 2 Vollgeschosse und den Dachboden ausbauen.
Den Eingang planen wir auf der Nordwestseite. Dort soll auch direkt das Haus platziert werden. Das Grundstück bzw. der Garten ist somit Richtung Süden / Südosten ausgerichtet.
Baumbestand ist lediglich an der Südgrenze des Grundstücks, 2 alte große Nadelbäume, die wir gerne behalten.
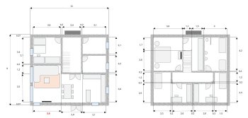
Aktuell sind wir unsicher wie wir das Haus platzieren. Somit haben wir 2 Grundrissvarianten.
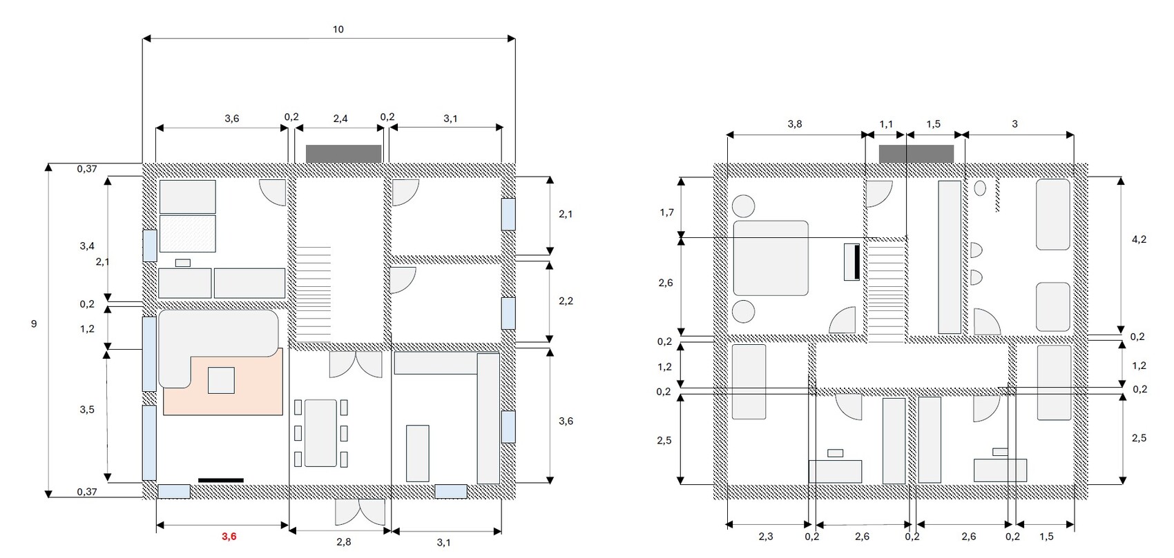
Variante 1: Die lange Hausseite (10 Meter) entlang der 25 Meter des Grundstücks
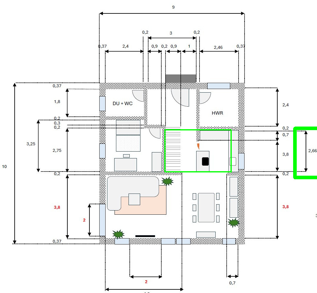
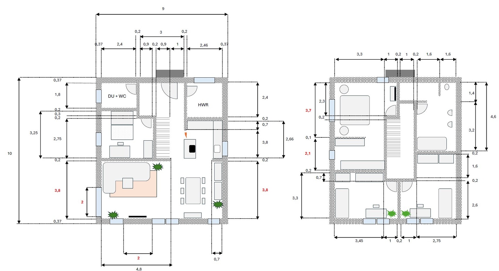
Variante 2: die lange Hausseite (10 Meter) entlang der 18 Meter des Grundstücks
Beide Varianten haben Vor- und Nachteile.
Variante 1: Hier gefällt uns das 1. OG deutlich besser, da die Zimmer länger/größer wirken. Gerade das Schlaf- & Ankleidezimmer sowie das Bad. Nachteilig ist aber, dass wir uns so etwas mehr von der Gartenfläche nehmen.
Variante 2: Ist genau umgedreht. Hier gefällt uns, dass wir mehr vom Garten haben. Finden aber das 1.OG (gibt wiederum 2 Varianten) noch nicht optimal. Gerade Ankleide und Bad gefällt uns nicht
Grundsätzlich spielen wir noch mit dem Gedanken den Dachboden auszubauen und hier nochmal rund 38 qm zu gewinnen. Entweder als zusätzlichen Raum oder um das Arbeitszimmer aus dem EG dorthin zu verlagern.
Wir kommen aus unserem Gedankenkarusell einfach nicht raus und wollten deshalb hier in dem Forum um Meinungen und Ideen fragen. Wir bauen das erste Mal und haben hier einfach keine Erfahrungen.
Danke euch vorab für eure Ideen, Kommentare und Ratschläge! Viele Grüße
wir planen einen Hausbau für ein Grundstück in Berlin. Dieses ist 454 qm groß, ca. 18,2 Meter breit und 25 Meter lang. Dabei handelt es sich um ein Eckgrundstück.
Wir dürfen 35 % der Fläche bebauen und 20% des Grundstücks darf die Bodenplatte ausmachen (ohne Terrasse), bedeutet also ca. 85 - 90 qm für das Haus.
Darüber hinaus müssen wir 5 Meter Abstand zur Straße einhalten und und 3 Meter Abstand zu den beiden Nachbargrundstücken.
Darüber hinaus dürfen wir 2 Vollgeschosse und den Dachboden ausbauen.
Den Eingang planen wir auf der Nordwestseite. Dort soll auch direkt das Haus platziert werden. Das Grundstück bzw. der Garten ist somit Richtung Süden / Südosten ausgerichtet.
Baumbestand ist lediglich an der Südgrenze des Grundstücks, 2 alte große Nadelbäume, die wir gerne behalten.
Aktuell sind wir unsicher wie wir das Haus platzieren. Somit haben wir 2 Grundrissvarianten.
Variante 1: Die lange Hausseite (10 Meter) entlang der 25 Meter des Grundstücks
Variante 2: die lange Hausseite (10 Meter) entlang der 18 Meter des Grundstücks
Beide Varianten haben Vor- und Nachteile.
Variante 1: Hier gefällt uns das 1. OG deutlich besser, da die Zimmer länger/größer wirken. Gerade das Schlaf- & Ankleidezimmer sowie das Bad. Nachteilig ist aber, dass wir uns so etwas mehr von der Gartenfläche nehmen.
Variante 2: Ist genau umgedreht. Hier gefällt uns, dass wir mehr vom Garten haben. Finden aber das 1.OG (gibt wiederum 2 Varianten) noch nicht optimal. Gerade Ankleide und Bad gefällt uns nicht
Grundsätzlich spielen wir noch mit dem Gedanken den Dachboden auszubauen und hier nochmal rund 38 qm zu gewinnen. Entweder als zusätzlichen Raum oder um das Arbeitszimmer aus dem EG dorthin zu verlagern.
Wir kommen aus unserem Gedankenkarusell einfach nicht raus und wollten deshalb hier in dem Forum um Meinungen und Ideen fragen. Wir bauen das erste Mal und haben hier einfach keine Erfahrungen.
Danke euch vorab für eure Ideen, Kommentare und Ratschläge! Viele Grüße