Größe des Grundstücks 492qm
Hang ja
Grundflächenzahl ?
Geschossflächenzahl ?
Baufenster, Baulinie und -grenze ?
Randbebauung ?
Anzahl Stellplatz 2
Geschossigkeit 2
Dachform Zeltdach 25 Grad
Stilrichtung Stadtvilla modern
Ausrichtung Hauseingang Norden
Maximale Höhen/Begrenzungen
weitere Vorgaben ?
Anforderungen der Bauherren
Stilrichtung, Dachform, Gebäudetyp
Moderne Stadtvilla Zeltdach 25 Grad
Keller, Geschosse 2 Vollgeschossen ohne Keller
Anzahl der Personen 4
offene Küche, Kochinsel
Anzahl 8-10
Garage
Hausentwurf
Von wem stammt die Planung?
-Architekt
Was gefällt besonders? Warum?
Großer Wohnbereich, Elternbad
Was gefällt nicht? Warum?
Hauswirtschaftsraum recht klein und Elternschlafzimmer klein, Kinderzimmer etwas zu groß
Warum ist der Entwurf so geworden, wie er jetzt ist?
Entsprechende Wünsche wurden vom Architekten umgesetzt
Was macht ihn in Euren Augen besonders gut oder schlecht?
Gut: Großer Wohnbereich
Ich bin mir unsicher bzgl. der halbhohen Fenstergrößen und Aufschlagsrichtung der Türen
Was ist die wichtigste/grundlegende Frage zum Grundriss in 130 Zeichen zusammengefasst?
Was meint ihr zu den Grundrissen?



Hang ja
Grundflächenzahl ?
Geschossflächenzahl ?
Baufenster, Baulinie und -grenze ?
Randbebauung ?
Anzahl Stellplatz 2
Geschossigkeit 2
Dachform Zeltdach 25 Grad
Stilrichtung Stadtvilla modern
Ausrichtung Hauseingang Norden
Maximale Höhen/Begrenzungen
weitere Vorgaben ?
Anforderungen der Bauherren
Stilrichtung, Dachform, Gebäudetyp
Moderne Stadtvilla Zeltdach 25 Grad
Keller, Geschosse 2 Vollgeschossen ohne Keller
Anzahl der Personen 4
offene Küche, Kochinsel
Anzahl 8-10
Garage
Hausentwurf
Von wem stammt die Planung?
-Architekt
Was gefällt besonders? Warum?
Großer Wohnbereich, Elternbad
Was gefällt nicht? Warum?
Hauswirtschaftsraum recht klein und Elternschlafzimmer klein, Kinderzimmer etwas zu groß
Warum ist der Entwurf so geworden, wie er jetzt ist?
Entsprechende Wünsche wurden vom Architekten umgesetzt
Was macht ihn in Euren Augen besonders gut oder schlecht?
Gut: Großer Wohnbereich
Ich bin mir unsicher bzgl. der halbhohen Fenstergrößen und Aufschlagsrichtung der Türen
Was ist die wichtigste/grundlegende Frage zum Grundriss in 130 Zeichen zusammengefasst?
- An welchen Stellen kann man noch optimieren? Würdet ihr andere Fenstermaße oder Brüstungshöhen empfehlen?
- Was findet ihr schlecht/würdet anders machen?
- Im Ankleideraum kommt noch eine Trennwand hin. Dann könnte man theoretisch vom Bett aus auch TV schauen. Ich denke an eine Leichtbauwand. Ich plane ein 211cm Pax-Kombi in die Ankleide reinzustellen. Die Ankleide ist mit 218cm Breite im Rohmaß geplant. Meint ihr die 218 reichen für den Pax, wenn die Wände noch verputzt werden oder wie breit sollten die Rohbaumaße besser sein?
- Ist der Flur im EG zu schmal?
- Würdet ihr aufschütten? Haus wäre 40cm unter Straßenniveau. Bin Terrasse in den Garten wären es dann 1m. Man könnte nur für das Haus aufschütten. Dann wären es von der Terrasse in den Garten ca. 1,6 m Unterschied. Ich kenne bislang niemanden der unter Straßenniveau im Haus lebt. Garten aufschütten ginge wohl ohne Genehmigungen nicht. Die würden uns die betroffenen Nachbarn sicher auch nicht geben. Rechts und links vom Haus zu den Nachbarn hin darf man wohl nur bis zu gewissen Grenzen aufschütten. Bin da etwas überfordert mit der Entscheidung.
- Habt ihr eine Idee wie man das Sofa anders stellen könnte und den TV sinnvoll aufstellen könnte? Mein Mann will kein Fenster mit dem Sofarücken zustellen. Daran das Sofa mitten in den Raum zu stellen muss ich mich noch gewöhnen
- Küchengröße ausreichend für schöne Küche mit Kochinsel?
Was meint ihr zu den Grundrissen?
Simon-189 schrieb:
Der 36,5er Wand selbst ist das relativ egal, ob da eine Markise dran hängt oder nicht. Das wichtige ist, dass ausreichend (Klebe-)Dübel vorgesehen werden. Das sollte aber dann der Markisenhersteller mit berechnen. Denn die wissen, was die Markise an Eigenlast hat und groß die weiteren auftretenden Kräfte sind.Naja, ganz so einfach ist die Sache auch wieder nicht.
Es gibt durchaus Firmen, welche an ne T8 oder T9 Wand keine Markisen mehr montieren. Selbst so erlebt bei der Angebotseinholung für ne Markilux-Markise.
Wir hatten Glück, nen Betonüberzug über der Decke beim Fensterelement zu haben. Der hat zwar außen 8cm PUR Dämmung, daran konnte die Markise aber Lastfrei montiert werden.
Yaso2.0 schrieb:
@Shiny86 ich hab da mal ne Frage, in deinen Grundrissen sehe ich, dass ihr 36,5 er Außenwände habt, kannst du mir dazu mal euren Wandaufbau schreiben? Baut ihr jetzt eigentlich kfw Standard?Wir bauen nach Energieeinsparverordnung. Kann man eigentlich trotzdem einen KFW Standard zb durch Kontrollierte-Wohnraumlüftung erreichen oder erreicht man die KfW Standards wirklich nur durch gezielte Planung?
Der wandaufbau ist wie @11ant vermutet hat mit einer monolithischen Wand mit 36,5cm Porenbetonplansteinen in Dünnbettmörtel gemauert.
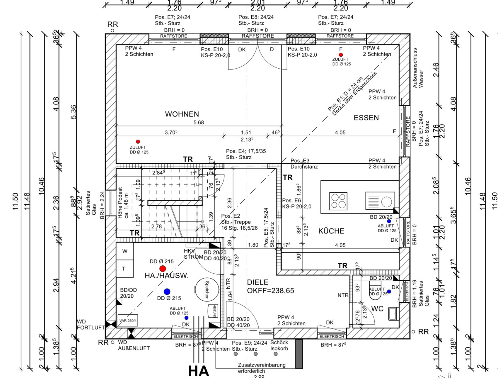
Könnt ihr mal einen Blick auf die podesttreppe werfen? Habe Angst da was zu übersehen. Wisst ihr was die 36,5cm zu bedeuten haben und wieso die ersten paar Stufen ungleichmäßig eingezeichnet sind?
Ich weiß nicht welche Infos man da rausreden kann. Ab Podest bis zum OG möchte ich das eine halbhohe Mauer schräg mitläuft.
matte1987 schrieb:
Kannst du mal den letzten Stand verlinken? Wenn du beim Beitrag mit den Plänen oben rechts auf das Teilen-Symbol gehst, bekommst du nen Link, der genau zu dem Beitrag führt.Ich hab meinen Beitrag von gerade editiert. Da siehst du nun die Treppe. Die aktuellen Pläne sind aber noch nicht in diesem Thread zu finden. Hab die hier angehängt. Wenn was auffällt bitte mitteilen
S
Simon-18915.10.20 13:51Shiny86 schrieb:
Der wandaufbau ist wie @11ant vermutet hat mit einer monolithischen Wand mit 36,5cm Porenbetonplansteinen in Dünnbettmörtel gemauert. Huch, ich bin von Ziegeln T8 oder T9 ausgegangen. Bei Porenbeton wird's tatsächlich kniffliger mit der Markise. Daher eher an die Betondecke hängen.
Shiny86 schrieb:
Könnt ihr mal einen Blick auf die podesttreppe werfen? Habe Angst da was zu übersehen. Wisst ihr was die 36,5cm zu bedeuten haben und wieso die ersten paar Stufen ungleichmäßig eingezeichnet sind?Die 36,5cm sollten wohl einmal ein Versatz in der Betondeckenaußenkante sein. Macht für mich bei einer Podesttreppe aber tatsächlich kaum Sinn. Eventuell ein Überbleibsel von einem alten Planstand?
Shiny86 schrieb:
Wisst ihr was die 36,5cm zu bedeuten haben und wieso die ersten paar Stufen ungleichmäßig eingezeichnet sind?
Ich weiß nicht welche Infos man da rausreden kann. Ab Podest bis zum OG möchte ich das eine halbhohe Mauer schräg mitläuft.Mich dünkt, hier ist die Linie zwischen der ersten und zweiten Stufe vergessen bzw. irrtümlich kongruent mit der Kante des Treppenlochs gezeichnet worden, und die 36,5 cm interpretiere ich hier als "Versatz" zwischen der Treppenlochkante über dem Austritt und dem Knick von der "Dachschräge" der Treppenunterseite zur Geschossdecke. Die Zeichnung hat den Anschein, Dein Wunsch von der gemauerten "Handlaufmauer" (vermutlich möchtest Du die ähnlich wie bei @matte1987 ?) werde erfüllt.Simon-189 schrieb:
Huch, ich bin von Ziegeln T8 oder T9 ausgegangen. Bei Porenbeton wird's tatsächlich kniffliger mit der Markise. Daher eher an die Betondecke hängen.Daher hatte ich ja den Gedanken, ob es wohl für derlei auch "Isokörbe" gebe.https://www.instagram.com/11antgmxde/
https://www.linkedin.com/company/bauen-jetzt/
Ähnliche Themen