Hallo zusammen,
unser Rohbau naht sich dem Ende zu, haben noch die Möglichkeit, das Giebelfentster umzuplanen, es kostet ca. 1100€ (das erste Bild), da es eine Sonderform ist. Der Dachboden soll in Zukunft ausgebaut werden. Können uns irgendwie momentan nicht entscheiden, die Variante 1 scheint ein wenig zu teuer zu sein (wegen der Sonderform), auf der anderen Seite wechselt man in Zukunft nicht so oft seine Fenster
Was sagt ihr zu den Vorschläge bzw. könnte ihr noch weitere uns vorschlagen ?
Danke Euch !




unser Rohbau naht sich dem Ende zu, haben noch die Möglichkeit, das Giebelfentster umzuplanen, es kostet ca. 1100€ (das erste Bild), da es eine Sonderform ist. Der Dachboden soll in Zukunft ausgebaut werden. Können uns irgendwie momentan nicht entscheiden, die Variante 1 scheint ein wenig zu teuer zu sein (wegen der Sonderform), auf der anderen Seite wechselt man in Zukunft nicht so oft seine Fenster
Was sagt ihr zu den Vorschläge bzw. könnte ihr noch weitere uns vorschlagen ?
Danke Euch !
Hallo zusammen,
die Änderungen sind nun abgeschlossen.
Danke Euch !
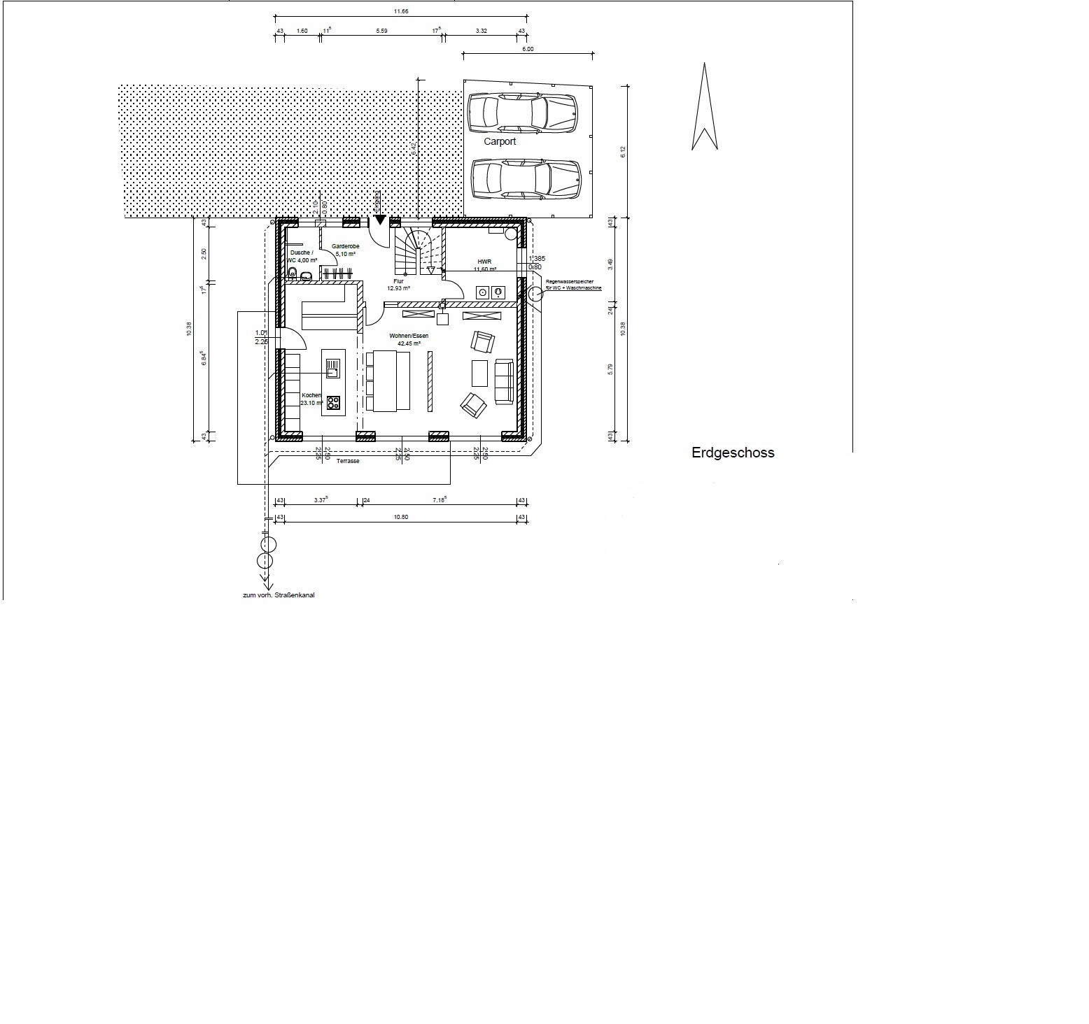
Mein Fensterbauer hatte mir ein Panoramafenster im Wohnzimmer vorgeschlagen, hat irgendwie was.
Glaube, dass das Fenster nie geöffnet werden muss? Terrasse soll über das Esszimmer- oder Küchenfenster begehbar sein.
Würde die Ansicht darunter leiden bzw. was sagt ihr dazu ?

die Änderungen sind nun abgeschlossen.
Danke Euch !
Mein Fensterbauer hatte mir ein Panoramafenster im Wohnzimmer vorgeschlagen, hat irgendwie was.
Glaube, dass das Fenster nie geöffnet werden muss? Terrasse soll über das Esszimmer- oder Küchenfenster begehbar sein.
Würde die Ansicht darunter leiden bzw. was sagt ihr dazu ?
Ähnliche Themen