ᐅ Fensterplanung DG - Giebelfenster größer oder Dachflächenfenster
Erstellt am: 07.07.21 13:35
K
kgeisler
Hallo zusammen,
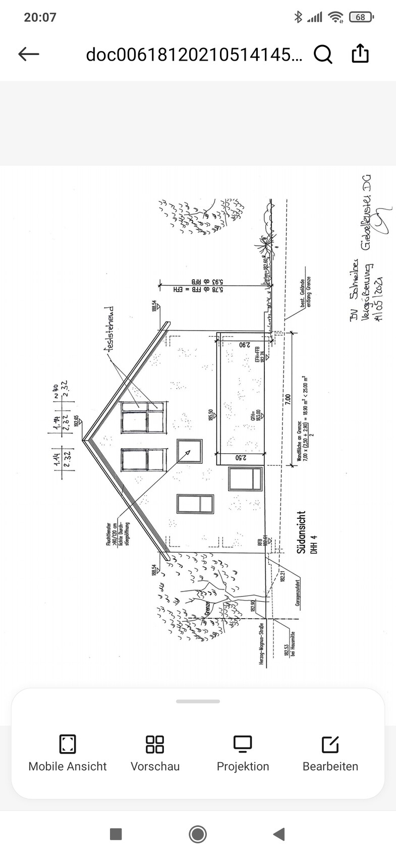
wir sind gerade in der letzten Planung unserer Doppelhaushälfte und haben im DG ein recht großes Fenster mit Schräge geplant.
Dort ist im Standard ein Giebelfenster mit 1,54x1,14m geplant.

Das erschien uns für den Raum etwas zu klein, daher haben wir nun 2 Optionen:
Option 1: Ein Dachflächenfenster mit 0,94x1,18m (Velux GTU) für 1575 EUR
oder
Option 2: Erstmal nur Vergrößerung des Giebelfensters um 40cm für 803 EUR

Die Trav-Verglasung würde natürlich volle 40cm größer, im oberen Teil wären aber nur 22cm sichtbarer Bereich durch das, was durch Rahmen etc. ja nicht größer wird.
Was würdet ihr tun?
Das Zimmer wird ein Schlafzimmer/Kinderzimmer und ich bin nicht der größte Fan von Doppelflügelfenster. Außerdem soll auf dieser Dachseite Photovoltaik entstehen, so dass das Doppelflügelfenster uns natürlich Platz hierfür raubt.
Was würdet ihr an unserer Stelle tun? Lohnt sich die Vergrößerung des Giebelfensters oder doch lieber Doppelflügelfenster?
Danke euch für eure Einschätzung!
Viele Grüße
wir sind gerade in der letzten Planung unserer Doppelhaushälfte und haben im DG ein recht großes Fenster mit Schräge geplant.
Dort ist im Standard ein Giebelfenster mit 1,54x1,14m geplant.
Das erschien uns für den Raum etwas zu klein, daher haben wir nun 2 Optionen:
Option 1: Ein Dachflächenfenster mit 0,94x1,18m (Velux GTU) für 1575 EUR
oder
Option 2: Erstmal nur Vergrößerung des Giebelfensters um 40cm für 803 EUR
Die Trav-Verglasung würde natürlich volle 40cm größer, im oberen Teil wären aber nur 22cm sichtbarer Bereich durch das, was durch Rahmen etc. ja nicht größer wird.
Was würdet ihr tun?
Das Zimmer wird ein Schlafzimmer/Kinderzimmer und ich bin nicht der größte Fan von Doppelflügelfenster. Außerdem soll auf dieser Dachseite Photovoltaik entstehen, so dass das Doppelflügelfenster uns natürlich Platz hierfür raubt.
Was würdet ihr an unserer Stelle tun? Lohnt sich die Vergrößerung des Giebelfensters oder doch lieber Doppelflügelfenster?
Danke euch für eure Einschätzung!
Viele Grüße
kgeisler schrieb:
Wir bauen nach kfw55 und mit Lüftungsanlage. Aber der Tipp mit einflügelig ist wirklich gut,Auf wen antwortest Du? Ab 1 Meter Breite geht man auf 2-flüglig. kgeisler schrieb:
Aber bei 2 flügelig verliere ich doch noch mehr Fensterfläche, da die Flügel ja Rahmenplatz wegnehmen? Das ist eigentlich der Grund, warum das Fenster so vorgeschlagen wurde.Fragen wir mal anders herum: wie sieht denn die Südfassade sonst so aus?Ein Doppelflügelfenster lässt sich heutzutage top verschatten, optional auch automatisiert. Ein Doppelflügelfenster üblicher Größe inkl. motorisierter Außenverschattung kostet beim Neubau ca. 3K, nachträglich eher 4.5 - 5K. Wenn man die Laibungen schräg ausbilden kann kommt wahnsinnig schönes Licht rein. Nur wenns finanziell kneift eventuell weglassen, sonst rein damit.
Und was ist schon laut? Auf die Scheibe prasselnder Regen kann auch beruhigend sein (wie z.B. Wellenrauschen), man muss das Geräusch nur mit was positivem assoziieren (mache ich mit dem Babygeschrei aus der Wohnung unter mir so, ich kriege so nun immer gute Laune wenn das Baby schreit 😀 )
Und was ist schon laut? Auf die Scheibe prasselnder Regen kann auch beruhigend sein (wie z.B. Wellenrauschen), man muss das Geräusch nur mit was positivem assoziieren (mache ich mit dem Babygeschrei aus der Wohnung unter mir so, ich kriege so nun immer gute Laune wenn das Baby schreit 😀 )
Danke euch für die kontroverse Diskussion!
Und wie sieht es aus mit dem Aspekt, dass das Fenster Solarfläche wegnimmt? Ich kann das noch nicht so einschätzen, da wir noch keine Angebote vorliegen haben und nicht wissen, wie die Fläche genutzt wird. Wir würden aber gerne volle 10kw produzieren können.
Und wie sieht es aus mit dem Aspekt, dass das Fenster Solarfläche wegnimmt? Ich kann das noch nicht so einschätzen, da wir noch keine Angebote vorliegen haben und nicht wissen, wie die Fläche genutzt wird. Wir würden aber gerne volle 10kw produzieren können.
ypg schrieb:
Auf wen antwortest Du? Ab 1 Meter Breite geht man auf 2-flüglig.
Fragen wir mal anders herum: wie sieht denn die Südfassade sonst so aus?Die Südfassade mit dem verbreitertem Fenster.