Hallo zusammen,
wir haben eins von drei Grundstücken gekauft, die aus einem größeren Grundstück rausgeteilt und noch erschlossen werden müssen. Zugang erfolgt über eine Privatstraße und alle 3 Eigentümer teilen sich die Verkehrsfläche zu je einem Drittel. Das Grundstück liegt für uns sehr gut angebunden Zentral in Bonn und ist vielleicht eher etwas größer als wir es gebraucht hätten, aber es ist auch nicht so als gäbe es sonst ständig freie Grundstück in ähnlicher Lage.
Da es vorher längeren Rechtsstreit zwischen dem Verkäufer und den Anwohner gab, können wir nur etwas eingeschränkt mit Staffelgeschoss bauen. Dafür war das Grundstück wahrscheinlich nur für Privatpersonen interessant. Einliegerwohnung wäre nicht möglich, wollen wir auch nicht.
Die Planung lief bisher auf der grünen Wiese, ohne Gedanken an Kosten oder praktische Gesichtspunkte. Zumindest von unserer Seite.
Der Architekt zeichnet wohl gerne, aber kann ich eigentlich in der Phase verstehen und hat etwas künstlerisches.
Wir sind generell offen für alle Vorschläge und Idee, was man anders machen sollte. Besonders auch wo könnte man leicht Kosten sparen könnte.
Unser nächster Schritte wäre ein Architektenvertrag Leistungsphase 1-5 plus GU/GÜ.
Bebauungsplan/Einschränkungen
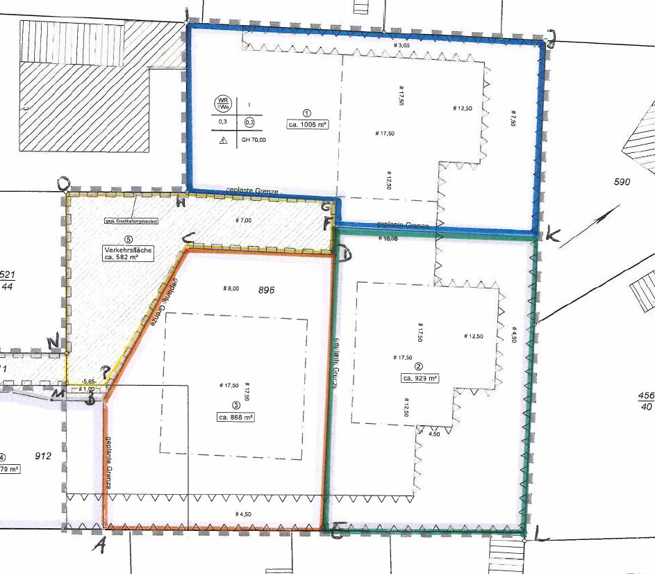
Größe des Grundstücks: >800qm, kein Hang, Baufenster etc. Siehe Plan.
Anzahl Stellplatz: 1 auf Verkehrsfläche und 1 Garage
Geschossigkeit: Nur 1 Vollgeschoss plus Staffelgeschoss
Dachform: Flachdach; Stilrichtung: Eher Bauhaus
Ausrichtung: Hausfront nach Süd-West
Maximale Höhen/Begrenzungen: 7-8m
Anforderungen der Bauherren
Wir haben eigentlich keine Anforderungen an den Stiel. Flachdach ergibt sich etwas wegen Staffeldach und der Höhenbeschränkung, die wohl kein Satteldach erlaubt.
Keller wollen wir mit Abgrabung und zwei Tageslichtzimmern (Idee kam eher vom Architekten). Aktuell sind wir zu dritt, es könnten auch mal 4 werden. Anfang 30 und Baby.
Hatten mit gut über 100qm unten geplant und oben dann 75% davon. Aktuell sind es gut 230qm EG/OG plus Terrassen etc. und Keller
Büro: Ab und zu, aber nicht so wichtig.
Schlafgäste pro Jahr: ka. aber Gästezimmer ist eingeplant
offene Küche, Kochinsel: Wir wollen auf jeden Fall extra Raum für die Küche und finden den Vorschlag mit der verlängerten Insel gut
Anzahl Essplätze: 4 in der Küche, eher 8 im Esszimmer
Kamin: Nicht so wichtig, eher Nein.
Musik/Stereowand: Um den TV herum 5.1. System
Balkon, Dachterrasse. Terrasse auf jeden Fall, Balkon über Küche ergibt sich aus dem Staffelgeschoss
Garage, Carport: Garage ist jetzt mit b=4,5m nicht so Standard und dadurch wahrscheinlich teurer.
Hausentwurf vom Architekt
Was gefällt besonders? Warum? Nutzung der Sonnenseite ist gut, und sonst sind alle unsere Wünsche berücksichtigt.
OG 3 Schlafzimmer 2 Bäder. Für Eltern en suite Bad und begehbarer schrank.
Was gefällt nicht? Warum? Könnte mir die Treppe schöner vorstellen. Vielleicht länglicher und freier. Generell der Flur dann etwas groß.
Terrasse im OG etwas überdimensioniert. Fragen uns ob der Überstand nicht zu viel Schatten ins EG wirft.
Preisschätzung lt Architekt/Planer: Mit GU/GÜ und allen Nebenkosten >900.000€
Persönliches Preislimit fürs Haus, inkl Ausstattung: eher darunter.
favorisierte Heiztechnik: keine Meinung bisher
Warum ist der Entwurf so geworden, wie er jetzt ist? ZB
Es gab ein erstes Treffen mit dem Architekten auf den unsere Wünsche aufgeschrieben wurden.
EG: Küche getrennt, Wohn/Esszimmer zusammen. Ein weiterer getrennter Raum als Arbeits/Gästezimmer (und eventuell Schlafzimmer wenn Not am Mann).
Durchgang von Garage ins Haus. Durchgang eventuell als Hauswirtschaftsraum.
OG: 3 Zi plus 2 Bäder davon eins En suite.
Erstentwurf im zweiten Treffen und im dritten Treffen gabs diesen finalen Entwurf.



wir haben eins von drei Grundstücken gekauft, die aus einem größeren Grundstück rausgeteilt und noch erschlossen werden müssen. Zugang erfolgt über eine Privatstraße und alle 3 Eigentümer teilen sich die Verkehrsfläche zu je einem Drittel. Das Grundstück liegt für uns sehr gut angebunden Zentral in Bonn und ist vielleicht eher etwas größer als wir es gebraucht hätten, aber es ist auch nicht so als gäbe es sonst ständig freie Grundstück in ähnlicher Lage.
Da es vorher längeren Rechtsstreit zwischen dem Verkäufer und den Anwohner gab, können wir nur etwas eingeschränkt mit Staffelgeschoss bauen. Dafür war das Grundstück wahrscheinlich nur für Privatpersonen interessant. Einliegerwohnung wäre nicht möglich, wollen wir auch nicht.
Die Planung lief bisher auf der grünen Wiese, ohne Gedanken an Kosten oder praktische Gesichtspunkte. Zumindest von unserer Seite.
Der Architekt zeichnet wohl gerne, aber kann ich eigentlich in der Phase verstehen und hat etwas künstlerisches.
Wir sind generell offen für alle Vorschläge und Idee, was man anders machen sollte. Besonders auch wo könnte man leicht Kosten sparen könnte.
Unser nächster Schritte wäre ein Architektenvertrag Leistungsphase 1-5 plus GU/GÜ.
Bebauungsplan/Einschränkungen
Größe des Grundstücks: >800qm, kein Hang, Baufenster etc. Siehe Plan.
Anzahl Stellplatz: 1 auf Verkehrsfläche und 1 Garage
Geschossigkeit: Nur 1 Vollgeschoss plus Staffelgeschoss
Dachform: Flachdach; Stilrichtung: Eher Bauhaus
Ausrichtung: Hausfront nach Süd-West
Maximale Höhen/Begrenzungen: 7-8m
Anforderungen der Bauherren
Wir haben eigentlich keine Anforderungen an den Stiel. Flachdach ergibt sich etwas wegen Staffeldach und der Höhenbeschränkung, die wohl kein Satteldach erlaubt.
Keller wollen wir mit Abgrabung und zwei Tageslichtzimmern (Idee kam eher vom Architekten). Aktuell sind wir zu dritt, es könnten auch mal 4 werden. Anfang 30 und Baby.
Hatten mit gut über 100qm unten geplant und oben dann 75% davon. Aktuell sind es gut 230qm EG/OG plus Terrassen etc. und Keller
Büro: Ab und zu, aber nicht so wichtig.
Schlafgäste pro Jahr: ka. aber Gästezimmer ist eingeplant
offene Küche, Kochinsel: Wir wollen auf jeden Fall extra Raum für die Küche und finden den Vorschlag mit der verlängerten Insel gut
Anzahl Essplätze: 4 in der Küche, eher 8 im Esszimmer
Kamin: Nicht so wichtig, eher Nein.
Musik/Stereowand: Um den TV herum 5.1. System
Balkon, Dachterrasse. Terrasse auf jeden Fall, Balkon über Küche ergibt sich aus dem Staffelgeschoss
Garage, Carport: Garage ist jetzt mit b=4,5m nicht so Standard und dadurch wahrscheinlich teurer.
Hausentwurf vom Architekt
Was gefällt besonders? Warum? Nutzung der Sonnenseite ist gut, und sonst sind alle unsere Wünsche berücksichtigt.
OG 3 Schlafzimmer 2 Bäder. Für Eltern en suite Bad und begehbarer schrank.
Was gefällt nicht? Warum? Könnte mir die Treppe schöner vorstellen. Vielleicht länglicher und freier. Generell der Flur dann etwas groß.
Terrasse im OG etwas überdimensioniert. Fragen uns ob der Überstand nicht zu viel Schatten ins EG wirft.
Preisschätzung lt Architekt/Planer: Mit GU/GÜ und allen Nebenkosten >900.000€
Persönliches Preislimit fürs Haus, inkl Ausstattung: eher darunter.
favorisierte Heiztechnik: keine Meinung bisher
Warum ist der Entwurf so geworden, wie er jetzt ist? ZB
Es gab ein erstes Treffen mit dem Architekten auf den unsere Wünsche aufgeschrieben wurden.
EG: Küche getrennt, Wohn/Esszimmer zusammen. Ein weiterer getrennter Raum als Arbeits/Gästezimmer (und eventuell Schlafzimmer wenn Not am Mann).
Durchgang von Garage ins Haus. Durchgang eventuell als Hauswirtschaftsraum.
OG: 3 Zi plus 2 Bäder davon eins En suite.
Erstentwurf im zweiten Treffen und im dritten Treffen gabs diesen finalen Entwurf.
Benrath schrieb:
Dann muss ich aber sagen, dass ich die Verbindung zwischen Küche und WZ nicht schön fände.Ja, das ist in den ganzen Entwürfen nicht gelungen, da die Küche ein Anhängsel ist, das am falschen Platz gelegt wurde. Aber Du hängst ja an genau dieser Lage und willst anscheinend die Küche nicht mal einen Meter nach oben ziehen, damit man einen vernünftigen Übergang hat.
Alessandro schrieb:
hab anscheinend nur den ersten Entwurf gefunden.Gib mal in der Suchmaschine mit "G" folgenden Suchbegriff ein "Unser "überarbeiteter" Grundriss" dann findest Du den Grundriss als auch die Ansichten. Wenn es aber gewünscht ist kann ich ihn auch hier einstellen.Benrath schrieb:
Konkret an deinem Vorschlag gefällt mir daher erstmal die Treppe 🙂 Dann muss ich aber sagen, dass ich die Verbindung zwischen Küche und WZ nicht schön fände. Man könnte die Ecke auch einfach rausnehmen, aber dann müsste man immer durch zwei Türen von Küche zu WZ.Gefällt mir auch nicht, aber eventuell kann man die Küche ein wenig nach hinten schieben. Ich würde aber auf jeden Fall sowohl ne Türe in die Küche als in das Wohn- und Esszimmer vorsehen. Eine Türe in so einen großen Bereich finde ich nicht wirklich gut.
Benrath schrieb:
Den Flügel in den Gastraum finde ich nicht schön. Im OG fände ich es zwar der Flur besser aber der Elternbereich sehr schlauchig. Die Seite rechts ist die schöne Seite, zum Garten und zum weiteren Blick raus, weil dort das nächste Haus eher weiter Weg steht. Aber ok man könnte Zimmer 10 kürzen und mehr Türen haben etc. Die erste Überlegung so die Treppe zu machen wäre die Anregung an den Architekten und dann könnte man gucken.
Fläche oben ist 66% von EG und mindestens 1m zurückspringend außer im Treppenhaus.Flügel im Gastraum finde ich auch nicht gut. Wieso schlauchig, das ist ne sauber Abfolge der Zimmer. Wobei ich das Schlafzimmer rechts psoitionieren würde zum Garten, dann Ankleide und links dann das Bad.
Sind die 66% Vorgegeben? Denn in dem Fall würde ich dann oben schon versuchen Platz zu sparen. Du hast sowohl im EG als OG nen hauswirtschaftsraum und dann noch nen Keller. Du schaffst dort unheimlich viel Raum. Und jeder Quadratmeter kostet einfach Geld.
Benrath schrieb:
Generell zur Idee die Garage in den Hauswirtschaftsraum zu integrieren? Wie habe ich mir das vorzustellen. Dann geht die Garage durchgängig ins Haus? Ist das bautechnisch und für die Isolation eine gute Idee? Auf der anderen Seite macht es vom Grundstück her Sinn die Garage dahinzustellen wo sie steht, weil sie Fläche belegt die sonst nicht im Baufeld ist.Ein Teil Deiner garage ist dann quasi im haus. Bei Dir wäre es ja nur eine kleine Ecke. Fände ich persönlich optisch schöner. Bautechnisch geht das ist bei uns auch so. Decke über Garage muss eben gedämmt werden und due Mauer zum Haus benötigt eben auch ne andere Dicke/Wärmedämmung.Benrath schrieb:
Sonstige Fragen:
Ja es gibt einen vermaßten Lageplan
Was und wo ist bei uns ein Erker eingeplant. Ich glaub ich versteh die Begrifflichkeit nicht. Meint ihr das beim Gästbereicht? Darunter ist die Abgragung und dann müsste man dort nicht zurückspringend bauen, wenn es genehmigt wird.Ich glaube ypg meinte das Treppenhaus. Denn jeder Versprung kostet eben und bei Dir ist es ja doch ein sehr verschachtelter Baukörper. Was ich persönlich toll finde aber eben das Bauen teurer macht.Benrath schrieb:
Der andere Vorschlag find ich von der Ausrichtung des Hauses nicht so sinnvoll. Dann würde ich den Gastbereich in die sonnigste und schönste Ecke des Grundstücks legen.
Die generell Idee den Wohn/Esse und Küchen Bereich in die Südwest Achse zu legen find ich fast alternativlos. Das Baufenster liegt ja eher nach oben links im Grundstück (kann man in etwa erahnen vom ersten Scan des ersten Posts). Die beste Sichtfläche habe ich nach rechts auf dem Grundriss wo die WZ Fensterfront liegt. Die Idee die Küche und Gastbereich zu tauschen hatten wir selber mal überlegt, weil der Vorschlag kam. Ich sehs nicht.
Wenn ich was übersehen habe bitte nochmal fragen 🙂Sehe ich auch so. Den Wohnraum und die Küche würde ich dort belassen. Schon wegen den Wegen von der Küche auf die Terrasse als auch vom Schleppen der Einkäufe.
Es sei denn Du nutzt das Gästezimmer als Homeoffice, dann würde ich mir tatsächlich überlegen Küche und Gästezimmer zu tauschen, da Du im Homeoffice mehr Zeit verbringen wirst als in der Küche.
Benrath schrieb:
Den Flügel in den Gastraum finde ich nicht schön.Wo hättest Du ihn denn gern? Im Allraum ist mit dem rechteckigen Schnitt kein Platz für ihn, wenn Du Esstisch und großzügige Sofaecke haben möchtest.Benrath schrieb:
m OG fände ich es zwar der Flur besser aber der Elternbereich sehr schlauchig.???? Sorry, aber das ist, wie schon gesagt, als Skizze anzusehen. Die einzelnen Räume sind nur angezeichnet...Benrath schrieb:
Ja es gibt einen vermaßten LageplanUnd warum stellst Du ihn nicht ein?Benrath schrieb:
Was und wo ist bei uns ein Erker eingeplant.Die Treppe liegt in einem Erker.Benrath schrieb:
Fläche oben ist 66% von EG und mindestens 1m zurückspringend außer im Treppenhaus.Das ist ein ganz schöner Krampf.ypg schrieb:
Ja, das ist in den ganzen Entwürfen nicht gelungen, da die Küche ein Anhängsel ist, das am falschen Platz gelegt wurde. Aber Du hängst ja an genau dieser Lage und willst anscheinend die Küche nicht mal einen Meter nach oben ziehen, damit man einen vernünftigen Übergang hat.Ad hoc hab ich da erstmal nix gegen, muss ich mir nochmal ansehen, ob das geht. Dann so versetzt das es nach oben mit dem WZ überlappt?
Wie gesagt sehe ich den Flügel im WZ und zwar unten links in der Ecke. Verstehe nicht das Problem. Sonnengeschützt
Ja die 66% und das zurückspringend ist blöd. Das ist fail unsererseits und des Architekten, nicht nur unseres, dass die Bauordnung sich am Datum des Beschlusses der Stadt ausrichtet. Daher gilt BO2016/17 und da sind die 66% definiert. Zurückspringend scheint städtische Auslegungssache zu sein und wird laut Architekt in Bonn so gelebt. Wir waren auch von 75% und sonst nix ausgegangen.
Ich gehe davon aus, dass wir das Grundstück trotzdem gekauft hätten. Ganz eventuell hätte man noch etwas am Preis drehen können, aber die Verhandlungen waren da eh nicht einfach.
Reicht das als Lageplan? Pfeil ist Norden
Die Logik der Zurückspringen Idee will sich mir auch nicht erschließen.
Gibts hier eigentlich noch Admins/Moderatoren?
Ähnliche Themen