Hallo zusammen,
wir haben eins von drei Grundstücken gekauft, die aus einem größeren Grundstück rausgeteilt und noch erschlossen werden müssen. Zugang erfolgt über eine Privatstraße und alle 3 Eigentümer teilen sich die Verkehrsfläche zu je einem Drittel. Das Grundstück liegt für uns sehr gut angebunden Zentral in Bonn und ist vielleicht eher etwas größer als wir es gebraucht hätten, aber es ist auch nicht so als gäbe es sonst ständig freie Grundstück in ähnlicher Lage.
Da es vorher längeren Rechtsstreit zwischen dem Verkäufer und den Anwohner gab, können wir nur etwas eingeschränkt mit Staffelgeschoss bauen. Dafür war das Grundstück wahrscheinlich nur für Privatpersonen interessant. Einliegerwohnung wäre nicht möglich, wollen wir auch nicht.
Die Planung lief bisher auf der grünen Wiese, ohne Gedanken an Kosten oder praktische Gesichtspunkte. Zumindest von unserer Seite.
Der Architekt zeichnet wohl gerne, aber kann ich eigentlich in der Phase verstehen und hat etwas künstlerisches.
Wir sind generell offen für alle Vorschläge und Idee, was man anders machen sollte. Besonders auch wo könnte man leicht Kosten sparen könnte.
Unser nächster Schritte wäre ein Architektenvertrag Leistungsphase 1-5 plus GU/GÜ.
Bebauungsplan/Einschränkungen
Größe des Grundstücks: >800qm, kein Hang, Baufenster etc. Siehe Plan.
Anzahl Stellplatz: 1 auf Verkehrsfläche und 1 Garage
Geschossigkeit: Nur 1 Vollgeschoss plus Staffelgeschoss
Dachform: Flachdach; Stilrichtung: Eher Bauhaus
Ausrichtung: Hausfront nach Süd-West
Maximale Höhen/Begrenzungen: 7-8m
Anforderungen der Bauherren
Wir haben eigentlich keine Anforderungen an den Stiel. Flachdach ergibt sich etwas wegen Staffeldach und der Höhenbeschränkung, die wohl kein Satteldach erlaubt.
Keller wollen wir mit Abgrabung und zwei Tageslichtzimmern (Idee kam eher vom Architekten). Aktuell sind wir zu dritt, es könnten auch mal 4 werden. Anfang 30 und Baby.
Hatten mit gut über 100qm unten geplant und oben dann 75% davon. Aktuell sind es gut 230qm EG/OG plus Terrassen etc. und Keller
Büro: Ab und zu, aber nicht so wichtig.
Schlafgäste pro Jahr: ka. aber Gästezimmer ist eingeplant
offene Küche, Kochinsel: Wir wollen auf jeden Fall extra Raum für die Küche und finden den Vorschlag mit der verlängerten Insel gut
Anzahl Essplätze: 4 in der Küche, eher 8 im Esszimmer
Kamin: Nicht so wichtig, eher Nein.
Musik/Stereowand: Um den TV herum 5.1. System
Balkon, Dachterrasse. Terrasse auf jeden Fall, Balkon über Küche ergibt sich aus dem Staffelgeschoss
Garage, Carport: Garage ist jetzt mit b=4,5m nicht so Standard und dadurch wahrscheinlich teurer.
Hausentwurf vom Architekt
Was gefällt besonders? Warum? Nutzung der Sonnenseite ist gut, und sonst sind alle unsere Wünsche berücksichtigt.
OG 3 Schlafzimmer 2 Bäder. Für Eltern en suite Bad und begehbarer schrank.
Was gefällt nicht? Warum? Könnte mir die Treppe schöner vorstellen. Vielleicht länglicher und freier. Generell der Flur dann etwas groß.
Terrasse im OG etwas überdimensioniert. Fragen uns ob der Überstand nicht zu viel Schatten ins EG wirft.
Preisschätzung lt Architekt/Planer: Mit GU/GÜ und allen Nebenkosten >900.000€
Persönliches Preislimit fürs Haus, inkl Ausstattung: eher darunter.
favorisierte Heiztechnik: keine Meinung bisher
Warum ist der Entwurf so geworden, wie er jetzt ist? ZB
Es gab ein erstes Treffen mit dem Architekten auf den unsere Wünsche aufgeschrieben wurden.
EG: Küche getrennt, Wohn/Esszimmer zusammen. Ein weiterer getrennter Raum als Arbeits/Gästezimmer (und eventuell Schlafzimmer wenn Not am Mann).
Durchgang von Garage ins Haus. Durchgang eventuell als Hauswirtschaftsraum.
OG: 3 Zi plus 2 Bäder davon eins En suite.
Erstentwurf im zweiten Treffen und im dritten Treffen gabs diesen finalen Entwurf.



wir haben eins von drei Grundstücken gekauft, die aus einem größeren Grundstück rausgeteilt und noch erschlossen werden müssen. Zugang erfolgt über eine Privatstraße und alle 3 Eigentümer teilen sich die Verkehrsfläche zu je einem Drittel. Das Grundstück liegt für uns sehr gut angebunden Zentral in Bonn und ist vielleicht eher etwas größer als wir es gebraucht hätten, aber es ist auch nicht so als gäbe es sonst ständig freie Grundstück in ähnlicher Lage.
Da es vorher längeren Rechtsstreit zwischen dem Verkäufer und den Anwohner gab, können wir nur etwas eingeschränkt mit Staffelgeschoss bauen. Dafür war das Grundstück wahrscheinlich nur für Privatpersonen interessant. Einliegerwohnung wäre nicht möglich, wollen wir auch nicht.
Die Planung lief bisher auf der grünen Wiese, ohne Gedanken an Kosten oder praktische Gesichtspunkte. Zumindest von unserer Seite.
Der Architekt zeichnet wohl gerne, aber kann ich eigentlich in der Phase verstehen und hat etwas künstlerisches.
Wir sind generell offen für alle Vorschläge und Idee, was man anders machen sollte. Besonders auch wo könnte man leicht Kosten sparen könnte.
Unser nächster Schritte wäre ein Architektenvertrag Leistungsphase 1-5 plus GU/GÜ.
Bebauungsplan/Einschränkungen
Größe des Grundstücks: >800qm, kein Hang, Baufenster etc. Siehe Plan.
Anzahl Stellplatz: 1 auf Verkehrsfläche und 1 Garage
Geschossigkeit: Nur 1 Vollgeschoss plus Staffelgeschoss
Dachform: Flachdach; Stilrichtung: Eher Bauhaus
Ausrichtung: Hausfront nach Süd-West
Maximale Höhen/Begrenzungen: 7-8m
Anforderungen der Bauherren
Wir haben eigentlich keine Anforderungen an den Stiel. Flachdach ergibt sich etwas wegen Staffeldach und der Höhenbeschränkung, die wohl kein Satteldach erlaubt.
Keller wollen wir mit Abgrabung und zwei Tageslichtzimmern (Idee kam eher vom Architekten). Aktuell sind wir zu dritt, es könnten auch mal 4 werden. Anfang 30 und Baby.
Hatten mit gut über 100qm unten geplant und oben dann 75% davon. Aktuell sind es gut 230qm EG/OG plus Terrassen etc. und Keller
Büro: Ab und zu, aber nicht so wichtig.
Schlafgäste pro Jahr: ka. aber Gästezimmer ist eingeplant
offene Küche, Kochinsel: Wir wollen auf jeden Fall extra Raum für die Küche und finden den Vorschlag mit der verlängerten Insel gut
Anzahl Essplätze: 4 in der Küche, eher 8 im Esszimmer
Kamin: Nicht so wichtig, eher Nein.
Musik/Stereowand: Um den TV herum 5.1. System
Balkon, Dachterrasse. Terrasse auf jeden Fall, Balkon über Küche ergibt sich aus dem Staffelgeschoss
Garage, Carport: Garage ist jetzt mit b=4,5m nicht so Standard und dadurch wahrscheinlich teurer.
Hausentwurf vom Architekt
Was gefällt besonders? Warum? Nutzung der Sonnenseite ist gut, und sonst sind alle unsere Wünsche berücksichtigt.
OG 3 Schlafzimmer 2 Bäder. Für Eltern en suite Bad und begehbarer schrank.
Was gefällt nicht? Warum? Könnte mir die Treppe schöner vorstellen. Vielleicht länglicher und freier. Generell der Flur dann etwas groß.
Terrasse im OG etwas überdimensioniert. Fragen uns ob der Überstand nicht zu viel Schatten ins EG wirft.
Preisschätzung lt Architekt/Planer: Mit GU/GÜ und allen Nebenkosten >900.000€
Persönliches Preislimit fürs Haus, inkl Ausstattung: eher darunter.
favorisierte Heiztechnik: keine Meinung bisher
Warum ist der Entwurf so geworden, wie er jetzt ist? ZB
Es gab ein erstes Treffen mit dem Architekten auf den unsere Wünsche aufgeschrieben wurden.
EG: Küche getrennt, Wohn/Esszimmer zusammen. Ein weiterer getrennter Raum als Arbeits/Gästezimmer (und eventuell Schlafzimmer wenn Not am Mann).
Durchgang von Garage ins Haus. Durchgang eventuell als Hauswirtschaftsraum.
OG: 3 Zi plus 2 Bäder davon eins En suite.
Erstentwurf im zweiten Treffen und im dritten Treffen gabs diesen finalen Entwurf.
A
Alessandro19.11.20 15:18Benrath schrieb:
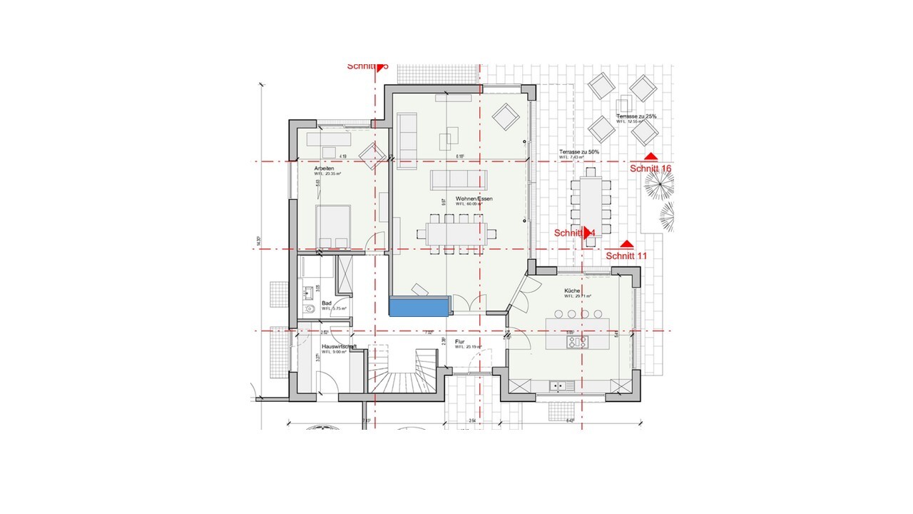
was meint ihr mit Schnitten? Also mir sind die roten Linien auch aufgefallen. Was hat es damit zu tun?Mit den hier roten Linien hat es auf sich, im Grundriss die Lage der gedachten Schnittlinien darzustellen. Es gibt hier ja offensichtlich sechs Zeichnungen des Gebäudes im Querschnitt, und diese Linien zeigen deren Einordnung in die Grundrisse. Ein Einfamilienhaus mit sechs "Momentaufnahmen" seines Querschnitts - hier genauer gesagt eigentlich derer mindestens sechzehn durch die gesamte Häusergruppe - zu durchziehen, spiegelt eine unnötige Komplexität der Baukörper wider, die erfahrungsgemäß (eher proportional als linear !) heftig auf die Baukosten durchschlägt - daher sprach ich von "Alarmzeichen".Benrath schrieb:
ist ein kleineres Büro mit spezielleren ProjektenIch tippe auf jemanden, der in einem größeren Büro an Projekten wie von mir beschrieben gearbeitet und sich selbständig gemacht, die antrainierten Denkweisen aber noch nicht ausgewaschen hat.Benrath schrieb:
Der Architekt kennt unsere Möbel nicht und wir haben bisher auch noch nicht darüber geredet.Das ist eher eine Diagnose als eine Entschuldigung.Benrath schrieb:
Wir planen mit einem GÜ und gehen daher davon aus, dass wir vor Baubeginn eine mehr oder weniger Fixe KOstenschätzung erhalten, die Basis des GÜ Vertrag swird.Festpreis ? - isnichdeinernst. Meine Gegenthese lautet, der Faktor vor dem ausstattungsüblichen Quadratmeterpreis werde Einskommavier sogar überschreiten. Das meine ich wohlgemerkt für alle Quadratmeter - also auch diejenigen, die wohnwertmäßig Speckröllchen oder gar Leerkalorien sind.https://www.instagram.com/11antgmxde/
https://www.linkedin.com/company/bauen-jetzt/
11ant schrieb:
Mit den hier roten Linien hat es auf sich, im Grundriss die Lage der gedachten Schnittlinien darzustellen. Es gibt hier ja offensichtlich sechs Zeichnungen des Gebäudes im Querschnitt, und diese Linien zeigen deren Einordnung in die Grundrisse. Ein Einfamilienhaus mit sechs "Momentaufnahmen" seines Querschnitts - hier genauer gesagt eigentlich derer mindestens sechzehn durch die gesamte Häusergruppe - zu durchziehen, spiegelt eine unnötige Komplexität der Baukörper wider, die erfahrungsgemäß (eher proportional als linear !) heftig auf die Baukosten durchschlägt - daher sprach ich von "Alarmzeichen".Mir unklar was das erklären soll. Was für eine Komplexität des Baukörpers denn? Versteh ich einfach nicht.
11ant schrieb:
Ich tippe auf jemanden, der in einem größeren Büro an Projekten wie von mir beschrieben gearbeitet und sich selbständig gemacht, die antrainierten Denkweisen aber noch nicht ausgewaschen hat.
Das ist eher eine Diagnose als eine Entschuldigung.Naja kann man nix machen, was soll cih das jetzt versuchen zu rechtfertigen, führt auch zu nix.
11ant schrieb:
Festpreis ? - isnichdeinernst. Meine Gegenthese lautet, der Faktor vor dem ausstattungsüblichen Quadratmeterpreis werde Einskommavier sogar überschreiten. Das meine ich wohlgemerkt für alle Quadratmeter - also auch diejenigen, die wohnwertmäßig Speckröllchen oder gar Leerkalorien sind.Was wäre so schlecht an einem GÜ und einem Festpreis?
Benrath schrieb:
Was für eine Komplexität des Baukörpers denn? Versteh ich einfach nicht.Komplexität bedeutet hier die siebenunddrölfzig Ecken, an denen dieser Entwurf von einem Würfel oder sonstigen Linearkörper abweicht, die es sämtlich nicht geschenkt gibt, und die hier offenbar sogar für den Planer selbst erfordern, sich die einmal aufzumalen.Benrath schrieb:
Was wäre so schlecht an einem GÜ und einem Festpreis?Außer daß ich darüber ultimativ maximal erstaunt wäre: nichts.https://www.instagram.com/11antgmxde/
https://www.linkedin.com/company/bauen-jetzt/
11ant schrieb:
Komplexität bedeutet hier die siebenunddrölfzig Ecken, an denen dieser Entwurf von einem Würfel oder sonstigen Linearkörper abweicht, die es sämtlich nicht geschenkt gibt, und die hier offenbar sogar für den Planer selbst erfordern, sich die einmal aufzumalen.Ist der Entwurf denn so komplex? Es ist kein Würfel, aber sonst schon eher ein "linearkörper" bei allen Außenwänden. Ich zähle 9 Außenecken. TÜr zähle ich mal nicht mit.
Ist das so crazy?
Ich lasse es mir auch mal vom Architekten erklären.
11ant schrieb:
Außer daß ich darüber ultimativ maximal erstaunt wäre: nichts.Das sind wir gespannt. Er hätte angeblich 2-3 GÜ an der Hand und Vertragsentwürfe etc. haben wir auch schon gesehen.
Ähnliche Themen