Hallo Hausbauforum
Ich bin neu hier und wir planen zu Zeit unser Haus mit einem Architekten. Wir sind aktuell 4 Köpfe, planen aber einen 5. zu bekommen. Daher auch 3 Kinderzimmer für das Haus.
Hier mal der Fragebogen:
Bebauungsplan/Einschränkungen
Größe des Grundstücks: 1250qm auf 25mx50m
Hang: nein
Grundflächenzahl: 0,4
Geschossflächenzahl: grad nicht im Kopf
Randbebauung: erlaubt aber möchte ich vermeiden
Anzahl Stellplatz: Doppel Carport + 2 Autos davor
Dachform: Satteldach
Stilrichtung: klassisch Einfamilienhaus
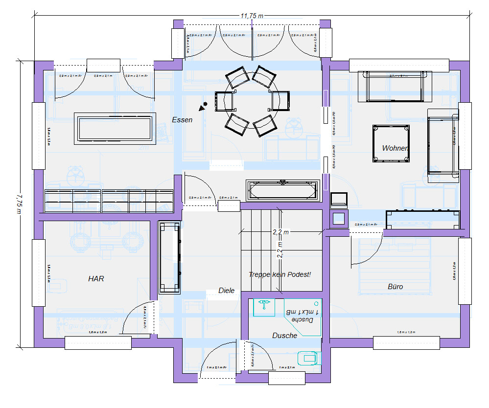
Ausrichtung: siehe Zeichnung
Anforderungen der Bauherren
offenes Raumkonzept im EG, 4 Schlafzimmer im OG, Dachboden mit genügend Platz für Lager und Hobbyecke
Hausentwurf
Von wem stammt die Planung:
-Architekt
Was gefällt besonders? Warum?
EG: offene Küche und Wohnzimmer. Bürozugang vom Wohnzimmer aus. Direkter Zugang zur Terrasse.
OG: 3 Kinderzimmer unterbekommen, Schlafzimmer mit Ankleideecke. Die große Gaube. Die Treppe zum Dachboden. Da soll das Hobbyzimmer hin
Was gefällt nicht? Warum?
eigentlich nur der Aufgang zum OG. Mich stört noch etwas das ich so ,,gegen die Ecke,, laufe beim Hochkommen. Dafür suche ich Ideen um das etwas besser umzusetzen. Oder sind die Bedenken unbegründet?
Preisschätzung lt Architekt/Planer:
steht noch aus.
Persönliches Preislimit fürs Haus, inkl Ausstattung:
350T Euro
favorisierte Heiztechnik:
Gastherme, Solarthermie und Fußbodenheizung
Wenn Ihr verzichten müsst, auf welche Details/Ausbauten
-könnt Ihr verzichten:
wir haben bereits alles streichen lassen auf das wir verzichten können.
Warum ist der Entwurf so geworden, wie er jetzt ist? ZB
Wir sind mit unserem Wunschentwurf zum Architekten gegangen. Er hat sich unseren Grundriss als Vorlage genommen und einen Grundriss daraus gemacht, der uns noch besser gefällt. Einzig mit dem Treppenaufgang bin ich noch nicht 100% zufrieden.
Was ist die wichtigste/grundlegende Frage zum Grundriss in 130 Zeichen zusammengefasst?
Wie bereits geschrieben der Treppenaufgang zum OG brennt mir am meisten unter den Nägeln. Hier erhoffe ich mir vielleicht die eine oder andere Idee wie wir das besser umsetzen können und vielleicht auch Feedback zum Rest.


Süden ist ,,oben,, auf den Zeichnungen
Wenn noch Infos fehlen reiche ich die gern nach.
Viele Grüße
Ich bin neu hier und wir planen zu Zeit unser Haus mit einem Architekten. Wir sind aktuell 4 Köpfe, planen aber einen 5. zu bekommen. Daher auch 3 Kinderzimmer für das Haus.
Hier mal der Fragebogen:
Bebauungsplan/Einschränkungen
Größe des Grundstücks: 1250qm auf 25mx50m
Hang: nein
Grundflächenzahl: 0,4
Geschossflächenzahl: grad nicht im Kopf
Randbebauung: erlaubt aber möchte ich vermeiden
Anzahl Stellplatz: Doppel Carport + 2 Autos davor
Dachform: Satteldach
Stilrichtung: klassisch Einfamilienhaus
Ausrichtung: siehe Zeichnung
Anforderungen der Bauherren
offenes Raumkonzept im EG, 4 Schlafzimmer im OG, Dachboden mit genügend Platz für Lager und Hobbyecke
Hausentwurf
Von wem stammt die Planung:
-Architekt
Was gefällt besonders? Warum?
EG: offene Küche und Wohnzimmer. Bürozugang vom Wohnzimmer aus. Direkter Zugang zur Terrasse.
OG: 3 Kinderzimmer unterbekommen, Schlafzimmer mit Ankleideecke. Die große Gaube. Die Treppe zum Dachboden. Da soll das Hobbyzimmer hin
Was gefällt nicht? Warum?
eigentlich nur der Aufgang zum OG. Mich stört noch etwas das ich so ,,gegen die Ecke,, laufe beim Hochkommen. Dafür suche ich Ideen um das etwas besser umzusetzen. Oder sind die Bedenken unbegründet?
Preisschätzung lt Architekt/Planer:
steht noch aus.
Persönliches Preislimit fürs Haus, inkl Ausstattung:
350T Euro
favorisierte Heiztechnik:
Gastherme, Solarthermie und Fußbodenheizung
Wenn Ihr verzichten müsst, auf welche Details/Ausbauten
-könnt Ihr verzichten:
wir haben bereits alles streichen lassen auf das wir verzichten können.
Warum ist der Entwurf so geworden, wie er jetzt ist? ZB
Wir sind mit unserem Wunschentwurf zum Architekten gegangen. Er hat sich unseren Grundriss als Vorlage genommen und einen Grundriss daraus gemacht, der uns noch besser gefällt. Einzig mit dem Treppenaufgang bin ich noch nicht 100% zufrieden.
Was ist die wichtigste/grundlegende Frage zum Grundriss in 130 Zeichen zusammengefasst?
Wie bereits geschrieben der Treppenaufgang zum OG brennt mir am meisten unter den Nägeln. Hier erhoffe ich mir vielleicht die eine oder andere Idee wie wir das besser umsetzen können und vielleicht auch Feedback zum Rest.
Süden ist ,,oben,, auf den Zeichnungen
Wenn noch Infos fehlen reiche ich die gern nach.
Viele Grüße
Sparfuchs_ schrieb:
Ja ist an mir vorbeigegangen. Sorry! Bebauungsplan gibt nur Satteldach oder Walmdach vor. Sowie 2 Vollgeschosse maximal. Mehr steht soweit ich gestern gesehen habe nicht drin. Was der Architekt sich dabei gedacht hat müsste ich ihn fragenJa, bitte, das juckt mich zu erfahren Sparfuchs_ schrieb:
Aber die Gauben sind eh vom Tisch erst mal.Das sehe ich nicht unbedingt so. Wenn Du meinen Beitrag nun gelesen (und verstanden) hast - letzteres braucht ungeübt vermutlich dreimal Lesen und einen Underberg - dann sollte bei Dir angekommen sein, daß Du ja keine echten Gauben hast, sondern eigentlich Zwerchhäuser (Gauben würden auf dem Dach - meist auf dessen Drempelwand - aufsetzen, Zwerchhäuser hingegen führen die Außenwand fort); daß das Dach vor den "Gauben" somit ein für den Dachstuhl konstruktiv unnötiger Dachüberstand ist; und folglich dieser hier weggelassen werden kann und gegen unter die Gürtellinie des Kniestockes rutschende Fensterbänke nicht sperren würde. Deine BefürchtungSparfuchs_ schrieb:
Die Gauben sind mit 1.30m Kniestock eh nicht mehr machbar ohne das die Fensterbretter ewig hoch sind.halte ich also für einen verständlichen Laienirrtum. Immerhin hatte mich dieses Mißverständnis von Dir überhaupt erst geweckt, die atypische Konzeption Deiner "Gauben" zu erkennen.https://www.instagram.com/11antgmxde/
https://www.linkedin.com/company/bauen-jetzt/
S
Sparfuchs7725.07.19 15:5611ant schrieb:
Das sehe ich nicht unbedingt so. Wenn Du meinen Beitrag nun gelesen (und verstanden) hast - letzteres braucht ungeübt vermutlich dreimal Lesen und einen Underberg - dann sollte bei Dir angekommen sein, daß Du ja keine echten Gauben hast, sondern eigentlich Zwerchhäuser (Gauben würden auf dem Dach - meist auf dessen Drempelwand - aufsetzen, Zwerchhäuser hingegen führen die Außenwand fort); daß das Dach vor den "Gauben" somit ein für den Dachstuhl konstruktiv unnötiger Dachüberstand ist; und folglich dieser hier weggelassen werden kann und gegen unter die Gürtellinie des Kniestockes rutschende Fensterbänke nicht sperren würde. Deine Befürchtungja, habs denke ich jetzt verstanden. Du meist diesen Unterschied oder?
Gaube
Kniestock beliebig
Und das ist dann das was bei uns geplant ist.
richtig?
Ich hab mit dem Architekten ausgemacht das wir ihm mal eine Mail mit unseren Fragen schicken und er übers Wochenende Zeit bekommt Ideen zu sammeln. Mittwoch können wir einen Termin bekommen.
Wenn wir uns dafür entscheiden das offene Konzept zu lassen, wären die Punkte also:
- Treppen entknoten
- OG anpassen
- Gaube statt ,,Zwerchhaus,,
- Kniestock hoch
glücklich sein?
Geht das? So eine hochgemauerte Gaube und den Erker unten auf der Essbereich Seite? Könnte mir vorstellen das sieht blöd aus Vermute wir müssen uns dann fürs eins entscheiden
Sparfuchs_ schrieb:
Du meist diesen Unterschied oder?
Gaube
[IMG alt="gaube2.png"]https://www.hausbau-forum.de/data/attachments/36/36210-6f28a5006c5b198b1584b2dc2950f2b1.jpg[/IMG]
Kniestock beliebig
Und das ist dann das was bei uns geplant ist.
[IMG alt="gaube3.png"]https://www.hausbau-forum.de/data/attachments/36/36211-9dc823f021d4623e852f65c3a2a57be3.jpg[/IMG]Das weiß ich nicht: das obere Bild ist keine Gaube, sondern ein Zwerchhaus - eben, weil es auf der Außenwand stehend hochwächst; und ja, der Kniestock ist dabei variabler. Auf dem unteren Bild ist nicht erkennbar, ob es eine Gaube oder ein Zwerchhaus ist - eben weil der Bildausschnitt nicht weit genug hinab reicht um zu erkennen, ob unter den Fenstern nur Dachüberstand ist oder teils auch noch eigentliches Dach.https://www.instagram.com/11antgmxde/
https://www.linkedin.com/company/bauen-jetzt/
S
Sparfuchs7725.07.19 16:11Ok, ich habs wohl doch nicht verstanden.
Ich habe ihn 3 mal gelesen nun... also...
Ich habe Zwerchhäuser - heißt das meine ,,Gaube,, auf der Außenwand aufsitzen. Den Dachüberstand haben wir wohl drin damit die Terrasse überdacht ist. Ich glaub da hatte er mal was erwähnt. Da hab ich aber nicht weiter drüber nachgedacht weil ich da keinen Nachteil gesehen hatte zu der Zeit.
Die Gaube sitzt also hinter (also innen) der Außenmauer auf dem Dachstuhl auf? jetzt richtig?
11ant schrieb:
Wenn Du meinen Beitrag nun gelesen (und verstanden) hast - letzteres braucht ungeübt vermutlich dreimal Lesen und einen Underberg - dann sollte bei Dir angekommen sein, daß Du ja keine echten Gauben hast, sondern eigentlich Zwerchhäuser (Gauben würden auf dem Dach - meist auf dessen Drempelwand - aufsetzen, Zwerchhäuser hingegen führen die Außenwand fort); daß das Dach vor den "Gauben" somit ein für den Dachstuhl konstruktiv unnötiger Dachüberstand ist; und folglich dieser hier weggelassen werden kann und gegen unter die Gürtellinie des Kniestockes rutschende Fensterbänke nicht sperren würde.
Ich habe ihn 3 mal gelesen nun... also...
Ich habe Zwerchhäuser - heißt das meine ,,Gaube,, auf der Außenwand aufsitzen. Den Dachüberstand haben wir wohl drin damit die Terrasse überdacht ist. Ich glaub da hatte er mal was erwähnt. Da hab ich aber nicht weiter drüber nachgedacht weil ich da keinen Nachteil gesehen hatte zu der Zeit.
Die Gaube sitzt also hinter (also innen) der Außenmauer auf dem Dachstuhl auf? jetzt richtig?
Sparfuchs_ schrieb:
Die Gaube sitzt also hinter (also innen) der Außenmauer auf dem Dachstuhl auf? jetzt richtig?So ist es - wobei es wohlgemerkt nicht um meine Begriffspedanterie geht, sondern um Deine Erkenntnis, daß hier ein höherer Kniestock nicht Deine Fensterbänke aufwärts zwingt.https://www.instagram.com/11antgmxde/
https://www.linkedin.com/company/bauen-jetzt/
Ähnliche Themen