H
Hausmma
Guest
Bebauungsplan/Einschränkungen
Größe des Grundstücks 537qm
Hang nein
Grundflächenzahl 0,35
Geschossflächenzahl
Baufenster, Baulinie und -grenze 14,42/15,00 × 13,52/17,56
Randbebauung Garagen sind in den seitlichen Abstandsflächen zulässig
Anzahl Stellplatz 3
Geschossigkeit 2
Dachform Satteldach
Stilrichtung modern, einfach
Ausrichtung S
Maximale Höhen/Begrenzungen FH 10,5m
Anforderungen der Bauherren
Stilrichtung, Dachform, Gebäudetyp 2 Vollgeschosse klassisch Satteldach
Geschosse 2
Anzahl der Personen 2 Erwachsene Ü40 + 2 Kinder (3+16) Einliegerwohnung: 1x U70
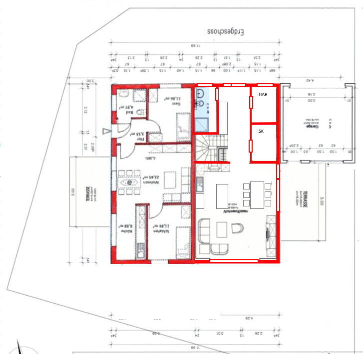
Raumbedarf im EG: Wohnen/Essen +Küche in L-Form, Gäste-WC, Technikraum
OG: 3 Schlafzimmer,2x Büro, 2x Bad, Wäschezimmer
Einliegerwohnung 3 Zimmer :Wohnen/Essen, Küche, Bad Schlafzimmer, kleines Gästezimmer
Büro: 2x Homeoffice
Schlafgäste pro Jahr: Einliegerwohnung 10x
offene oder geschlossene Architektur
konservativ oder moderne Bauweise
offene Küche, Kochinsel : halboffen, nicht direkt im Blickfeld
Anzahl Essplätze 6
Kamin nein
Musik/Stereowand nein
Balkon, Dachterrasse
Garage, Carport mind.1,am liebsten 2
Nutzgarten, Treibhaus gerne
weitere Wünsche/Besonderheiten/Tagesablauf getrennte Terrassen/ beide wollen Sonne
Hausentwurf
Von wem stammt die Planung:
-Architekt
Was gefällt besonders? Die helle Küche in der Einliegerwohnung
Was gefällt nicht? Langer schmaler Flur, Wohnen/Essen in der Hauptwohnung
Preisschätzung laut Architekt/Planer: 650
Persönliches Preislimit fürs Haus, inkl. Ausstattung: 700
favorisierte Heiztechnik: Wärmepumpe
Wenn Ihr verzichten müsst, auf welche Details/Ausbauten
-könnt Ihr verzichten: auf die 2.Garage
Hallo zusammen,
nachdem ich hier wirklich viel gelesen habe und wir nun schon 3 Monate am planen sind, versuche ich mal hier Hilfe zu bekommen.
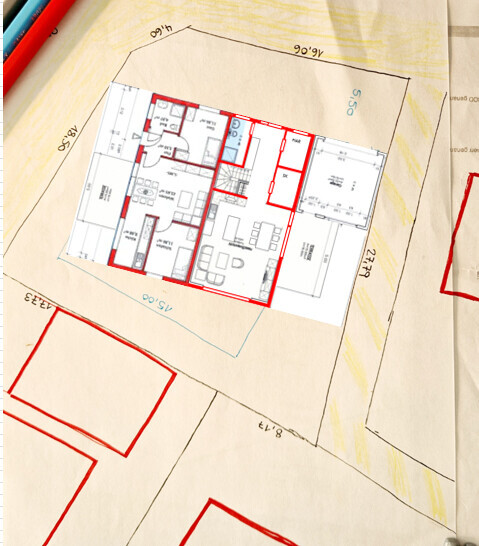
Das Grundstück ist kompliziert, vielleicht etwas schmal um eine Einliegerwohnung noch zusätzlich im EG unterzubringen
Wir sind uns unsicher wie wir das Grundstück "aufteilen".
Wer bekommt die West oder die Ostseite?
Zu welcher Strasse richten wir das Haus aus?
Die 5,5m Abstandsfläche im Norden bietet sich ja als Einfahrt/Stellplätze an. Zudem möchte keiner einen Nordgarten
Wir wollen alle irgendwie Sonne, aber jetzt mit weiterem Baufortschritt der anderen Häuser (rot eingezeichnet) und tieferstehender Sonne kommt im südlichen Bereich kaum Sonne an.
Die Einliegerwohnung bräuchte eigentlich auch nur eine sonnige Terrasse(denn mit dem Alter wird das Rasenmähen nicht mehr einfacher)
Ich habe einfach mal die 2 Entwürfe vom Architekten eingefügt
Größe des Grundstücks 537qm
Hang nein
Grundflächenzahl 0,35
Geschossflächenzahl
Baufenster, Baulinie und -grenze 14,42/15,00 × 13,52/17,56
Randbebauung Garagen sind in den seitlichen Abstandsflächen zulässig
Anzahl Stellplatz 3
Geschossigkeit 2
Dachform Satteldach
Stilrichtung modern, einfach
Ausrichtung S
Maximale Höhen/Begrenzungen FH 10,5m
Anforderungen der Bauherren
Stilrichtung, Dachform, Gebäudetyp 2 Vollgeschosse klassisch Satteldach
Geschosse 2
Anzahl der Personen 2 Erwachsene Ü40 + 2 Kinder (3+16) Einliegerwohnung: 1x U70
Raumbedarf im EG: Wohnen/Essen +Küche in L-Form, Gäste-WC, Technikraum
OG: 3 Schlafzimmer,2x Büro, 2x Bad, Wäschezimmer
Einliegerwohnung 3 Zimmer :Wohnen/Essen, Küche, Bad Schlafzimmer, kleines Gästezimmer
Büro: 2x Homeoffice
Schlafgäste pro Jahr: Einliegerwohnung 10x
offene oder geschlossene Architektur
konservativ oder moderne Bauweise
offene Küche, Kochinsel : halboffen, nicht direkt im Blickfeld
Anzahl Essplätze 6
Kamin nein
Musik/Stereowand nein
Balkon, Dachterrasse
Garage, Carport mind.1,am liebsten 2
Nutzgarten, Treibhaus gerne
weitere Wünsche/Besonderheiten/Tagesablauf getrennte Terrassen/ beide wollen Sonne
Hausentwurf
Von wem stammt die Planung:
-Architekt
Was gefällt besonders? Die helle Küche in der Einliegerwohnung
Was gefällt nicht? Langer schmaler Flur, Wohnen/Essen in der Hauptwohnung
Preisschätzung laut Architekt/Planer: 650
Persönliches Preislimit fürs Haus, inkl. Ausstattung: 700
favorisierte Heiztechnik: Wärmepumpe
Wenn Ihr verzichten müsst, auf welche Details/Ausbauten
-könnt Ihr verzichten: auf die 2.Garage
Hallo zusammen,
nachdem ich hier wirklich viel gelesen habe und wir nun schon 3 Monate am planen sind, versuche ich mal hier Hilfe zu bekommen.
Das Grundstück ist kompliziert, vielleicht etwas schmal um eine Einliegerwohnung noch zusätzlich im EG unterzubringen
Wir sind uns unsicher wie wir das Grundstück "aufteilen".
Wer bekommt die West oder die Ostseite?
Zu welcher Strasse richten wir das Haus aus?
Die 5,5m Abstandsfläche im Norden bietet sich ja als Einfahrt/Stellplätze an. Zudem möchte keiner einen Nordgarten
Wir wollen alle irgendwie Sonne, aber jetzt mit weiterem Baufortschritt der anderen Häuser (rot eingezeichnet) und tieferstehender Sonne kommt im südlichen Bereich kaum Sonne an.
Die Einliegerwohnung bräuchte eigentlich auch nur eine sonnige Terrasse(denn mit dem Alter wird das Rasenmähen nicht mehr einfacher)
Ich habe einfach mal die 2 Entwürfe vom Architekten eingefügt